Ickburgh

Offers in excess of
£400,000
SSTC
This property listing is now SSTC

4 Bedroom Chalet for sale in Thetford

2 4 2
  • No Upward Chain
  • Immaculately Presented
  • Four Bedrooms
  • Master En-Suite
  • Eco Friendly and Rewarding Financial Rebates- (Feed in Tariff)
  • Pleasant Local Walks - Perfect For Dog Walkers

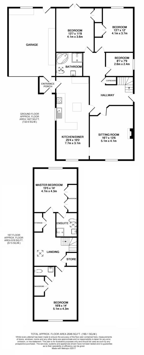
Situated in the rural village of Ickburgh is this immaculately presented four/five bedroom eco friendly chalet. This traditional home is perfect for your family with countryside views to the rear. The accommodation is spread over two floors with the ground floor comprising entrance lobby, this leads to the integral garage which currently has a utility area situated in, loft space above and provides access to the rear garden. The entrance lobby leads into the kitchen/dining room which is fully fitted to a high standard, there is an integral electric hob with built in electric oven and extractor over, integral dishwasher and integral fridge, the kitchen also houses all CCTV controls. The dining area leads to the sitting room which has a natural stone fireplace and a multi-fuel burner. There is currently two double bedrooms downstairs with built in storage, with one of the bedrooms having double doors to the rear garden and is currently used as a lounge/reception area. There is a study area which can be used as a further bedroom, should one require and a family bathroom which comprises a four piece suite. To the first floor there are a further two bedrooms, the front bedroom includes an en-suite WC and built in storage. The master bedroom benefits from an en-suite shower room and built in double wardrobes. To the rear of the property is a generous garden laid to shingle, featuring a fish pond with a granite bench, providing the perfect place to relax. The rear garden benefits from a private patio seating area and a summerhouse which has power and lighting. At the rear of the garden is a fenced off vegetable patch and further storage for garden equipment. To the front of the property there is ample off road parking with a car port situated over the driveway with an adjacent enclosed garden area laid with lawn and a variety of mature shrubs.  

ICKBURGH Ickburgh is located just over 2 miles from Mundford and just 9 miles from the market town of Swaffham. The village has a petrol station, B&B and is just a short distance from the well known Iceni Brewery. In nearby Mundford you will find a great village pub, local school, shops and playing field. Ickburgh is just a short drive from Thetford forest, which provides fantastic walks and High Lodge, which contains Go Ape and fantastic trails and play areas for children.
 

COUNCIL TAX Band E. 

SERVICES CONNECTED Mains electricity, water and drainage and air source heating. Telephone, satellite and broadband connected. 

ENERGY EFFICIENCY RATING C. The reference number or full certificate can be obtained from Sowerbys upon request.
To retrieve the Energy Performance Certificate for this property please visit https://www.epcregister.com/ and enter in the reference number. 

AGENT'S NOTE Eco Friendly and rewarding Financial Rebates- (Feed in Tariff)
� Solar panels and air source heat pump combined give an annual electricity bill of approx. £900 per year for heating and all electricity provided to the property.
� Cash rebate from solar panels and air source heat pump of £1800 per year to owners.
� Windows and doors are A grade (composite doors)
� 11 inch insulation to the attic
� Underground floor insulation throughout  

Important Information

  • This is a Freehold property.

Property Ref: 59533_100439026128

Share:

Similar Properties

Ickburgh

4 Bedroom Detached House | Offers in excess of £400,000

*NO CHAIN* A spacious detached family home offering ample living space and field views to rear. Four bedrooms, master en...

Merton

3 Bedroom Barn Conversion | £395,000

A brand new and spacious barn conversion offering single storey accommodation. Entrance hall, sitting room and Symphony...

Ovington

3 Bedroom Barn Conversion | £375,000

No chain. A traditional single-story barn conversion packed full of character. Redecorated in 2017 and comprising fitted...

Ashill

3 Bedroom Barn Conversion | £425,000

SOLD OFF PLAN PRIOR TO RELEASE. A newly converted three bedroom barn with garage in a high quality small development of...

Great Cressingham

5 Bedroom Chalet | £425,000

No chain. A substantial five bedroom detached family home in approximately 1 acre (stms). The accommodation includes a l...

Watton

4 Bedroom Detached House | £450,000

An individual four bedroom property which sits on a plot in excess of 2 acres (stms). Requiring modernising and updating...

Sowerbys Watton (Watton)

54 High Street, Watton, Norfolk, IP25 6AE

01953 884522

How much is your home worth?

Use our short form to request a valuation of your property.

Request a Valuation

Mortgage Calculator

Amount Borrowed: £
Total Amount Repayable: £
Total Monthly Payment: £
©2026 The Guild of Property Professionals. All rights reserved. Terms and Conditions | Privacy Policy | Cookie Policy | Complaints Policy | Members Login
The Guild of Property Professionals Trading Address: 121 Park Lane, London W1K 7AG. GPEA Limited. Registered in England & Wales.  Company No: 02819824.  Registered Office Address: 2 St. Stephen's Court, St. Stephen's Road, Bournemouth, Dorset, England, BH2 6LA.  VAT Registration No: 576 8795 61
Book a Property Valuation Update Cookies Preferences