West Rise, Tonbridge

Guide Price
£550,000

3 Bedroom Detached House for sale in Tonbridge

2 3 3
  • Executive link detached family home beautifully presented throughout, offering well-proportioned accommodation and potential for further extension (subject to consents).
  • Spacious ground floor layout featuring a welcoming entrance hall, cloakroom, elegant sitting room with feature fireplace, modern kitchen, and dining room with French doors to the garden.
  • Three well-sized bedrooms, including a principal bedroom with en-suite shower room, plus a stylish family shower room on the first floor.
  • Attractive tiered rear garden with Indian stone patio areas and lawn, ideal for outdoor entertaining.
  • Excellent frontage and parking, including driveway, garage access, front lawn, set within a convenient location for schools, transport links, and the High Street.
  • EPC TBC - Council Tax Band E £2879.76 PA

Guide Price £550,000 - £575,000 Waghorn and Company are delighted to present this truly exceptional executive link detached family home, ideally positioned within easy reach of highly favoured local schools, excellent bus routes, and the vibrant High Street with its mainline station offering fast and frequent services to London in under 40 minutes. Beautifully presented throughout the property provides generously proportioned family accommodation that is ready to enjoy from day one. Adding to its appeal, the stunning Haysden Country Park is just a short distance away offering scenic walks, open green spaces, and a wonderful outdoor lifestyle on the doorstep. Furthermore, the property offers exciting potential for further extension subject to the relevant consents making this a rare opportunity to secure a quality home in a highly sought-after location.

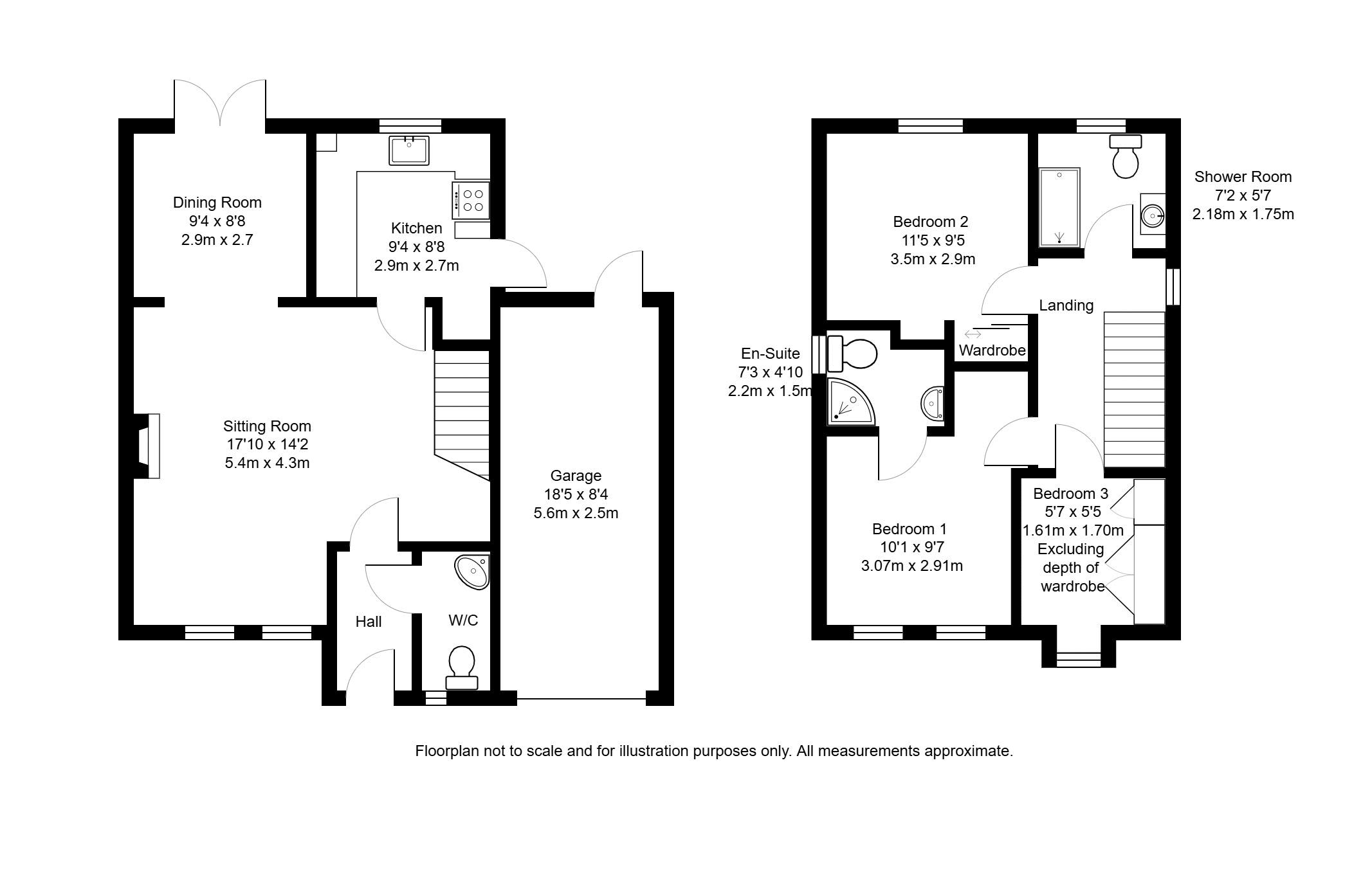
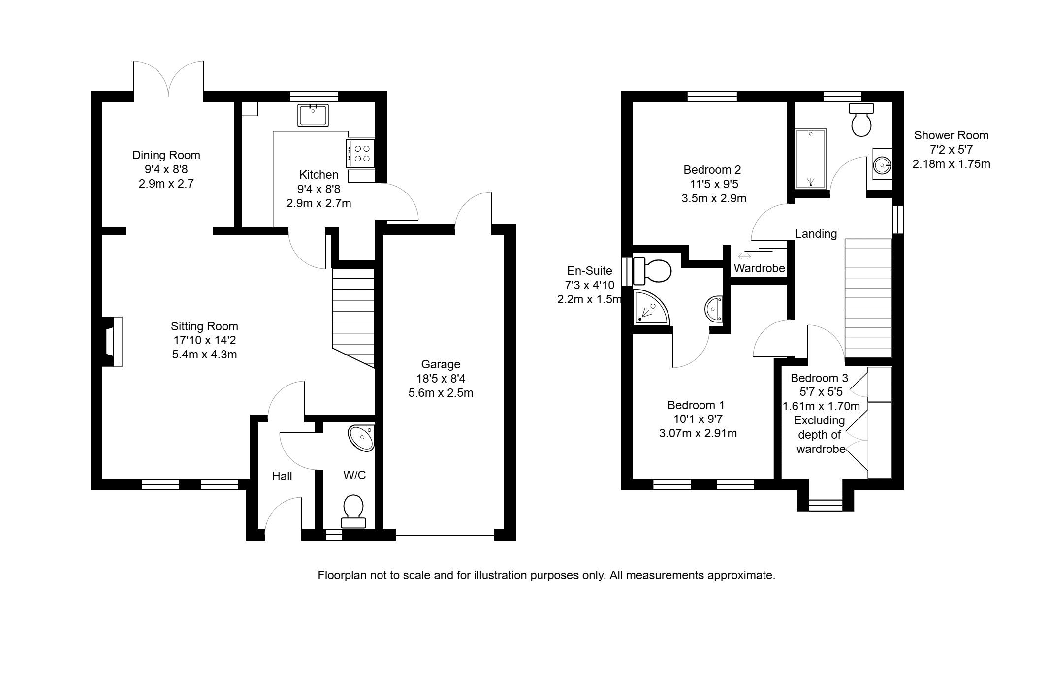
Entrance

Access is via a composite front entrance door with inset stainless panelled glass leading to entrance hall.

Entrance Hall

Wood flooring, door to cloakroom, and door to sitting room.

Cloakroom

Wood flooring continued from the hallway, double glazed stained glass window to front, corner hand wash basin, radiator, low-level WC, and ceramic wall tiling.

Sitting Room

Stairs rising to first floor, door to kitchen, and double doorway leading through to dining room. There is a fireplace with marble effect back and hearth and inset gas living flame fire. There are two double glazed windows to front and radiator.

Kitchen

Double glazed window overlooking the rear garden, a one and a half bowl stainless steel sink set within the worktop with cupboards under and further range of matching base and wall units. There is a part double glazed door leading to the side, space for free standing gas cooker with stainless steel extractor hood over. There is space and plumbing for both washing machine and dishwasher, and wood flooring.

Dining Room

Double glazed French doors leading onto the rear garden and radiator with decorative timber cover.

First Floor Landing

Doors to bedrooms and family bathroom. There is a double glazed window to side and access to the loft.

Bedroom 1

Double glazed window to front, door to En-suite shower room, and radiator.

En-suite

Double glazed frosted window to side, low-level WC, corner shower cubicle with glass doors, pedestal wash hand basin, ceramic wall tiling, wall light and shaver socket. There is also a chrome heated towel rail.

Bedroom 2

Double glazed window to rear, radiator with decorative timber panel cover. There is wood laminate flooring and built-in wardrobe.

Bedroom 3

Double glazed window to front, radiator, wood flooring, and built-in wardrobes.

Family Shower Room

Double glazed frosted window to rear, shower cubicle with waterfall shower head, heated chrome towel rail, ceramic wall tiling, tiled floor, a circular hand wash basin set within vanity unit, fitted shaver socket and fitted wall mirror and wall light.

Outside

Front garden

The front garden is laid to lawn with brick paved driveway giving access to the front entrance door and access to garage.

Rear Garden

The rear garden has a stone patio area adjacent to the property with steps leading to the rear where there is a raised patio area which is also laid to Indian stone. The remainder of the garden is laid to lawn. Double glazed door to garage.

Garage

Up and over door to front, wood flooring, power and lighting, utility meters and double glazed door to rear garden.

Tenure

Freehold

Important Information

  • This is a Freehold property.

Property Ref: WAG03189

Share:

Similar Properties

Cedar Crescent, Tonbridge

3 Bedroom House | Guide Price £550,000

Guide Price £550,000 - £560,000 This beautifully presented three bedroom semi-detached home occupies a generous corner p...

Fleming Way, Tonbridge

4 Bedroom Semi-Detached House | Guide Price £550,000

Waghorn and Company are delighted to present to the market this beautifully presented and extended 3/4 bedroom semi-deta...

Fernholt, Tonbridge

3 Bedroom House | Asking Price £535,000

Wonderful, attractive cottage-style semi-detached family home, tucked away in a quiet cul-de-sac within the much sought-...

Orchard Drive, Tonbridge

3 Bedroom Detached Bungalow | Asking Price £595,000

Waghorn & Company are proud to offer to the market this detached bungalow situated within the highly sought after Orchar...

Southdene, Halstead, Sevenoaks

3 Bedroom House | Asking Price £599,000

Waghorn & Company are proud to offer to the market this wonderful and extended family home, located in the sought after...

NO CHAIN! Silverhurst Drive, Tonbridge

4 Bedroom Detached House | Offers in region of £600,000

Waghorn & Company are proud to present this rather unique and absolutely beautifully presented family home, enviably pos...

Waghorn & Company (Tonbridge)

Tonbridge, Kent, TN9 1DH

01732 808542

How much is your home worth?

Use our short form to request a valuation of your property.

Request a Valuation

Mortgage Calculator

Amount Borrowed: £
Total Amount Repayable: £
Total Monthly Payment: £
©2026 The Guild of Property Professionals. All rights reserved. Terms and Conditions | Privacy Policy | Cookie Policy | Complaints Policy | Members Login
The Guild of Property Professionals Trading Address: 121 Park Lane, London W1K 7AG. GPEA Limited. Registered in England & Wales.  Company No: 02819824.  Registered Office Address: 2 St. Stephen's Court, St. Stephen's Road, Bournemouth, Dorset, England, BH2 6LA.  VAT Registration No: 576 8795 61
Book a Property Valuation Update Cookies Preferences