Albert Road, Tonbridge

Asking Price
£375,000

3 Bedroom Flat for sale in Tonbridge

1 3 2
  • Victorian three bedroom maisonette arranged over two floors
  • Short walk to Tonbridge mainline station, High Street and local schools
  • Spacious accommodation with kitchen/breakfast room and sitting room
  • Main bedroom with en-suite, bathroom and separate WC
  • Off-street parking and excellent potential for modernisation
  • EPC Rating E Council Tax Band C £1999.53 PA

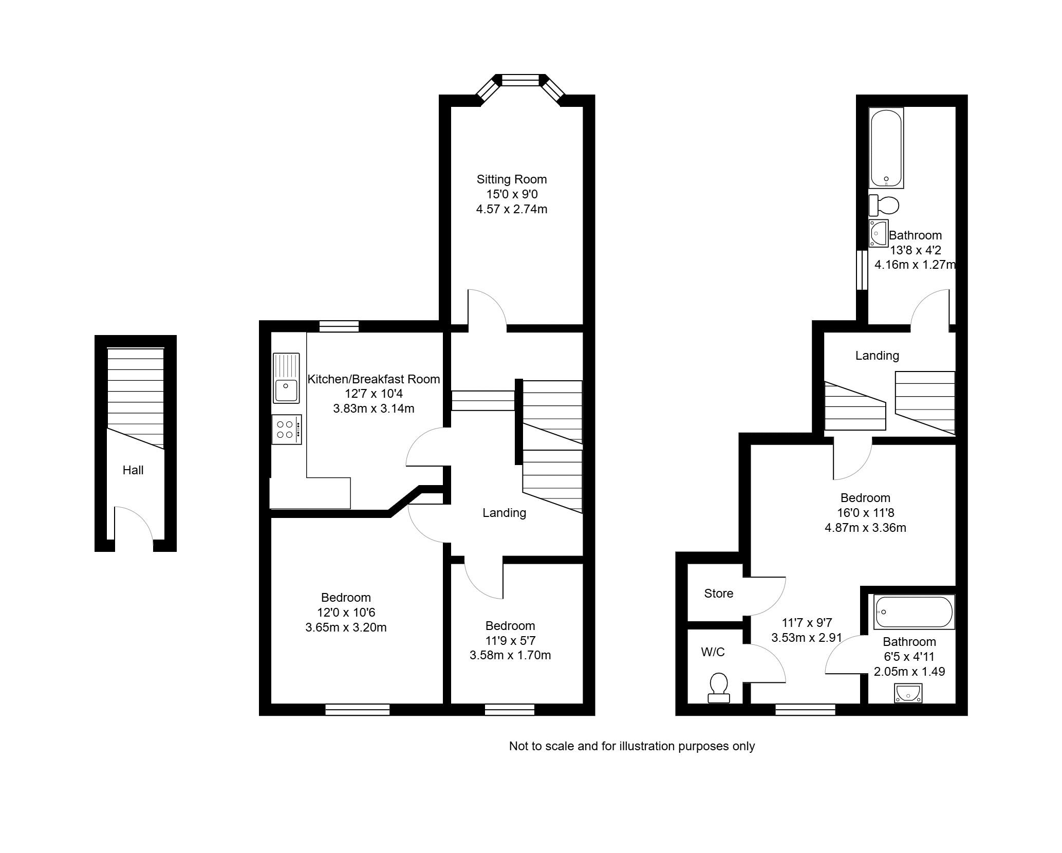
Waghorn & Company are pleased to offer to the market this Substantial Victorian three bedroom maisonette, located just a short walk from Tonbridge mainline station, the High Street and favoured local schools. The property is currently let as a licensed HMO and can continue to be used as an investment opportunity or converted back to a spacious residential home. Arranged over two floors, the property offers spacious and versatile accommodation comprising: on the first floor, two good sized bedrooms, a kitchen/breakfast room and sitting room, and to the top floor a family bathroom and main bedroom with en-suite bathroom, separate WC and two built-in cupboards. The property also benefits from off-street parking and offers excellent potential for modernisation, allowing you to put your own stamp on this centrally located and substantial home.

Entrance

Access is via a front entrance door leading to entrance lobby with stairs to first floor.

First Floor Landing

Stairs to second floor, doors to bedrooms 2 and 3 , kitchen and sitting room.

Kitchen

Double glazed window to rear, one and a half bowl sink and drainer with cupboard under. Further range of matching base and wall units. Space for fridge freezer, space and plumbing for washing machine, inset gas hob with extractor hood over, built in electric oven.

Sitting Room

Double glazed bay window to rear, radiator.

Bedroom 2

Double glazed window to front, radiator.

Bedroom 3

Double glazed window to front, radiator.

Second Floor

Half landing with door to bathroom and steps leading up to bedroom 1

Bathroom

Double glazed window to side, panelled bath with shower over, low level WC, pedestal wash hand basin.

Bedroom 1

Window to rear door to bathroom, separate WC and store room . Radiator.

Bathroom

Panelled bath, hand wash basin, extractor fan.

WC

Low level WC

Outside

To the front of the property is a hardstanding with parking for 1 vehicle.

Agents Notes

We believe the property has a lease of 999 years from 1 June 2007 and will be sold with the benefit of the Freehold. We would recommend having this verified by your solicitor prior to entering into a legally binding contract.

Important Information

  • This is a Leasehold property.

Property Ref: EAXML10807_12783938

Share:

Similar Properties

Gladstone Road, Tonbridge

2 Bedroom Semi-Detached House | Asking Price £375,000

Charming Victorian end of terrace home occupies a wonderful central position, just a short stroll from Tonbridge Station...

Shipbourne Road, Tonbridge

2 Bedroom Semi-Detached House | Asking Price £375,000

A truly charming and completely refurbished Grade II listed landmark cottage, perfectly positioned in a central yet surp...

Quarry Hill Road, Tonbridge

3 Bedroom Semi-Detached House | Guide Price £350,000

Waghorn and Company are proud to offer for sale this deceptively spacious Victorian family home, conveniently located fo...

Hawden Road, Tonbridge

2 Bedroom Terraced House | Asking Price £380,000

Waghorn & Company are absolutely delighted to offer to the market this exceptional and beautifully presented period home...

2 Lime Hill Road, Tunbridge Wells

2 Bedroom Flat | Asking Price £385,000

NO ONWARD CHAIN!! Waghorn and Company are delighted to offer to the market this wonderful two bedroom, luxury purpose bu...

Shipbourne Road, Tonbridge

2 Bedroom Flat | Asking Price £385,000

Waghorn & Company are proud to offer to the market this deceptively spacious, 2 bedroom apartment, conveniently located...

Waghorn & Company (Tonbridge)

Tonbridge, Kent, TN9 1DH

01732 808542

How much is your home worth?

Use our short form to request a valuation of your property.

Request a Valuation

Mortgage Calculator

Amount Borrowed: £
Total Amount Repayable: £
Total Monthly Payment: £
©2026 The Guild of Property Professionals. All rights reserved. Terms and Conditions | Privacy Policy | Cookie Policy | Complaints Policy | Members Login
The Guild of Property Professionals Trading Address: 121 Park Lane, London W1K 7AG. GPEA Limited. Registered in England & Wales.  Company No: 02819824.  Registered Office Address: 2 St. Stephen's Court, St. Stephen's Road, Bournemouth, Dorset, England, BH2 6LA.  VAT Registration No: 576 8795 61
Book a Property Valuation Update Cookies Preferences