Lawn Road, Tonbridge

Guide Price
£400,000
SSTC
This property listing is now SSTC

3 Bedroom Semi-Detached House for sale in Tonbridge

2 3 1
  • Three Bedroom Semi-Detached Family Home
  • Favoured Meadow Lawn Area
  • Located just 0.2 Miles from Tonbridge Main Line Station
  • Walking Distance to Favoured Schools
  • Scope to Improve & Extend (STPP)
  • EPC Rating D / Council tax band C £2094.37 PA

Guide Price £400,000 - £425,000. Waghorn & Company are delighted to offer to the market this three bedroom, semi-detached family home located in a popular cul-de-sac just a short walk from the Station, High Street and favourable local Schools. The property offers versatile accommodation to the ground floor with the added benefits of a good sized rear garden, scope for further improvement STPP and no forward chain. An early viewing is highly recommended to avoid disappointment.

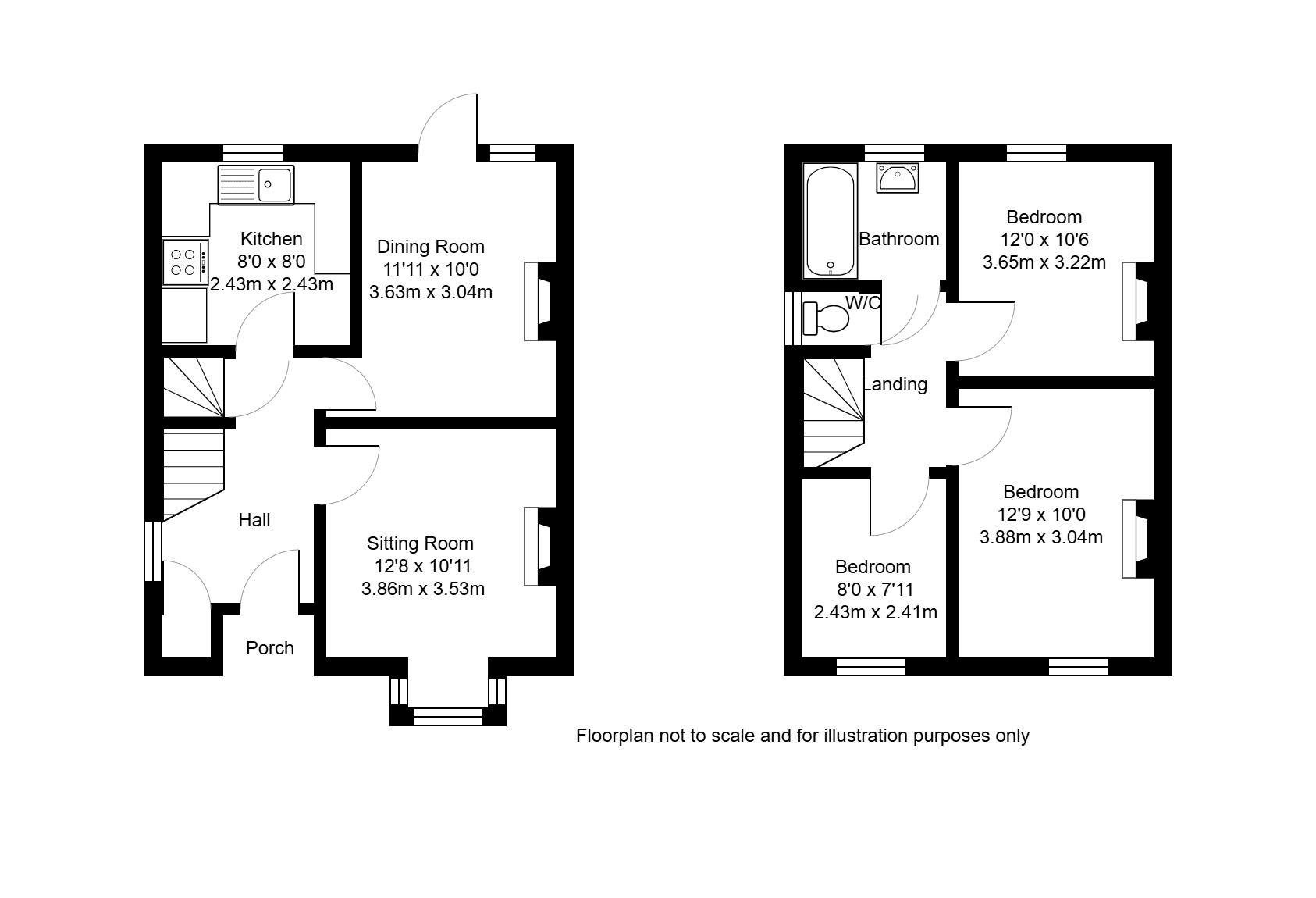
Entrance

Access is via a canopied entrance porch with door to entrance hall.

Entrance Hall

Doors to sitting room, dining room and kitchen. Double glazed window to side, cupboard housing boiler, radiator, stairs to first floor with understairs cupboard.

Sitting Room

Double glazed square bay window to front, wood laminate flooring, radiator, feature fireplace.

Dining room

Double glazed door to rear garden, with matching side window. Wood laminate flooring, feature fireplace, radiator.

Kitchen

Single stainless steel sink and drainer with cupboard under. Further range of matching base and wall units. Splash back tiling, space for free standing electric cooker, space and plumbing for washing machine, space for fridge freezer. Double glazed window to rear.

First Floor Landing

Double glazed window to side, doors to bedrooms, bathroom and separate WC. Access to loft

Bedroom 1

Double glazed window to front, radiator, wood laminate flooring.

Bedroom 2

Double glazed window to rear, wood laminate flooring, radiator.

Bedroom 3

Double glazed window to front, wood laminate flooring, radiator.

Bathroom

Panelled bath with shower over, hand wash basin, double glazed window to rear, radiator.

W/C

Low level WC, double glazed window to side, radiator.

Outside

Rear Garden

Low maintained garden with patio area adjacent to the property with the remainder of the garden laid with blue slate chippings and pathway to the rear. Timber shed

Tenure

Freehold

Important Information

  • This is a Freehold property.

Property Ref: WAG03167

Share:

Similar Properties

Shipbourne Road, Tonbridge

2 Bedroom Flat | Asking Price £400,000

Waghorn & Company are delighted to offer to the market this beautifully presented, 2 bedroom apartment which offers spac...

Burns Crescent, Tonbridge

3 Bedroom Semi-Detached House | Asking Price £400,000

Burns Crescent is a substantial semi detached family home conveniently located for favoured local schools, the High Stre...

Garden Road, Tonbridge

4 Bedroom Terraced House | Offers in excess of £395,000

Waghorn & Company are delighted to present this superb four-bedroom family home, ideally positioned within easy walking...

Nursery Close, Tonbridge

3 Bedroom House | Asking Price £405,000

Waghorn & Company are proud to offer this exciting opportunity to acquire a much-loved family home that has been in the...

Hunt Road, Tonbridge

3 Bedroom Semi-Detached House | Asking Price £425,000

Waghorn & Company are pleased to offer this spacious three-bedroom semi-detached family home, ideally located just a sho...

43 Barden Road, Tonbridge

2 Bedroom Terraced House | Asking Price £425,000

Waghorn and Company are proud to offer to the market this wonderful two bedroom, Victorian family home, closely located...

Waghorn & Company (Tonbridge)

Tonbridge, Kent, TN9 1DH

01732 808542

How much is your home worth?

Use our short form to request a valuation of your property.

Request a Valuation

Mortgage Calculator

Amount Borrowed: £
Total Amount Repayable: £
Total Monthly Payment: £
©2026 The Guild of Property Professionals. All rights reserved. Terms and Conditions | Privacy Policy | Cookie Policy | Complaints Policy | Members Login
The Guild of Property Professionals Trading Address: 121 Park Lane, London W1K 7AG. GPEA Limited. Registered in England & Wales.  Company No: 02819824.  Registered Office Address: 2 St. Stephen's Court, St. Stephen's Road, Bournemouth, Dorset, England, BH2 6LA.  VAT Registration No: 576 8795 61
Book a Property Valuation Update Cookies Preferences