Topsham, Devon

Offers in excess of
£795,000
SSTC
This property listing is now SSTC

3 Bedroom Detached House for sale in Topsham

2 3 1

Directions

From the Topsham office turn right and continue along Fore Street, crossing over the roundabout into Monmouth Hill. Continue up the hill and turn left into Monmouth Street. Towards the end of the street, turn left into Monmouth Avenue, following the cul-de-sac round to the right and the property is directly in front of you.

What3Words: ///taped.nodded.scouts

Situation

Topsham is a well-known town full of history with character period cottages and houses, perfectly blended with a range of more modern homes. The excellent amenities range from a splendid individual-styled parade of shops, to churches, restaurants, several pubs, a school and a bowling and sailing club.

There are frequent bus services and a train link between Exmouth and Exeter. Topsham lies within easy access of the M5 and also comfortable commuting distance of Exeter Airport with many domestic connections and direct access to Paris, Charles de Gaulle and Amsterdam, Schiphol.

The town was listed at the time of Domesday as Topeshant and flourished as an estuary port for nigh on five centuries. Topsham also became world-renowned for ship-building reaching its zenith between 1750 and 1870.

Description

A MUST VIEW!

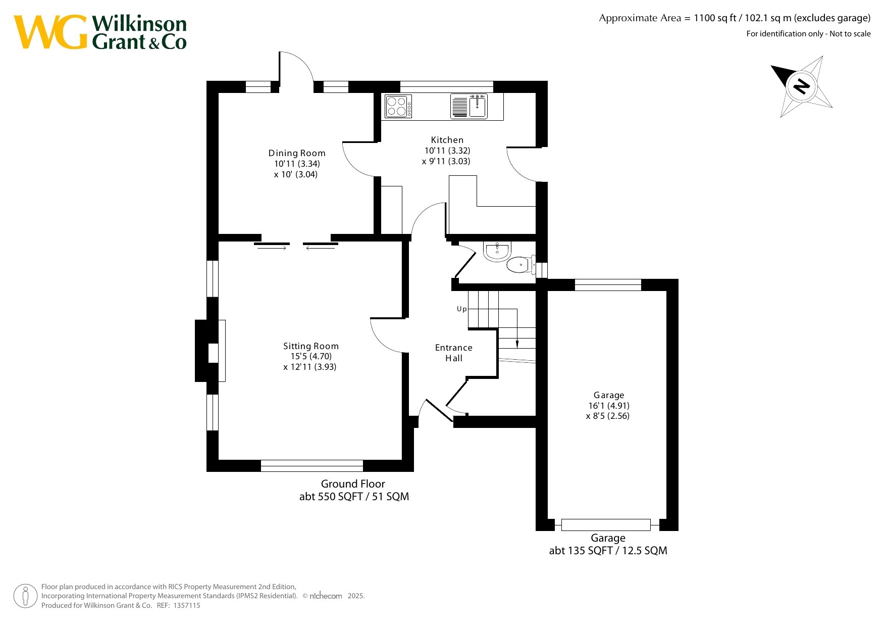
This detached property enjoys a South-Westerly elevation and is situated at the end of a quiet and favoured residential road close to the heart of this vibrant estuary town. Just minutes walk away from Topsham's many amenities, it has accommodation of 1,100 sq ft that would benefit from a degree of modernisation and improvement.

For those buyers for whom the property is large enough currently, a simple scheme including new kitchen, bathroom and carpets would turn it into a lovely home. For those buyers needing a larger property, there is potential to extend, subject to planning, as several other properties in the road have achieved.

On the ground floor, the reception hallway with wash cloakroom, leads through to a bright sitting room enjoying a dual aspect and a feature fireplace. Sliding double doors seamlessly connect to the dining room creating a wonderful entertaining space with a door leading directly to the garden. Completing the ground floor is well equipped kitchen.

On the first floor are 3 bedrooms, 2 of which are double rooms both with built in storage, together with family bathroom also with additional storage space.

The outside space comprises of driveway adjoining a lawn with established shrubs and borders, leading to the single garage, which is connected to the electrics and also has a tap. To the rear is a level garden with a patio area to one side, capturing the last of the afternoon and evening sun.

SERVICES:    The vendor advises the following: Mains gas (serving the central heating and hot water), mains electricity, water and drainage. Telephone landline connected and currently under Contract with BT. Broadband: (Cable) Estimated Standard speed 17 Mbps, Superfast speed 80 Mbps and Ultrafast speed 1800 Mbps under Contract with Plusnet. Mobile signal: Several networks currently showing as available at the property including O2, EE and Vodafone.

AGENTS NOTE:    The property sits with the Topsham Conservation Area and benefits from Residents Permit parking in zone T1.

The vendor has advised that there used to be bamboo in the rear garden, and that extensive works have been undertaken to have this removed - a guarantee has been issued by Environet, and the removal was completed in August 2025.

50.682285 -3.461717

Important Information

  • This is a Freehold property.

Property Ref: top_OCL240004

Share:

Similar Properties

Exmouth, Devon

5 Bedroom Detached House | Guide Price £750,000

IMPRESSIVE extended FAMILY HOME on a generous plot with over ¼ acre of PRIVATE SOUTH-FACING GARDEN, DOUBLE GARAGE, and A...

Old Rydon Ley, Exeter

4 Bedroom Detached House | Guide Price £735,000

A PLEASANT, 4 DOUBLE BEDROOM family home with over 2100 SQ.FT. of GENEROUSLY PROPORTIONED ACCOMMODATION. Enjoying a larg...

Exmouth Marina, Devon,EX8

4 Bedroom Semi-Detached House | Offers in excess of £735,000

An opportunity to secure a FREEHOLD, WATERSIDE townhouse with STUNNING VIEWS FROM EVERY FLOOR. Enjoying 1125 Sq.Ft of ve...

Topsham, Exeter

4 Bedroom Detached House | Guide Price £800,000

ATTRACTIVE EDWARDIAN detached house with LOVELY PERIOD FEATURES and TASTEFUL MODERN IMPROVEMENTS. Set in OVER HALF ACRE...

Exeter, Devon

4 Bedroom Detached House | From £800,000

An EXCEPTIONAL CONTEMPORARY and SPACIOUS HOME conveniently located in an ACCESSIBLE position between TOPSHAM & EXETER. S...

Clyst St. Mary, Devon

5 Bedroom Detached House | Guide Price £800,000

A WELL-SITUATED, DETACHED, characterful cottage offering lovely PERIOD FEATURES and set in a PEACEFUL LOCATION, just 3.5...

Wilkinson Grant & Co (Topsham)

Fore Street, Topsham, Devon, EX3 0HQ

01392 875000

How much is your home worth?

Use our short form to request a valuation of your property.

Request a Valuation

Mortgage Calculator

Amount Borrowed: £
Total Amount Repayable: £
Total Monthly Payment: £
©2025 The Guild of Property Professionals. All rights reserved. Terms and Conditions | Privacy Policy | Cookie Policy | Complaints Policy | Members Login
The Guild of Property Professionals Trading Address: 121 Park Lane, London W1K 7AG. GPEA Limited. Registered in England & Wales.  Company No: 02819824.  Registered Office Address: 2 St. Stephen's Court, St. Stephen's Road, Bournemouth, Dorset, England, BH2 6LA.  VAT Registration No: 576 8795 61
Book a Property Valuation Update Cookies Preferences