Roselands Drive, Paignton, Torbay

£375,000
SSTC
This property listing is now SSTC

5 Bedroom Detached House for sale in Torbay

2 5 1
  • DETACHED HOUSE
  • FIVE BEDROOMS
  • GARAGE
  • PARKING
  • REAR GARDENS
  • SOUGHT AFTER LOCATION

PROPERTY DESCRIPTION A five bedroom detached house located in the sought after residential location of Roselands, Paignton. The property offers bundles of space both internally and externally. The property comprises of a large living room, a kitchen/breakfast room, dining room, a downstairs WC, five bedrooms, a family bathroom, front and rear gardens, off road parking and a garage. Within a stones throw  of the home, you can access a variety of shops and supermarkets, primary, secondary schools and colleges and nearby walks. The property sits on a bus route and can easily access nearby towns. 


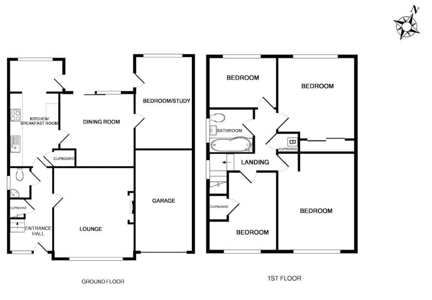
ENTRANCE HALL UPVC double glazed front door and UPVC double glazed window to the side to allow ample light to beam through. Stairs rising to first floor, doors leading to adjoining rooms, understairs storage cupboard, thermostat heating control, internet points, gas central heating radiator. 


LOUNGE - 4.64m x 3.94m (15'2" x 12'11") A spectacularly spacious living room to the front aspect of the property. TV and phone points, coving, a feature electric fireplace, a large picture UPVC double glazed window and gas central heating radiator. 


KITCHEN/BREAKFAST ROOM - 5.74m x 2.42m (18'9" x 7'11") A bright and airy kitchen/breakfast room with a variety of wall mounted, base and drawer units. Wood effect roll edge worktops. An electric oven with a 4 ring gas hob and extractor hood over, an integrated dishwasher. Space and plumbing for a washing machine and fridge/freezer. Complimentary tile splashback surround. A 1 1/2 bowl porcelain sink and drainer unit, space for a 4 seater dining table. A large UPVC double glazed window overlooking the rear gardens, a UPVC double glazed French door leading out to the garden and gas central heating radiator. 


DINING ROOM - 3.94m x 3.65m (12'11" x 11'11") A generous sized dining room with space for an 8 seater dining table and variety of other furniture. UPVC double glazed sliding patio doors leading out to the rear garden. Coving and dado rails, gas central heating radiator. 


BEDROOM FIVE/STUDY - 4.66m x 2.87m (15'3" x 9'4") A large room on the ground floor that could easily be used as a bedroom, study, play room etc. A large picture window overlooking the rear gardens, a UPVC double glazed French door giving access to the garden. Gas central heating radiator. 


CLOAKROOM Low level flush WC, wall mounted wash hand basin. Complimentary half tiled walls. A wall mounted medicine cabinet and a UPVC double glazed window. 


FIRST FLOOR


BEDROOM ONE - 4.37m x 3.25m (14'4" x 10'7") An impressively sized master bedroom with ample space for multiple pieces of furniture. Built in mirror fronted wardrobes, UPVC double glazed window and gas central heating radiator. 


BEDROOM TWO - 4.18m x 3.24m (13'8" x 10'7") Another generous double bedroom overlooking the rear garden and woodland. Built in wardrobes, UPVC double glazed window, gas central heating radiator. 


BEDROOM THREE - 3.29m x 2.83m (10'9" x 9'3") An L shaped smaller double bedroom to the front aspect of the property. A built in over the stairs storage cupboard. UPVC double glazed window, gas central heating radiator. 


BEDROOM FOUR - 2.85m x 2.38m (9'4" x 7'9") A spacious single bedroom again overlooking the rear gardens and woodland. A UPVC double glazed window and gas central heating radiator. 


BATHROOM A three piece suite comprising of a low level flush WC, a pedestal wash hand basin and a panelled bath tub with shower attachments over and protective glass screen. Complimentary tiled wall surround. Extractor fan, chrome heated towel rail and a UPVC double glazed frosted window. 


STORAGE CUPBOARD This is where the brand new (less than three months old) Worcester boiler can be located. 


OUTSIDE Off road parking for 2 vehicles. 


REAR GARDEN The rear garden has carefully been divided into two tiers to make the most of each space. The first area has a sizeable patio area perfect for outdoor dining and two turfed areas. Steps then lead down to a large turfed area where the shed and greenhouse can be located. 


GARAGE 5.29m x 2.86m (17'4" x 9'4") Up and over door, overhead lighting and electrical points.


AGENTS NOTES These details are meant as a guide only. Any mention of planning permission, loft rooms, extensions etc, does not imply they have all the necessary consents, building control etc. Photographs, measurements, floorplans are also for guidance only and are not necessarily to scale or indicative of size or items included in the sale. Commentary regarding length of lease, maintenance charges etc is based on information supplied to us and may have changed. We recommend you make your own enquiries via your legal representative over any matters that concern you prior to agreeing to purchase.

Important Information

  • This is a Freehold property.
  • This Council Tax band for this property is: D

Property Ref: 979_1196148

Share:

Similar Properties

Brantwood Drive, Paignton

3 Bedroom Bungalow | Offers Over £375,000

A surprisingly spacious three bedroom detached bungalow, situated in a highly popular location with gardens that back on...

Marldon Road, Paignton

3 Bedroom Semi-Detached Bungalow | £375,000

A well presented three bedroom chalet style bungalow located just 0.8 miles from Paignton town. The bungalow offers an a...

Osney Crescent, Paignto

3 Bedroom Detached House | £375,000

A beautiful three bedroom character detached bungalow in a favoured residential area within short reach of seafront and...

Kingshurst Drive, Paignton

4 Bedroom Bungalow | £380,000

In a serene Preston cul-de-sac, this stunning four-bedroom dorma bungalow, renovated to perfection, boasts a bright bay-...

Dolphin Court Road, Paignton

3 Bedroom Bungalow | £385,000

A two bedroom plus loft room detached bungalow situated in a highly favoured residential area with excellent ring road a...

Templer Road, Preston, Paignton

2 Bedroom Bungalow | £389,950

A stunning extended two bedroom detached bungalow, with outbuildings in higher Preston. The property has been subject to...

Taylors (Paignton)

26 Hyde Road, Paignton, Devon, TQ4 5BY

01803 663561

How much is your home worth?

Use our short form to request a valuation of your property.

Request a Valuation

Mortgage Calculator

Amount Borrowed: £
Total Amount Repayable: £
Total Monthly Payment: £
©2025 The Guild of Property Professionals. All rights reserved. Terms and Conditions | Privacy Policy | Cookie Policy | Complaints Policy | Members Login
The Guild of Property Professionals Trading Address: 121 Park Lane, London W1K 7AG. GPEA Limited. Registered in England & Wales.  Company No: 02819824.  Registered Office Address: 2 St. Stephen's Court, St. Stephen's Road, Bournemouth, Dorset, England, BH2 6LA.  VAT Registration No: 576 8795 61
Book a Property Valuation Update Cookies Preferences