Staverton, Totnes

Guide Price
£425,000
SSTC
This property listing is now SSTC

4 Bedroom Character Property for sale in Totnes

1 4 3
  • Grade II listed
  • Converted water mill
  • Beautifully presented
  • Views over the River Dart
  • 4 bedrooms
  • Parking

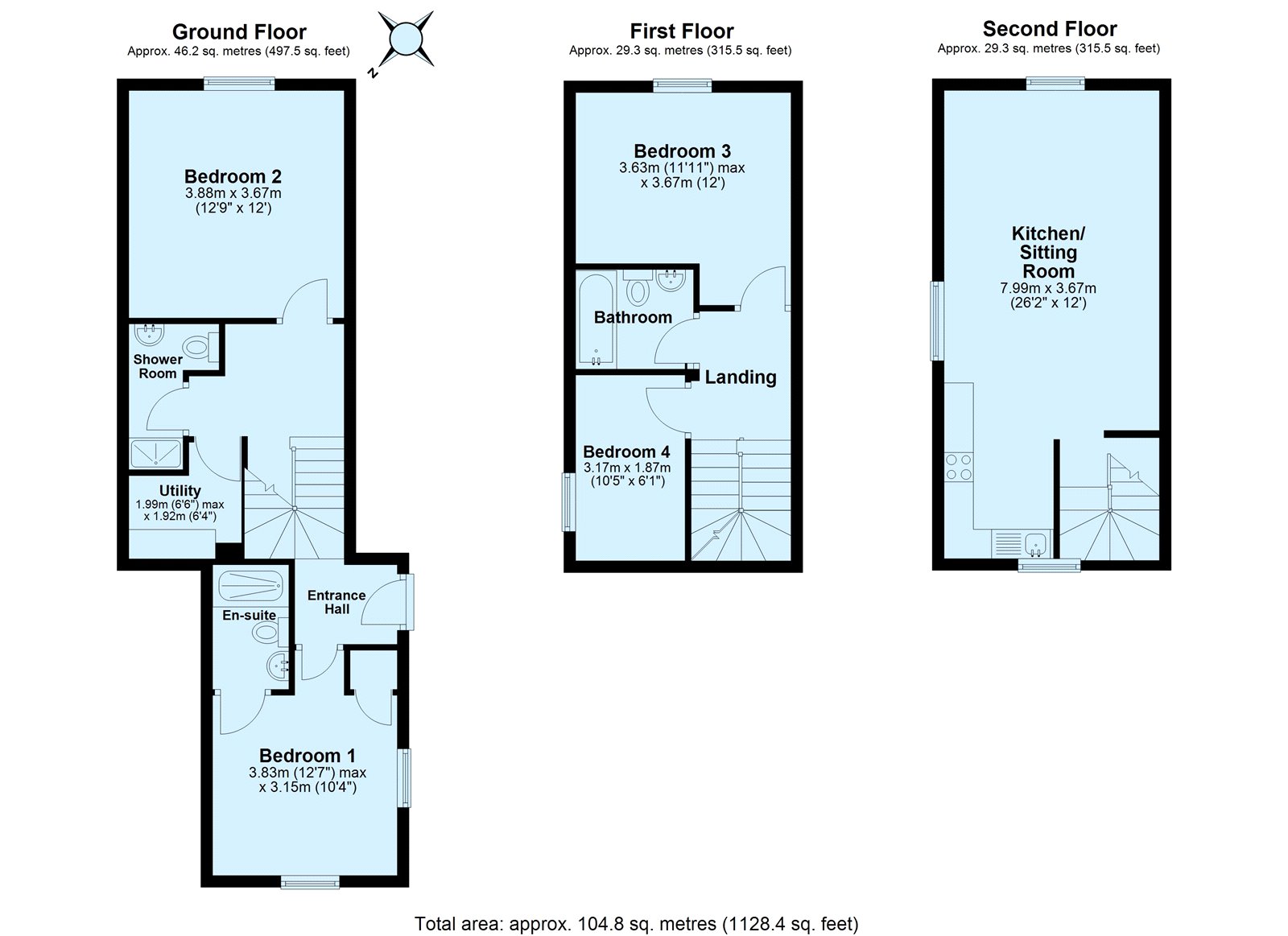
A beautifully presented four bedroom maisonette situated in this historic Water Mill with lovely white washed rooms and slate floors with a superb open plan living room with views over the surrounding countryside and the river Dart.

Entered on the ground floor through your own front door into an entrance hall which leads into a ground floor bedroom and en suite shower room. Steps down lead to a utility room shower room and a further bedroom. On the first floor are two further bedrooms and a bathroom and on the top floor is a wonderful open plan sitting room and Kitchen with superb views, flooded with natural light.

Outside is an allocated parking space and communal gardens wleading down to the banks of the river.

Services: Mains electric and water. Drainage via sewage treatment plant. Gas central heating.

Lease Information: 999 years from 1st Jan 2010. Service charge of approx. £2000 PA which covers gardening, insurance, sewage treatment plant and common area maintenance.

The popular village of Staverton is located about two miles to the north of Dartington and about 3 miles from Totnes, the commercial centre for this part of Devon. Access to the A38 Devon Expressway is easy, connecting Plymouth and Exeter where it links with the M5. At Totnes there is the mainline railway station with direct links to London. The village lies on the banks of the River Dart and boasts a strong community.

Important Information

  • This Council Tax band for this property is: E

Property Ref: DST733124

Share:

Similar Properties

Leechwell Street, Totnes, Devon

3 Bedroom Not Specified | Guide Price £425,000

Offered to the market with no onward chain, a grade II listed end of terrace cottage situated in a convenient position f...

Church Hill, Marldon

2 Bedroom Cottage | Guide Price £400,000

A delightful Grade ll listed cottage full of period charm sitting in an elevated position with lovely views over the vil...

Vicarage Road, Stoke Gabriel

3 Bedroom Detached Bungalow | Offers in excess of £400,000

A beautifully presented three bedroom bungalow with generous driveway parking and garage with a superb kitchen/ breakfas...

Flat 1, Springfield, Jubilee Road, Totnes, Devon

2 Bedroom Apartment | £450,000

A superb two bedroom garden apartment situated on the ground floor of this handsome detached Victorian Villa in one of T...

Fore Street, Totnes

2 Bedroom Cottage | Guide Price £450,000

A charming Grade II listed cottage situated in a tucked away positon on Fore Street with 2 bedrooms, open plan living an...

Home Reach Avenue, Totnes

3 Bedroom Detached House | Guide Price £450,000

Situated in Bridgetown and within easy distance of the town centre and amenities, a well-presented detached family home....

Marchand Petit Totnes (Totnes)

The Plains, Totnes, Devon, TW9 5DW

01803847979

How much is your home worth?

Use our short form to request a valuation of your property.

Request a Valuation

Mortgage Calculator

Amount Borrowed: £
Total Amount Repayable: £
Total Monthly Payment: £
©2026 The Guild of Property Professionals. All rights reserved. Terms and Conditions | Privacy Policy | Cookie Policy | Complaints Policy | Members Login
The Guild of Property Professionals Trading Address: 121 Park Lane, London W1K 7AG. GPEA Limited. Registered in England & Wales.  Company No: 02819824.  Registered Office Address: 2 St. Stephen's Court, St. Stephen's Road, Bournemouth, Dorset, England, BH2 6LA.  VAT Registration No: 576 8795 61
Book a Property Valuation Update Cookies Preferences