Fore Street, Totnes

Guide Price
£450,000

2 Bedroom Cottage for sale in Totnes

1 2 1
  • NO CHAIN
  • Hidden away town centre location
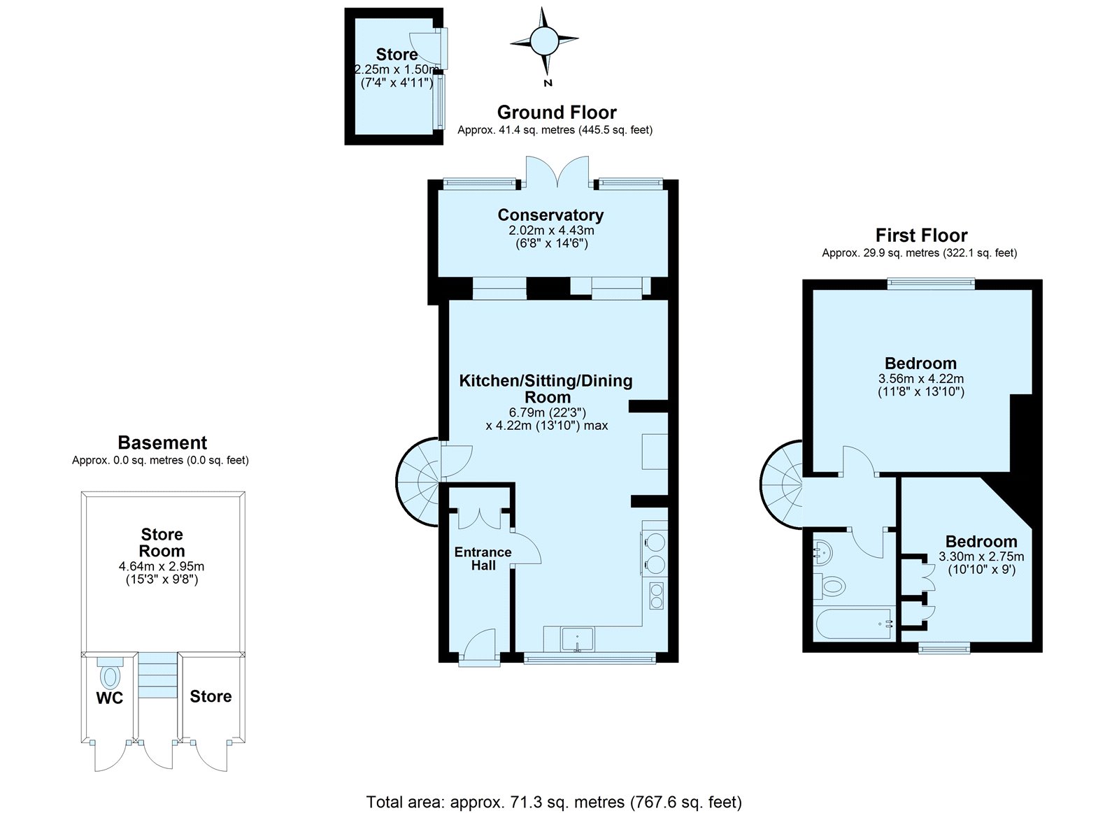
  • 2 bedrooms
  • Period features
  • Mature private garden

The Cottage is a charming quintessential Grade II listed Totnes hideaway property with a superb garden, open-plan living space, outbuilding and all just a few paces from the Fore Street itself.

Steps rise from the private flag stone floor passage way to the period door opening to the entrance hall with superb flagstone flooring through to a large open-plan living room. To one end of the living room is the kitchen with excellent quality units and hand crafted hardwood work surfaces overlooking the approach to the property. There is then a large seating area with a magnificent focal fireplace. There is a conservatory style that opens to the courtyard at the head of the charming and very private mature garden.

An attractive turned staircase rises out of the living room to the first floor where there are two good-sized double bedrooms with the master bedroom being fully vaulted and a newly fitted bathroom. For those who want a quiet hideaway this property really must be viewed.

Totnes town is the commercial centre for the South Hams. This part of Devon is renowned for its outstanding natural beauty with Dartmoor National Park ten miles to the north and stunning beaches and coastline ten miles to the south. The bustling medieval market town has a mainline railway station giving direct connections to London Paddington with easy connection to St Pancras for Eurostar. There is also excellent access to the A38 Devon Expressway, linking Plymouth and Exeter where it joins the M5. Schooling in the area is excellent with a number of well-regarded primary and secondary schools. Totnes also boasts a thriving market as well as a good selection of shops, supermarkets, restaurants and inns.

Important Information

  • This is a Freehold property.
  • This Council Tax band for this property is: C

Property Ref: DST733189

Share:

Similar Properties

Home Reach Avenue, Totnes

3 Bedroom Detached House | Guide Price £450,000

Situated in Bridgetown and within easy distance of the town centre and amenities, a well-presented detached family home....

Flat 1, Springfield, Jubilee Road, Totnes, Devon

2 Bedroom Apartment | £450,000

A superb two bedroom garden apartment situated on the ground floor of this handsome detached Victorian Villa in one of T...

Staverton, Totnes

4 Bedroom Character Property | Guide Price £425,000

A wonderful conversion (2010) of this historic Grade II listed water mill built circa 1790 sitting in this idyllic setti...

Stoke End, Moreleigh, Totnes, Devon

3 Bedroom Detached Bungalow | Guide Price £475,000

A beautifully presented three bedroom detached bungalow with a superb Kitchen / Breakfast room and a smart modern garden...

Pentamar, Crosspark, Totnes, Devon

3 Bedroom Semi-Detached House | Offers in excess of £475,000

Situated in an excellent location within walking distance of the town centre and amenities, a semi-detached family home...

Warren Lane, Dartington Hall, Totnes, Devon

3 Bedroom Terraced House | Guide Price £500,000

Situated on the 1,200 acre Dartington Hall Estate and enjoying stunning uninterrupted views over the parkland, a grade I...

Marchand Petit Totnes (Totnes)

The Plains, Totnes, Devon, TW9 5DW

01803847979

How much is your home worth?

Use our short form to request a valuation of your property.

Request a Valuation

Mortgage Calculator

Amount Borrowed: £
Total Amount Repayable: £
Total Monthly Payment: £
©2026 The Guild of Property Professionals. All rights reserved. Terms and Conditions | Privacy Policy | Cookie Policy | Complaints Policy | Members Login
The Guild of Property Professionals Trading Address: 121 Park Lane, London W1K 7AG. GPEA Limited. Registered in England & Wales.  Company No: 02819824.  Registered Office Address: 2 St. Stephen's Court, St. Stephen's Road, Bournemouth, Dorset, England, BH2 6LA.  VAT Registration No: 576 8795 61
Book a Property Valuation Update Cookies Preferences