The Common Holt

Offers in excess of
£600,000

5 Bedroom Detached House for sale in Trowbridge

2 5 2
  • ATTRACTIVE DETACHED FAMILY HOME SITUATED IN A NON ESTATE LOCATION
  • COVETED WILTSHIRE VILLAGE, OFFERING GOOD ACCESS TO BATH, BRADFORD ON AVON AND CORSHAM
  • SMARTLY PRESENTED WITH A POSITIVE LIGHT AND AIRY FEEL
  • ATTRACTIVE MATURE GARDEN WHICH ENJOYS A SUNNY SOUTHERLY FACING ASPECT
  • PLENTY OF OFF STREET PARKING
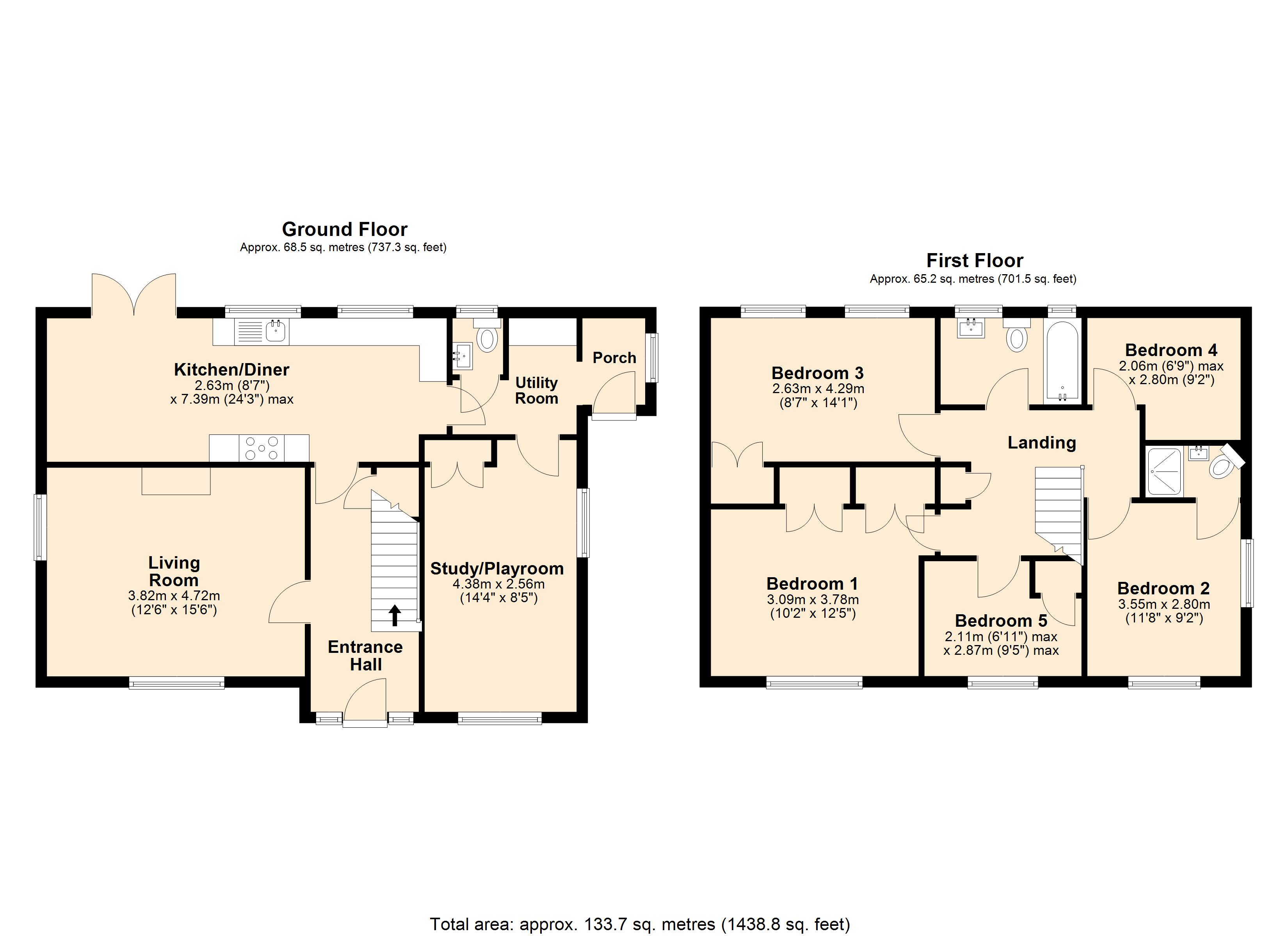
  • FIVE BEDROOMS AND AN EN SUITE SHOWER ROOM
  • IMPRESSIVE KITCHEN/DINER, IDEAL FOR ENTERTAINING
  • VERSATILE PLAYROOM/STUDY, FORMERLY THE GARAGE
  • UTILITY ROOM AND A DOWNSTAIRS CLOAKROOM

An attractive and spacious detached family home, enjoying a non-estate location, in the heart of this coveted Wiltshire village, offering good access to Bath and Bradford on Avon. Smartly presented the property provides balanced accommodation arranged over two floors, with a positive light and airy feel, ideal for a growing family looking for more space.

Once inside you will discover; an inviting entrance hall, living room with dual aspect and feature fireplace with wood burning stove, ideal for those cosy winter evenings. The heart of this fine home is a good size kitchen/diner which has plenty of room for entertaining family and friends, there is a versatile playroom/study, perfect if you work from home or an excellent space for the children to let off some steam. Finally on the ground floor, there is an invaluable utility room and the added benefit of a downstairs cloakroom. On the first floor, there are five bedrooms, three doubles and two good size singles, an en suite shower room and smart family bathroom. Externally there is a large driveway to the front providing plenty of off street parking and a delightful mature rear garden which enjoys a sunny southerly facing aspect. A unique home in this prime location, early viewing essential.

The village of Holt is conveniently situated approximately 3 miles from Melksham, Trowbridge and Bradford-on-Avon, and benefits from a handy bus service. Village amenities include a general store, two churches, two public houses, a post office, primary school and recreational facilities inclusive of a floodlit tennis court and sports fields. Situated within the village are numerous beautiful walks and two National Trust properties, namely The Courts and Chalfield Manor. The further facilities of Bradford on Avon are within easy reach and include shops, public houses, public library, indoor swimming pool and a railway station. The Georgian city of Bath is easily accessible, positioned just 10 miles away.

Important Information

  • This is a Freehold property.
  • This Council Tax band for this property is: D
  • EPC Rating is C

Property Ref: DDB_DDB240013

Share:

Similar Properties

Bradford Leigh Bradford on Avon

4 Bedroom Detached House | Offers Over £600,000

Occupying a spacious plot featuring ample parking options and a garage this property is offered with no onward chain and...

Church Street Norton St Philip

3 Bedroom End of Terrace House | Asking Price £580,000

A beautiful 3-bedroom period house in a peaceful village setting. The property is end of terrace with a generous corner...

Beckerley Lane Holt

4 Bedroom Detached House | £550,000

An executive four bedroom detached family home tucked away at the end of a well regarded cul-de-sac location offering am...

Sully Bradford On Avon

3 Bedroom Semi-Detached House | Asking Price £615,000

A beautiful three double bedroom family home tucked away in a stunning riverside location directly overlooking the river...

Norton Grange Norton St Philip

5 Bedroom Detached House | Asking Price £725,000

A spacious, detached, five double bedroom family home in a peaceful cul-de sac location. Tucked away as one of just six...

Late Broads Winsley

4 Bedroom Detached House | £750,000

A well-positioned family home occupying a generous plot and offering well-proportioned accommodation in the sought after...

Davies & Davies (Bradford on Avon)

Bradford on Avon, Wiltshire, BA15 1JY

01225 867 555

How much is your home worth?

Use our short form to request a valuation of your property.

Request a Valuation

Mortgage Calculator

Amount Borrowed: £
Total Amount Repayable: £
Total Monthly Payment: £
©2025 The Guild of Property Professionals. All rights reserved. Terms and Conditions | Privacy Policy | Cookie Policy | Complaints Policy | Members Login
The Guild of Property Professionals Trading Address: 121 Park Lane, London W1K 7AG. GPEA Limited. Registered in England & Wales.  Company No: 02819824.  Registered Office Address: 2 St. Stephen's Court, St. Stephen's Road, Bournemouth, Dorset, England, BH2 6LA.  VAT Registration No: 576 8795 61
Book a Property Valuation Update Cookies Preferences