Chacewater Hill, Chacewater

Guide Price
£495,000

5 Bedroom Cottage for sale in Truro

4 5 3
  • THREE DWELLINGS
  • RANGE OF OUTBUILDINGS
  • THREE BEDROOM MAIN COTTAGE
  • HUGE POTENTIAL FOR CONVERSION
  • TWO x ONE BEDROOM COTTAGES
  • GARDENS & PADDOCK
  • APPROX 1.5 ACRES
  • RARE OPPORTUNITY
  • EDGE OF VILLAGE LOCATION
  • NO CHAIN

A UNIQUE OPPORUNITY TO PURCHASE A SMALL HOLDING SOLD WITH NO CHAIN

This is a fantastic opportunity to purchase a small holding situated on the edge of Chacewater. The package is sat within approximately 1.6 acres and consists of three dwellings and a range of former farm buildings of varying styles and sizes. There is also huge potential, subject to the necessary planning consent to create further dwellings or to run a business.

The main cottage comprises three bedrooms, with two one bedroom cottages either side that provide useful annexe accommodation or income potential. There is a driveway entrance, plenty of parking with gardens as well as a paddock.

Sold with no chain, viewing is highly recommended.

The Property - Kerling Farm is a unique package with tremendous potential to further enhance. Previously a working farm, currently comprising the original farmhouse with two smaller cottages to either side, as well as multiple outbuildings; the package has plenty of options to make one larger dwelling or to utilise potential income streams. Sat with approximately 1.6 acres, there are gardens, plenty of parking, a private access driveway and a paddock that enjoys views back towards the village of Chacewater. A rare opportunity to the market and sold with no chain, viewing is essential.

The main cottage comprises; three bedrooms, kitchen, sitting room, dining room and shower room. Cottage one comprises; kitchen, shower room, sitting room and a bedroom whilst cottage two comprises, kitchen, sitting room, bedroom and shower room. Additional land may be available to let with more information from sole agents.

Covenants - 1. Not to cause a nuisance or annoyance to the transferor or the owners or occupiers from time to time of the retained land.
2. Not to object to the use or proposed use of the Retained Land for agricultural, horticultural, equine or forestry purposes by the Transferor, or any successor in title or any tenant from him, for any purpose.
3. The seller will reserve the mineral rights under the property [surface mineral working excluded]

Location - Chacewater is a sought after village which is located within five miles of Truro. It benefits from a village shop, public house, bakers, doctors' surgery and primary school. Chacewater has a great sense of community with many village organisations and activities which are held throughout the year. The location offers easy access to the A30 via Scorrier and further amenities can be found in Truro.

Truro - Truro is renowned for its excellent shopping centre, fine selection of restaurants, bars, private and state schools and main line railway link to London (Paddington). The Hall for Cornwall is also a popular venue providing all year round entertainment and other cultural facilities include the Royal Cornwall Museum and the historic Cathedral.

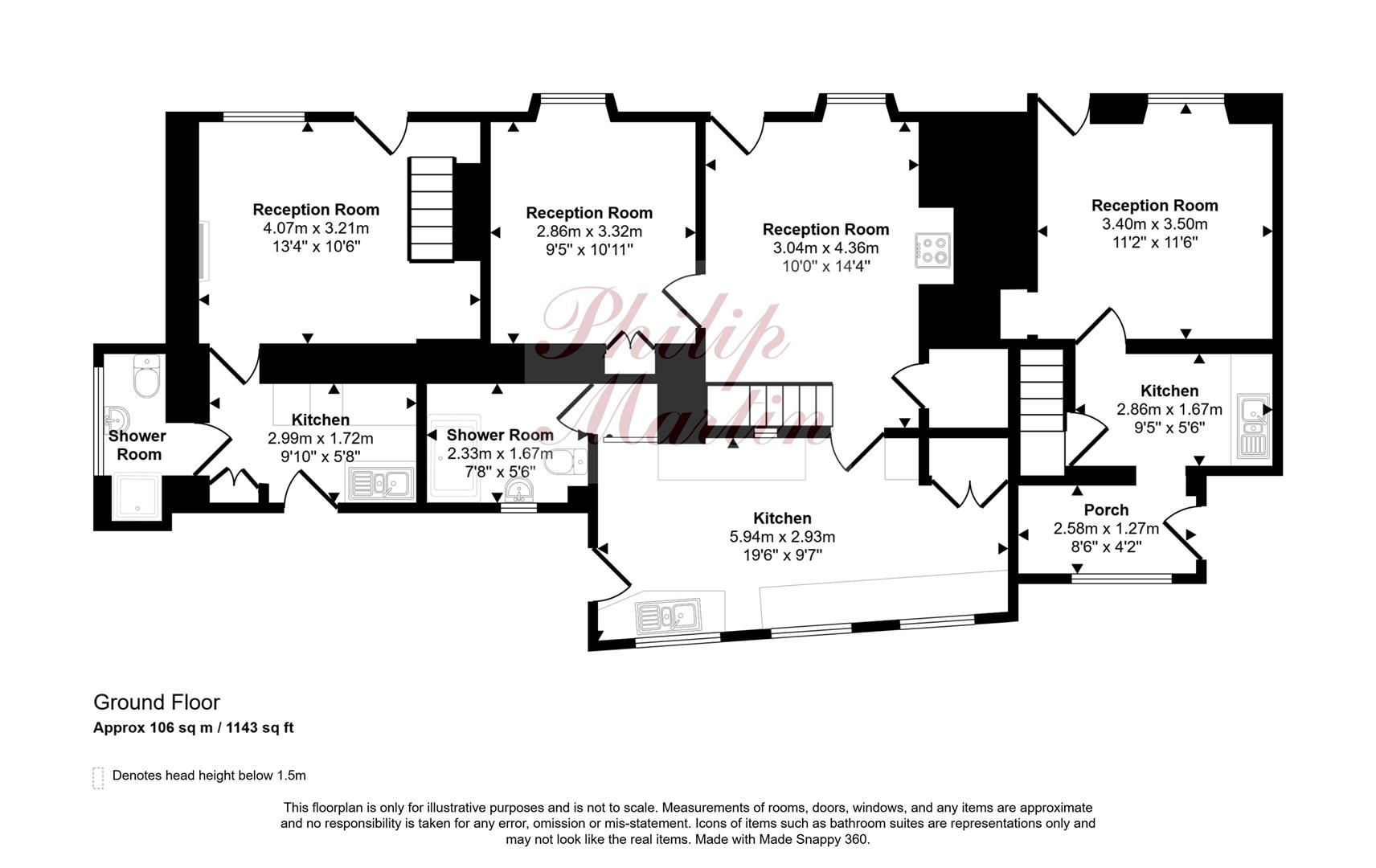
In greater detail the accommodation comprises (all measurements are approximate):

Main Cottage -

Ground Floor -

Kitchen - 5.94m x 2.93m (19'5" x 9'7") -

Shower Room - 2.33m x 1.67m (7'7" x 5'5") -

Reception Room - 4.36m x 3.04m (14'3" x 9'11") -

Reception Room - 3.32m x 2.86m (10'10" x 9'4") -

First Floor -

Bedroom - 3.51m x 2.91m (11'6" x 9'6") -

Bedroom - 3.11m x 2.42m (10'2" x 7'11") -

Bedroom - 2.41m x 2.10m (7'10" x 6'10") -

Cottage One - This one bedroom end terrace cottage comprises; kitchen, shower room and reception room to the ground floor with a bedroom and a storage room to the first floor. All measurements can be found on the floorplan.

Cottage Two - This one bedroom end terrace cottage comprises; entrance porch, kitchen and reception room to the ground floor with a bedroom and shower room to the first floor. All measurements can be found on the floorplan.

Range Of Outbuildings - Multiple former farm structures/outbuildings varying in size.
- 8.14m x 4.85m
- 4.01m x 3.30m
- 2.79m x 2.74m
- 6.31m x 3.52m
- 6.07m x 3.15m
- 5.40m x 5.38m
- 4.73m x 3.62m
- 3.97m x 3.20m.

Outside - There is a driveway providing access into Kerling Farm. The package in total equates to 1.6 acres including gardens and a paddock. There are a range of stone outbuildings which were former farm structures that provide useful storage spaces and could also provide potential to be converted, subject to the necessary planning consent.

Services - Mains water and electric. Private drainage. Oil fired central heating to main cottage only.

N.B - The electrical circuit, appliances and heating system have not been tested by the agents.

Council Tax - Main Cottage - B. Cottage One - B. Cottage Two - A.

Tenure - Freehold.

Directions - Proceeding towards Chacewater from the Truro direction, and before entering the village, Kerling Farm can be found on the left hand side where a Philip Martin for sale board has been erected.

Viewing - Strictly by Appointment through the Agents Philip Martin, 9 Cathedral Lane, Truro, TR1 2QS. Telephone: 01872 242244 or 3 Quayside Arcade, St. Mawes, Truro TR2 5DT. Telephone 01326 270008.

Data Protection - We treat all data confidentially and with the utmost care and respect. If you do not wish your personal details to be used by us for any specific purpose, then you can unsubscribe or change your communication preferences and contact methods at any time by informing us either by email or in writing at our offices in Truro or St Mawes.

Property Ref: 858996_34317341

Share:

Similar Properties

Tregonhayne Court, Tregony

3 Bedroom Barn Conversion | Guide Price £495,000

BARN CONVERSION IN SEMI RURAL LOCATION SOLD WITH NO CHAINThis three bedroom dwelling is situated on the outskirts of the...

Trelispen Park Drive, Gorran Haven

5 Bedroom Detached Bungalow | Guide Price £495,000

EXTENDED AND REMODELLED DETACHED BUNGALOWSituated on a desirable residential development within a cul de sac position an...

Treyew Road, Truro

6 Bedroom Semi-Detached House | Guide Price £480,000

SUBSTANTIAL SEMI DETACHED TOWNHOUSESituated in a superb location within a fabulous plot with a rear garden measuring app...

Devoran

3 Bedroom Terraced House | Guide Price £499,950

FABULOUS EXTENDED TERRACED COTTAGE IN MUCH SOUGHT AFTER CREEKSIDE VILLAGEA very attractive character cottage full of cha...

New Mills, Ladock

3 Bedroom Cottage | Guide Price £499,999

THREE BEDROOM PROPERTY OCCUPYING EXTENSIVE GROUNDSSunny Bank is a wonderful three bedroom character cottage situated in...

ROSELAND PENINSULA

3 Bedroom Detached House | Guide Price £500,000

SUBSTANTIAL DETACHED MODERN HOUSE ENJOYING COUNTRYSIDE VIEWS WITH THE SEA BEYOND.In the heart of the Roseland Peninsula...

Philip Martin (Truro)

Truro, Cornwall, TR1 2QS

01872 242244

How much is your home worth?

Use our short form to request a valuation of your property.

Request a Valuation

Mortgage Calculator

Amount Borrowed: £
Total Amount Repayable: £
Total Monthly Payment: £
©2025 The Guild of Property Professionals. All rights reserved. Terms and Conditions | Privacy Policy | Cookie Policy | Complaints Policy | Members Login
The Guild of Property Professionals Trading Address: 121 Park Lane, London W1K 7AG. GPEA Limited. Registered in England & Wales.  Company No: 02819824.  Registered Office Address: 2 St. Stephen's Court, St. Stephen's Road, Bournemouth, Dorset, England, BH2 6LA.  VAT Registration No: 576 8795 61
Book a Property Valuation Update Cookies Preferences