Trewinnard Road, Truro

Guide Price
£825,000
SSTC
This property listing is now SSTC

4 Bedroom Detached House for sale in Truro

3 4 3
  • Four double bedrooms (two en-suite)
  • Over 3000 sq.ft. of space
  • Prime Perranwell Station location
  • Exceptional rural views
  • Mature gardens
  • NO ONWARD CHAIN
  • Garage with electric door
  • Abundant gated driveway parking
  • Ideal family house close to village amenities

Why You'll Like It
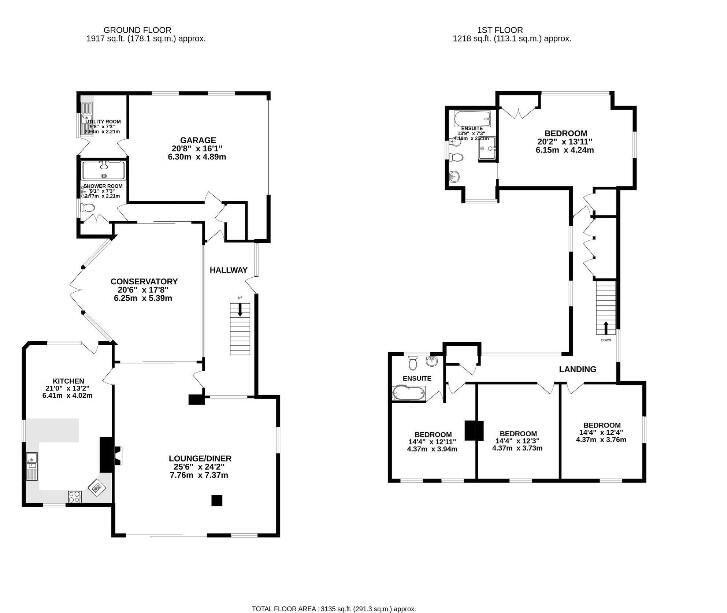
With over 3,000 square feet of space, this superb four double bedroom detached family house has been a much-loved home in a fantastic location, enjoying wonderful rural views while still being just a short walk from village amenities. Positioned on arguably one of the village’s most desirable roads, the property is set back from Trewinnard Road behind a high hedge with a gated entrance leading to a generous tarmac parking area and integral garage with electric door.

The house has an abundance of natural light and space, with views down the garden and across neighbouring farmland from different aspects throughout. The wide entrance hallway offers a welcoming sense of scale, with a bespoke staircase to the first floor and a striking glass feature wall with colourful abstract patterning. One of the inspired developments over the years has been the creation of a large 20ft conservatory infilling the former terrace, providing a bright and versatile year-round space.

The 25ft living room is a fabulous reception space with a granite fireplace and wood-burning stove, as well as sliding patio doors to the garden. This room also offers flexibility should you wish to subdivide and create, for example, a ground-floor bedroom in the future. The kitchen, refitted by Duchy Kitchens, provides an excellent range of contemporary country style units along with ample dining space, and has direct access to a sunny patio. Completing the ground floor is a stylish refitted shower room, ideally placed by the integral garage for returning from golf, sailing or other outdoor activities, and a useful utility room which also opens onto the garden.

Upstairs, the large L-shaped landing enjoys far-reaching countryside views. The principal bedroom suite is a true retreat with fitted wardrobes and a luxurious refitted en-suite bath and shower room with a generous walk-in enclosure and rain-style shower. The second double bedroom is also en-suite with a modern bathroom, and two further double bedrooms complete the first floor.

Outside, the gardens wrap around the front, side and rear of the property, featuring mature planting, attractive borders and several areas of sunny patio, making the most of the private and sunny setting. There is a garden shed with power supply. The property is offered for sale with no onward chain, and as a testament to this exceptional location, the current owners have built their new home next door to downsize to.

Where It Is
Perranwell Station is a thriving village where you'll find a community run village shop, pub, primary school and bus stops all also a pleasant stroll away. Located only approximately 6 miles or so from Truro and 5 miles from Falmouth, the village has a host of beautiful rural walks on the doorstep and the Bissoe Trail is just down the road where you can enjoy walking, running or cycling between the north and south coasts. The village has a thriving community hall, football club and cricket club and sailors will love nearby Mylor where there is a marina and access to the sailing waters of the River Fal. Residents of the village love the community, its gorgeous rural setting and the convenience of this location.

Services And Tenure
The property is freehold and has mains water, mains drainage, mains gas and mains electricity.

Council tax band G

IMPORTANT INFORMATION
Clive Pearce Property, their clients and any joint agents give notice that:
1. They are not authorised to make or give any representations or warranties in relation to the property either here or elsewhere, either on their own behalf or on behalf of their client or otherwise. They assume no responsibility for any statement that may be made in these particulars. These particulars do not form part of any offer or contract and must not be relied upon as statements of fact.

2 It should not be assumed that the property has all necessary planning, building regulation or other consents and Clive Pearce Property have not tested any services, equipment or facilities. Purchasers must satisfy themselves by inspection or otherwise.
3. Photos and Videos: The photographs and/or videos show only certain parts of the property as they appeared at the time they were taken. Areas, measurements and distances given are approximate only. Any computer generated image gives only an indication as to how the property may look and this may change at any time.
Any reference to alterations to, or use of, any part of the property does not mean that any necessary planning, building regulations or other consent has been obtained. A buyer must find out by inspection or in other ways that these matters have been properly dealt with and that all information is correct.
Information on the website about a property is liable to be changed at any time.

Important Information

  • This is a Freehold property.
  • This Council Tax band for this property is: G
  • EPC Rating is D

Property Ref: CPP02668

Share:

Similar Properties

School Hill / Chyvogue Lane, Perranwell Station

4 Bedroom Detached House | £800,000

An opportunity to develop and extend an existing detached house to create an impressive four bedroom detached family hou...

Nampara Way, Truro

4 Bedroom Detached Bungalow | £780,000

A spacious (over 2000 sq ft) four double bedroom, three reception detached bungalow standing in an exceptional level gar...

Perranwell Station, Between Truro & Falmouth

5 Bedroom Detached House | £750,000

Available for sale for the FIRST TIME IN 37 YEARS, this is a substantial FIVE BEDROOM, four reception room detached home...

Polsethow, Penryn

5 Bedroom Detached House | £849,950

A stunning, well designed BRAND NEW INDIVIDUAL DEATCHED FIVE BEDROOM home built and finished to a high specification. La...

Carnon Downs

4 Bedroom Detached House | £850,000

The property is an attractive four bedroom detached family home comprising a former Cobb cottage that has been thoughtfu...

Perranwell Station, Between Truro and Falmouth

4 Bedroom Detached Bungalow | £850,000

In one of the villages' most sought after cul de sacs, this four double bedroom detached residence is set within a level...

Clive Pearce Property (Truro)

Truro, Cornwall, TR1 2LS

01872 272622

How much is your home worth?

Use our short form to request a valuation of your property.

Request a Valuation

Mortgage Calculator

Amount Borrowed: £
Total Amount Repayable: £
Total Monthly Payment: £
©2026 The Guild of Property Professionals. All rights reserved. Terms and Conditions | Privacy Policy | Cookie Policy | Complaints Policy | Members Login
The Guild of Property Professionals Trading Address: 121 Park Lane, London W1K 7AG. GPEA Limited. Registered in England & Wales.  Company No: 02819824.  Registered Office Address: 2 St. Stephen's Court, St. Stephen's Road, Bournemouth, Dorset, England, BH2 6LA.  VAT Registration No: 576 8795 61
Book a Property Valuation Update Cookies Preferences