Cranbrook Close, Twydall, Gillingham, ME8

Guide Price
£270,000

3 Bedroom Terraced House for sale in Twydall, Gillingham

1 3 1
  • Chain Free
  • Three Separate Bedrooms
  • Popular Twydall Location
  • Spacious Kitchen / Diner
  • South West Facing Garden measuring approx. 50 x 23ft
  • Generous Lounge With French Doors Into The Garden
  • Scope For Further Development (STPP)
  • Close To Shops, Public Transport, Schools & Local Amenities

Guide Price £270,000 - £290,000. Chain Free and nestled in a quiet cul-de-sac within sought-after Twydall, this three-bedroom mid-terrace family home in Cranbrook Close offers space, comfort, and fantastic potential.

Step inside to find a generous lounge with French doors opening onto a sunny, south-westerly facing garden, perfect for family living and entertaining. The spacious kitchen/diner provides an ideal hub for mealtimes and gatherings, while the upstairs family bathroom serves two double bedrooms and a single bedroom, currently used as a home office. The main bedroom is a larger-than-average double boasting dual-aspect windows, creating a bright and airy retreat. Outside, the expansive garden offers scope for further development (STPP), giving you the opportunity to extend or enhance as you wish. The property also benefits from a modern combi boiler fitted in 2023, ensuring efficient heating and peace of mind. Situated close to local shops, amenities, and a great selection of schools, this home combines convenience with community living. With abundant on-street parking and no restrictions, it’s perfect for growing families or commuters alike.

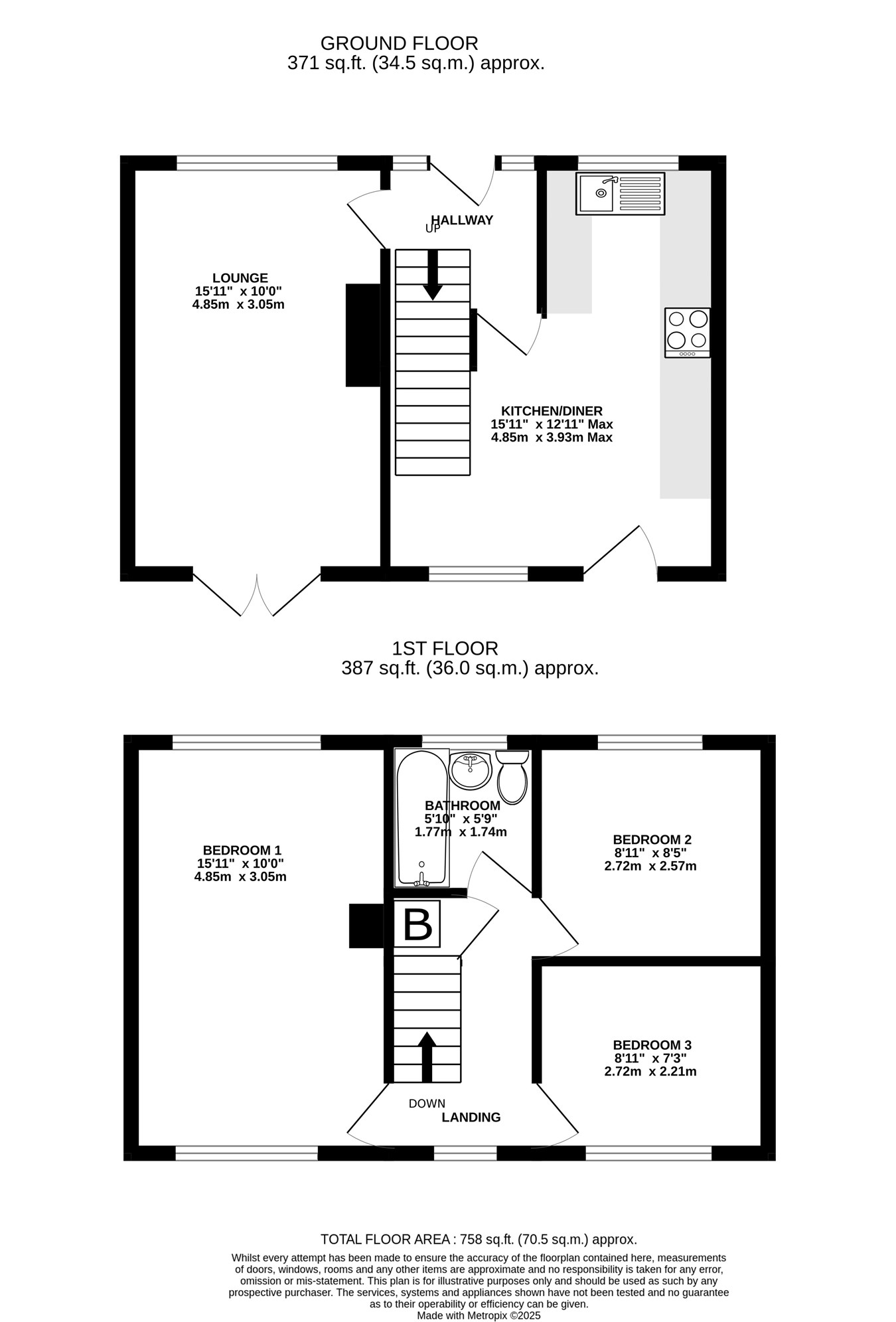
Homes in this area are always in high demand, so don’t miss out! Call the Greyfox Sales Team in Rainham today to arrange your viewing today.Ground Floor

Lounge
15' 11" x 10' 0" (4.85m x 3.05m)

Kitchen/ Diner
15' 11" x 12' 11" (4.85m x 3.94m)

First Floor

Bedroom 1
15' 11" x 10' 0" (4.85m x 3.05m)

Bathroom
5' 10" x 5' 9" (1.78m x 1.75m)

Bedroom 2
8' 11" x 8' 5" (2.72m x 2.57m)

Bedroom 3
8' 11" x 7' 3" (2.72m x 2.21m)

Important Information

  • This is a Freehold property.

Property Ref: 29593802

Share:

Similar Properties

Grange Road, Gillingham, ME7

3 Bedroom End of Terrace House | Offers in region of £260,000

Charming 3-Bedroom 1930s Bay-Fronted End Of Terrace Home with Generous Garden - EPC awaiting. Situated on a popular resi...

Rosebery Road, Gillingham, ME7

3 Bedroom Terraced House | Guide Price £260,000

*Guide Price £260,000 - £270,000* This charming and generously proportioned period terrace home is ideally located on a...

Hanway, Rainham, Gillingham, ME8

2 Bedroom End of Terrace House | Guide Price £260,000

**Guide Price £260,000-280,000** Located in a quiet cul-de-sac in Rainham, this ready-to-move-into two-bedroom end-of-te...

Foxburrow Close, Parkwood, Gillingham, ME8

2 Bedroom End of Terrace House | Guide Price £280,000

Guide Price - £280,000 - £290,000A modern and well-positioned two-bedroom end of terrace home, tucked away in a quiet cu...

Gladwyn Close, Parkwood, Gillingham, ME8

3 Bedroom Terraced House | Guide Price £280,000

**Guide price £280,000-£300,000"" Greyfox are pleased to offer this extended three-bedroom terraced family home, ideally...

Forge Lane, Upchurch, Sittingbourne, ME9

3 Bedroom Semi-Detached House | Offers Over £290,000

*Investment opportunity. Cash Buyers Only!*A wealth of character and situated in the popular village of Upchurch. Easy r...

Greyfox Sales & Lettings (Rainham)

High Street, Rainham, Kent, ME8 7HS

01634 377737

How much is your home worth?

Use our short form to request a valuation of your property.

Request a Valuation

Mortgage Calculator

Amount Borrowed: £
Total Amount Repayable: £
Total Monthly Payment: £
©2026 The Guild of Property Professionals. All rights reserved. Terms and Conditions | Privacy Policy | Cookie Policy | Complaints Policy | Members Login
The Guild of Property Professionals Trading Address: 121 Park Lane, London W1K 7AG. GPEA Limited. Registered in England & Wales.  Company No: 02819824.  Registered Office Address: 2 St. Stephen's Court, St. Stephen's Road, Bournemouth, Dorset, England, BH2 6LA.  VAT Registration No: 576 8795 61
Book a Property Valuation Update Cookies Preferences