St. Rollox Street, Hebburn

Offers in region of
£115,000

2 Bedroom Terraced House for sale in Tyne and Wear

2 2 1
  • Terraced House
  • Two Bedrooms
  • Close To Town Centre
  • Spacious Rooms
  • Neutral Decor
  • Great First Time Buy

This two-bedroom terraced home on St. Rollox Street offers a fantastic opportunity for first-time buyers or investors seeking space, convenience, and potential.
Inside, the home benefits from neutral décor throughout providing a blank canvas for personalisation. The ground floor offers two generously sized reception rooms, perfect for use as a lounge and separate dining area, home office or snug. The layout is flexible and well-suited to modern living.
The kitchen is functional and offers plenty of storage, with scope for modernisation to suit your taste.
Upstairs, you’ll find two spacious double bedrooms, both offering peaceful retreats with room for additional furnishings or workspace.
Outside, there’s a private rear yard.
Located just a short stroll from Hebburn town centre, the property enjoys easy access to local amenities, including shops, supermarkets and excellent transport links via bus and Hebburn Metro station with links to Newcastle and South Shields.
With its spacious interior, excellent location, and affordable price point, this property ticks all the boxes for a first-time buyer or anyone looking for a smart, well-located home with potential. Early viewing is strongly recommended to appreciate all this property has to offer.
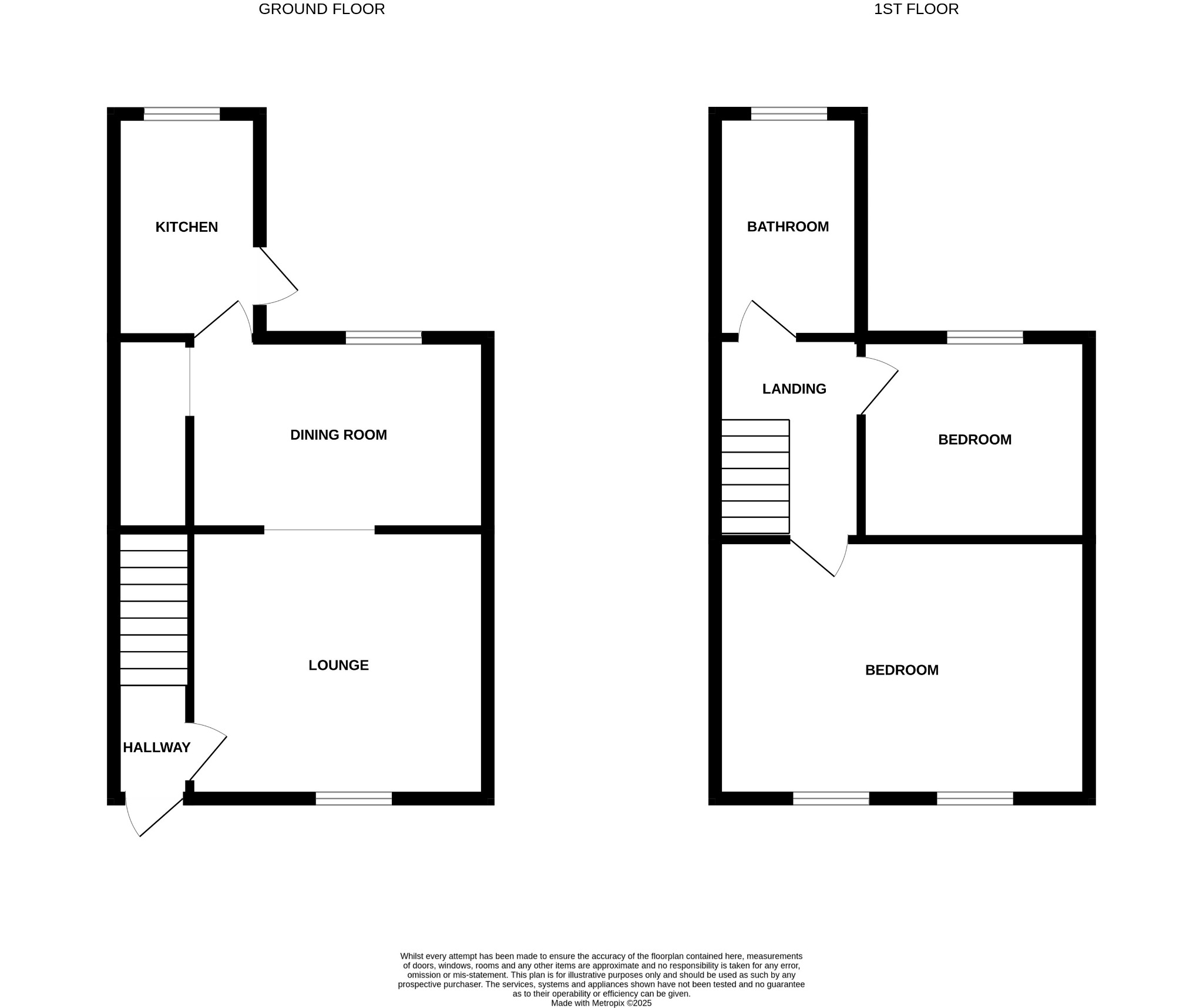
Entrance HallwayVia upvc double glazed door. With radiator and stairs to the first floor.
Lounge (4.18m x 3.92m)With double glazed window, radiator and feature fire place.
Dining Room (3.42m x 2.58m)With double glazed window and radiator.
Kitchen (2.93m x 1.93m)With a range of wall and floor units, sink with mixer tap, plumbing for washing machine, hob, oven, extractor hood, door to rear.
First Floor Landing
BathroomPanelled bath, shower cubicle, low level WC, pedestal wash basin, heated towel rail and double glazed window.
Bedroom Two (3.36m x 3.02m)With double glazed window and radiator.
Bedroom One (5.04m x 3.46m)Two double glazed windows and radiator.
ExternalYard with car parking to the rear.

Material Information• Tenure- Freehold• Length of lease- N/A• Annual ground rent amount- N/A• Ground rent review period- N/A• Annual service charge amount- N/A • Service charge review period- N/A• Council tax band – A• EPC - TBC

Important Information

  • This is a Freehold property.
  • This Council Tax band for this property is: A

Property Ref: 800_446031

Share:

Similar Properties

Gosforth Terrace, Gateshead, Tyne and Wear, NE10

2 Bedroom Semi-Detached House | Offers in region of £115,000

Situated in a good location, this property benefits from excellent transport links, making it convenient for commuting t...

Skegness Parade, Hebburn

3 Bedroom End of Terrace House | Offers in region of £115,000

Situated in a popular residential area of Hebburn, this three-bedroom end-terraced home is ideal for families and first-...

Bede Burn Road, Jarrow, Tyne and Wear, NE32

2 Bedroom Flat | Offers in region of £110,000

Situated on Bede Burn Road, this two-bedroom first-floor flat on Bede Burn Road is an excellent opportunity for first-ti...

Cloverhill, Jarrow, Tyne and Wear, NE32 4PX

3 Bedroom Terraced House | Offers in region of £119,950

Situated in a popular area of Jarrow, this three-bedroom terraced house is an excellent opportunity for first-time buyer...

Ann Street, Hebburn, Tyne and Wear, NE31

2 Bedroom Terraced House | Offers in region of £120,000

Explore the delights of Ann Street, Hebburn with this 2 bedroom terraced house.

Price Street, Hebburn, Tyne & Wear, NE31

2 Bedroom Terraced House | Offers in region of £120,000

Welcome to this two bedroom terraced house on the popular Price Street, Hebburn, an excellent opportunity for first-time...

Chase Holmes (Hebburn)

73 Station Road, Hebburn, North East England, NE31 1LA

0191 4245555

How much is your home worth?

Use our short form to request a valuation of your property.

Request a Valuation

Mortgage Calculator

Amount Borrowed: £
Total Amount Repayable: £
Total Monthly Payment: £
©2025 The Guild of Property Professionals. All rights reserved. Terms and Conditions | Privacy Policy | Cookie Policy | Complaints Policy | Members Login
The Guild of Property Professionals Trading Address: 121 Park Lane, London W1K 7AG. GPEA Limited. Registered in England & Wales.  Company No: 02819824.  Registered Office Address: 2 St. Stephen's Court, St. Stephen's Road, Bournemouth, Dorset, England, BH2 6LA.  VAT Registration No: 576 8795 61
Book a Property Valuation Update Cookies Preferences