Appleton Drive, Livingston

Fixed Price
£325,000
Under Offer
This property listing is now Under Offer

4 Bedroom Detached House for sale in

4
  • Beautifully presented four bedroom home
  • Warm and inviting lounge
  • Dining/kitchen area with seperate utility room
  • Master bedroom with ensuite
  • Three further double bedrooms
  • Garage and off-street parking
  • Private and enclosed rear garden
  • Livingston North train station is a five-minute drive
  • Ideal commuter location
  • Close to all local amenities

NEW FIXED PRICE £5,000 UNDER HOME REPORT VALUE
Positioned in a desirable Livingston residential development, this is a superb four-bedroom detached former show home characterised by a spacious layout, a tasteful interior design, high-quality finishes, and a meticulous attention to detail.

EPC Rating - Band B

The impressive accommodation comprises an east-facing lounge overlooking the front garden, a spacious dining kitchen with direct access to the rear garden, a well-equipped utility room, and a convenient ground-floor WC. Upstairs, there are four generously proportioned double bedrooms, including a principal bedroom with an en-suite shower room, along with a stylish family bathroom.

Designed for comfortable family living, the property is enhanced by an integral single-car garage, a driveway and an enclosed rear garden

Situated in the highly desirable Eliburn locale, residents have swift access to Eliburn Park, Livingston North Train Station, and Livingston's array of leisure and retail amenities.

What's special about this house

• Superb four-bedroom detached former show home in a sought-after setting.
• Light-filled east-facing lounge overlooking the front of the property and boasting plush carpeting, a serene colour palette and a generous footprint.
• Dining kitchen with seating area opening to the rear garden, ideal for entertaining and day-to-day family living. White gloss wall and floor units are complemented by black marble worktops and splashback. High-spec integrated appliances include an eye-level grill, oven, and hob.
• Well-appointed utility room adjoining the kitchen with ample storage, worktops, and space for appliances. Provides useful access to the garden and a ground-floor WC.
• Principal double bedroom with an elegant interior, built-in wardrobes and an en-suite shower room.
• Enclosed rear garden with a lush lawn and paving. A pergola creates a charming focal point and makes for a perfect place to enjoy al fresco entertaining.
• Ample off-street parking provided for by the monoblock driveway and integral single-car garage.

Location and Amenities

• A peaceful residential setting just a 5-minute drive from Eliburn Park with its play area, woodland walks, reservoir, and sports pitches
• 10-minute drive from Deer Park Golf and Country Club with its prestigious 18-hole course, beauty salon, thermal spa, swimming pool, gym, squash courts, and fitness classes
• The Centre Livingston and Livingston Designer Outlet are a short 10-minute drive, providing a wide variety of high street stores, boutiques, cafès, a VUE cinema, an ASDA supermarket, and casual dining options
• Ideal commuter location close to the M8 with easy access to Edinburgh (20 miles) and Glasgow (31 miles); the M9 is a short drive
• Livingston North Railway Station with regular links to Edinburgh and Glasgow is a 5-minute drive
• Edinburgh International Airport is just 12 miles from the property
• Scenic green spaces on the doorstep include Eliburn Park and Almond Valley Heritage Park
• Near to recreational activities such as Xcite Livingston Leisure Centre and Five Sisters Zoo

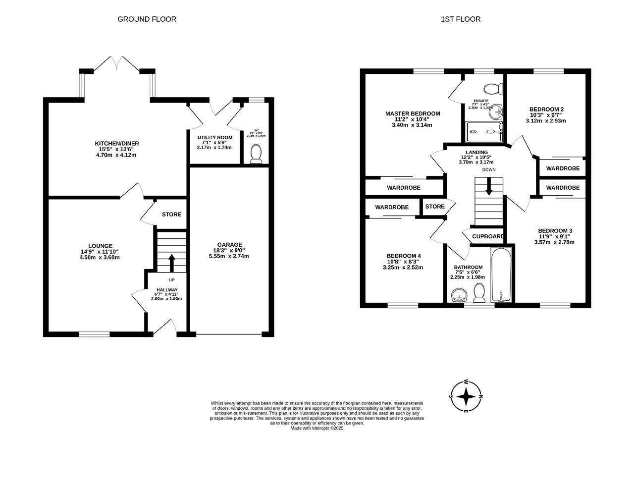
Dimensions:

Ground Floor –

Lounge 4.50 x 3.60m
Kitchen/Diner 4.70 x 4.12m
Utility Room 2.17 x 1.74m
Garage 5.55 x 2.74m

First Floor –

Bedroom 1 3.40 x 3.14m
Ensuite 2.30 x 1.30m
Bedroom 2 3.12 x 2.93m
Bedroom 3 3.57 x 2.78m
Bedroom 4 3.25 x 2.52m
Bathroom 2.25 x 1.98m

Property Ref: TUR1002646

Share:

Similar Properties

Main Street, Blackridge

4 Bedroom Detached House | Offers Over £325,000

Beautifully presented throughout, this exceptional four-bedroom detached Blackridge home set across three floors, showca...

Northrigg View, Blackridge

4 Bedroom Detached House | Offers Over £310,000

Northrigg View is a beautifully presented four-bedroom home, finished to an immaculate standard and thoughtfully arrange...

West Main Street, Blackburn

4 Bedroom Semi-Detached House | Offers Over £285,000

Beautifully presented four-bedroom semi-detached Blackburn home with idyllic south-east-facing rear views across the Riv...

South Mid Street, Bathgate

4 Bedroom Detached House | Offers Over £395,000

**Some images have been virtually staged for marketing purposes only**115 South Mid Street is a truly unique and substan...

Brotherton Forest, Livingston

5 Bedroom Detached House | Offers Over £425,000

Ideally situated in a modern residential and family friendly development, Brotherton Forest is a beautifully presented f...

Reveston Steadings, Whitburn

4 Bedroom Detached House | Offers Over £425,000

**CLOSING DATE SET WEDNESDAY 28th OF JANUARY AT 12 NOON****Some images have been virtually staged for marketing purposes...

Turpie & Co (Bathgate)

Bathgate, West Lothian, EH48 1BA

01506 668 448

How much is your home worth?

Use our short form to request a valuation of your property.

Request a Valuation

Mortgage Calculator

Amount Borrowed: £
Total Amount Repayable: £
Total Monthly Payment: £
©2026 The Guild of Property Professionals. All rights reserved. Terms and Conditions | Privacy Policy | Cookie Policy | Complaints Policy | Members Login
The Guild of Property Professionals Trading Address: 121 Park Lane, London W1K 7AG. GPEA Limited. Registered in England & Wales.  Company No: 02819824.  Registered Office Address: 2 St. Stephen's Court, St. Stephen's Road, Bournemouth, Dorset, England, BH2 6LA.  VAT Registration No: 576 8795 61
Book a Property Valuation Update Cookies Preferences