Main Street, Blackridge

Offers Over
£325,000
Under Offer
This property listing is now Under Offer

4 Bedroom Detached House for sale in

4
  • Immaculately presented and extended detached cottage
  • Bright and spacious open plan living/dining space
  • Modern Kitchen
  • Master bedroom occupying the first floor with en suite
  • Three further double bedrooms (two with en suite)
  • Landscaped rear garden
  • Parking included (2 Spaces)
  • Regular rail links to Edinburgh & Glasgow
  • Edinburgh Airport just 20 miles away
  • Ideal commuter location

Beautifully presented throughout, this exceptional four-bedroom detached Blackridge home set across three floors, showcases luxurious contemporary interiors, high-quality fixtures and finishes, and a deceptively spacious layout designed for modern living. A rare opportunity, the property has been thoughtfully extended to maximise both style and comfort.

EPC Rating - Band C

At the heart of the home, a spectacular south-east-facing kitchen seamlessly opens into a light-filled sitting and dining area, spanning the entire width of the property and offering direct access to the landscaped rear garden. Four generously sized double bedrooms each feature a stylish design, with three benefiting from en-suites. Completing the internal layout is a well-equipped utility room and a guest WC.

The property enjoys easy access to local amenities, including a post office, bar, library, health centre, park, and primary school. For commuters, Blackridge Train Station and the M8 provide swift links to Edinburgh and Glasgow, with Armadale and Bathgate also within easy reach. The property also has allocated parking as well as on street parking.

What's special about this house

• Immaculately presented and extended detached four-bedroom family home set in a welcoming semi-rural West Lothian village.
• A light-filled south-east-facing sitting and dining room spanning the width of the property and offering a seamless flow into the landscaped rear garden. Adorned with handsome wooden flooring and a soft neutral décor it exudes an ambience of relaxation.
• Spectacular and streamlined contemporary kitchen opening to the adjoining sitting/dining room and overlooking the garden. Finished in a chic grey and white colour scheme and with ambient lighting the sizeable space boasts extensive white wall and floor units complemented by smooth grey worktops. High-spec integrated Baumatic appliances include an eye-level grill, oven, instant hot water tap, five-ring gas hob, wine fridge, and American-style fridge/freezer. A utility on the ground floor offers additional storage whilst a breakfast bar seats four comfortably.
• Tranquil principal double bedroom occupying the first floor with bespoke built-in wardrobes and an indulgent en-suite bathroom. Spa-like in design it is equipped with Jack and Jill round counter-top washbasins built into two
wall-hung vanities; a WC; a deep bath, and a rainfall shower enclosure with a stainless-steel panel boasting adjustable body jets.
• Low-maintenance front garden nestled behind timber fencing. To the rear, the expansive landscaped garden features an Astroturf lawn bordered by three decking areas perfect for family life and entertaining. There is also a large garden room ideal for a variety of uses.

Location and Amenities

• A small and scenic semi-rural West Lothian village with a health centre, bar, pharmacy, shop, small library, and parish church
• Bathgate and Armadale offer a wide variety of pubs, restaurants, a library, post office, convenience stores, and local retailers
• Ideal commuter location minutes from the M8 with easy access to Edinburgh (27 miles) and Glasgow (23 miles); the M9 is a short drive away
• CityLink Bus service connecting to neighbouring towns and cities, only a five-minute drive
• Edinburgh International Airport is just 20 miles away from the property
• Scenic green spaces nearby include Westrigg Park, Blawhorn Moss Nature Reserve, and Polkemmet Country Park
• Close to family-friendly recreational activities such as Xcite Leisure Centre, Bathgate Golf Club, Armadale Thistle Football Club, and Armadale Speedway

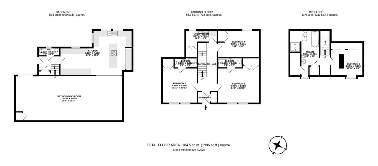
Dimensions

Underground Floor

Sitting/Dining Room 11.01m x 4.66m
Kitchen 7.38m x 4.65m
WC 2.22m x 0.84m

Ground Floor

Bedroom (1) 4.32m x 3.91m
Ensuite (1) 2.54m x 1.03m
Bedroom (2) 3.91m x 3.61m
Ensuite (2) 2.37m x 1.03m
Bedroom (4) 4.32m x 2.85m
Utility Room 3.27m x 2.05m

First Floor

Bedroom (3) 3.32m x 2.89m
Ensuite (3) 4.89m x 1.90m

Property Ref: TUR1002581

Share:

Similar Properties

Appleton Drive, Livingston

4 Bedroom Detached House | Fixed Price £325,000

NEW FIXED PRICE £5,000 UNDER HOME REPORT VALUE Positioned in a desirable Livingston residential development, this is a s...

Northrigg View, Blackridge

4 Bedroom Detached House | Offers Over £310,000

Northrigg View is a beautifully presented four-bedroom home, finished to an immaculate standard and thoughtfully arrange...

West Main Street, Blackburn

4 Bedroom Semi-Detached House | Offers Over £285,000

Beautifully presented four-bedroom semi-detached Blackburn home with idyllic south-east-facing rear views across the Riv...

South Mid Street, Bathgate

4 Bedroom Detached House | Offers Over £395,000

**Some images have been virtually staged for marketing purposes only**115 South Mid Street is a truly unique and substan...

Brotherton Forest, Livingston

5 Bedroom Detached House | Offers Over £425,000

Ideally situated in a modern residential and family friendly development, Brotherton Forest is a beautifully presented f...

Reveston Steadings, Whitburn

4 Bedroom Detached House | Offers Over £425,000

**CLOSING DATE SET WEDNESDAY 28th OF JANUARY AT 12 NOON****Some images have been virtually staged for marketing purposes...

Turpie & Co (Bathgate)

Bathgate, West Lothian, EH48 1BA

01506 668 448

How much is your home worth?

Use our short form to request a valuation of your property.

Request a Valuation

Mortgage Calculator

Amount Borrowed: £
Total Amount Repayable: £
Total Monthly Payment: £
©2026 The Guild of Property Professionals. All rights reserved. Terms and Conditions | Privacy Policy | Cookie Policy | Complaints Policy | Members Login
The Guild of Property Professionals Trading Address: 121 Park Lane, London W1K 7AG. GPEA Limited. Registered in England & Wales.  Company No: 02819824.  Registered Office Address: 2 St. Stephen's Court, St. Stephen's Road, Bournemouth, Dorset, England, BH2 6LA.  VAT Registration No: 576 8795 61
Book a Property Valuation Update Cookies Preferences