Woodhaven, Canterbury Road, Challock

Offers in region of
£725,000

4 Bedroom Detached House for sale in

4
  • Substantial Detached 1980s Built Family Residence
  • Four Generously Proportioned Bedrooms
  • Wood Burning Stove In Open Plan Living Area
  • Kitchen Breakfast Room & Separate Utility
  • Extensive Driveway & Large Garden
  • Potential To Convert Double Garage STPC
  • Village Location With Strong Sense Of Community
  • Excellent Access To Canterbury Faversham & Ashford
  • EPC RATING: D - COUNCIL TAX: F

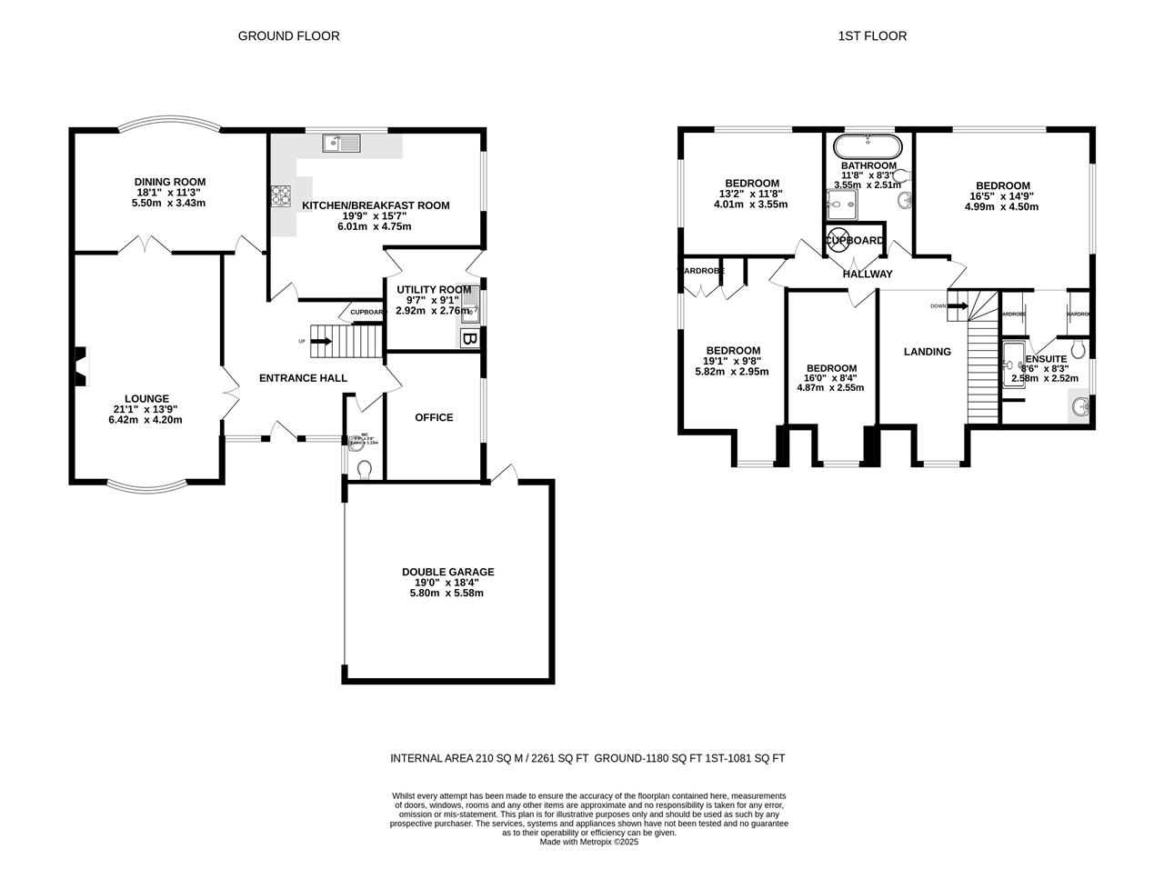
A substantial four-bedroom detached residence, built in the 1980s, offering over 2,200 sq. ft. of well-proportioned accommodation, in addition to a detached, pitched double garage that holds the potential for conversion (STPC).

Woodhaven occupies a generous plot of 0.17 acres of wonderfully private grounds, which are enclosed by beautiful, mature trees. It is nestled in the village of Challock, with central access to Ashford, Faversham, and Canterbury.

The façade primarily consists of exposed brick with dark-framed windows. The front door, with stained glass detailing, opens into a spacious entrance hall with a cloakroom and a handsome staircase leading to the first floor.

Solid wood flooring has been laid throughout and leads seamlessly to the bay-fronted sitting room, featuring an exposed brick fireplace that encompasses a wood-burning stove, which sits beneath an oak bressummer.

Double oak doors lead through to the living room, which enjoys views of the garden and access via French doors.

The kitchen/breakfast room sits adjacent and could potentially be knocked through to create a wonderfully sociable family space. The kitchen has an array of wall and floor units finished with laminate worktops and plenty of space for freestanding appliances.

The kitchen is further enhanced by a utility room, which offers access to the side of the house.

The ground floor is completed with an office overlooking the front drive.

To the first floor, there are four double bedrooms and a well-appointed family bathroom, which comprises a separate shower, bathtub, WC, and basin. The main bedroom has a walk-through dressing area and an en-suite shower room.

OUTSIDE:

Woodhaven occupies a generous plot of 0.17 acres of wonderfully private grounds. The garden is mainly laid to lawn and bordered by multiple conifers and other mature trees.

The patio area, spans the full width of the house, and offers plenty of room for alfresco dining. Part of the patio is slightly raised and features an above-ground swimming pool, economically heated by an air source heat pump.

To the front of the property, the long driveway provides parking for many cars and leads to the detached double garage, which presents the opportunity for conversion to offer additional accommodation or a self-contained annex (STPC).

SITUATION:

Woodhaven is situated in the village of Challock and is surrounded by beautiful countryside and woodland including Kings Wood. These 1500 acres of ancient woodland contain a rich variety of flora and fauna including roaming herds of fallow deer and provide a truly spectacular backdrop to this wonderfully rural property.

Challock is a picturesque and typically Kentish village, centred around the village Lees and situated high on the North Downs in an area of outstanding natural beauty. It is conveniently situated close to both the A251 from Faversham to Ashford and the A252 from Canterbury to Maidstone.

The village is served by a well-regarded primary school, The Barn Shop and a public house (The Stag). The village has a strong sense of community, with many clubs and societies running from either the village's Methodist chapel or the ancient Norman Church of Saint Comas and Saint Damian.

Other nearby villages include Charing (4 miles), Wye (4 miles) and Chilham (5 miles) and Selling (6 miles), all of which offer a good range of local services including shops, primary schools, a post office, butchers, and railway stations.

From a wider range of amenities, you have the market towns of Faversham (7 miles), Ashford (7 miles) and the Cathedral city of Canterbury (11 miles). Both Canterbury and Ashford offer a good selection of shopping and leisure facilities, private and state schools, hospitals and mainline stations with high-speed links to London.






We endeavour to make our sales particulars accurate and reliable, however, they do not constitute or form part of an offer or any contract and none is to be relied upon as statements of representation or fact. Any services, systems and appliances listed in this specification have not been tested by us and no guarantee as to their operating ability or efficiency is given. All measurements and floor plans and site plans are a guide to prospective buyers only, and are not precise. Fixtures and fittings shown in any photographs are not necessarily included in the sale and need to be agreed with the seller.

Property Ref: 58691_FPS1002687

Share:

Similar Properties

Springfield Lodge, Bekesbourne Lane, Bekesbourne

4 Bedroom Detached House | £725,000

Built in the 1930's this substantial detached residence and adjoining annex has recently been updated by the current own...

Three Corners, Grove Green Road, Weavering, Maidstone

5 Bedroom Detached House | Offers Over £725,000

A substantial detached residence offering over 2,000 sq.ft of versatile accommodation, including an integral garage that...

Palm Tree Inn, Canterbury Road, Elham

5 Bedroom Detached House | £725,000

A substantial five-bedroom Grade II Listed detached residence offering enviable views of Elham Valley, whilst occupying...

Coleman House, Cullings Hill, Elham

4 Bedroom Detached House | £750,000

An enchanting four-bedroom detached period residence nestled in the heart of Elham village, offering a substantial south...

Rose House, Weavering Street, Grove Green

4 Bedroom Detached House | £750,000

An artistically presented and characterful four-bedroom detached family home, originally built in the 1930s, offering ov...

Balfour Road, Walmer

4 Bedroom Detached House | £760,000

A creatively extended four-bedroom detached residence offering almost 2,200 sq. ft of spectacular accommodation, with an...

Foundation Estate Agents (Faversham)

2nd Floor, 3 Jubilee Way, Faversham, Kent, ME13 8GD

01227 752617

How much is your home worth?

Use our short form to request a valuation of your property.

Request a Valuation

Mortgage Calculator

Amount Borrowed: £
Total Amount Repayable: £
Total Monthly Payment: £
©2025 The Guild of Property Professionals. All rights reserved. Terms and Conditions | Privacy Policy | Cookie Policy | Complaints Policy | Members Login
The Guild of Property Professionals Trading Address: 121 Park Lane, London W1K 7AG. GPEA Limited. Registered in England & Wales.  Company No: 02819824.  Registered Office Address: 2 St. Stephen's Court, St. Stephen's Road, Bournemouth, Dorset, England, BH2 6LA.  VAT Registration No: 576 8795 61
Book a Property Valuation Update Cookies Preferences