Warley Road, Upminster

Guide Price
£650,000
SSTC
This property listing is now SSTC

2 Bedroom Semi-Detached House for sale in Upminster

2 2 1
  • BEAUTIFULLY PRESENTED THROUGHOUT
  • IMPRESSIVE GROUND FLOOR LIVING SPACE
  • TWO BEDROOMS
  • GARAGE
  • POTENTIAL TO EXTEND (STTP)
  • 1.3 MILES TO HAROLD WOOD STATION
  • LARGE SOUTH FACING REAR GARDEN
  • 2.5 MILES TO UPMINSTER STATION

We are delighted to present this beautifully maintained semi-detached home, situated on the sought-after Warley Road. Offered with No Onward Chain, the property boasts impressive ground-floor living accommodation alongside a large, attractive south facing rear garden, perfect for families and entertaining. Currently offering two well-proportioned bedrooms, the home also provides excellent potential to extend (STPP). Conveniently positioned for both Harold Wood and Upminster stations, this property combines comfortable living with easy access to excellent transport links.

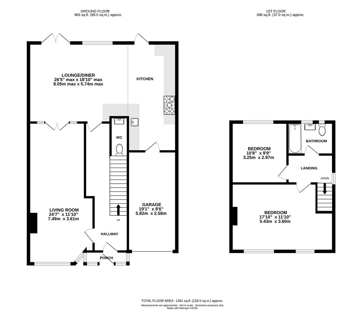
The internal accommodation begins with a welcoming entrance hall, leading to a bright and comfortable front-facing lounge. Double doors open through to an impressive open-plan kitchen, lounge and dining area, creating a fantastic sense of space. The well-appointed kitchen features a range of eye and base level units with contrasting worktops, along with direct access to the rear garden and an internal door to the integral garage. The space flows seamlessly into the lounge/diner, providing an ideal setting for family life and entertaining, enhanced by French doors that open out onto and overlook the rear garden. A ground-floor cloakroom completes this floor.

To the first floor, the landing provides access to two well-proportioned bedrooms and a stylish family bathroom.

Externally, the south facing rear garden begins with a paved patio area, leading onto a vast, well-maintained lawn bordered by mature shrubs. To the front, a shingle driveway offers ample off-street parking.

Entrance Hall -

Living Room - 7.49 x 3.61 (24'6" x 11'10") -

Kitchen/Lounge/Diner - 8.05 x 5.74 (26'4" x 18'9") -

Landing -

Bedroom One - 5.43 x 3.60 (17'9" x 11'9") -

Bedroom Two - 3.25 x 2.97 (10'7" x 9'8") -

Bathroom -

Garage - 5.82 x 2.58 (19'1" x 8'5") -

Agents Note - As part of the service we offer we may recommend ancillary services to you which we believe may help you with your property transaction. We wish to make you aware, that should you decide to use these services we will receive a referral fee. For full and detailed information please visit 'terms and conditions' on our website www.keithashton.co.uk

Property Ref: 34430966

Share:

Similar Properties

Willowdene Court, Warley, Brentwood

4 Bedroom Detached House | Guide Price £650,000

** Guide Price £650,000 - £675,000** We are pleased to present this detached family home ideally situated in the popular...

Osborne Road, Pilgrims Hatch, Brentwood

4 Bedroom Detached House | £650,000

We are delighted to bring to market this detached family home situated in the ever-popular Pilgrims Hatch area of Brentw...

Rayleigh Road, Hutton, Brentwood

4 Bedroom Semi-Detached House | Guide Price £650,000

**Guide Price £650,000 - £700,000** We are delighted to bring to market this impressive family home, ideally situated on...

41 Shenfield Road, Shenfield, Brentwood

2 Bedroom Apartment | Guide Price £655,000

We are proud to present 41 Shenfield Road Apartments - an exclusive, gated development of just nine brand-new luxury apa...

Headley Chase, Warley, Brentwood

4 Bedroom Detached House | Guide Price £695,000

Situated in the highly desirable 'Old Hartswood' area, this detached family home in need of some modernisation, boasts f...

Tree Tops, Brentwood

4 Bedroom Detached House | POA

** OPEN HOUSE - SATURDAY 21ST MAY - STRICTLY BY APPOINTMENT ONLY ** Requiring complete modernisation throughout and loca...

Keith Ashton Estates - Brentwood Office (Brentwood)

26 St. Thomas Road, Brentwood, Essex, CM14 4DB

01277 260858

How much is your home worth?

Use our short form to request a valuation of your property.

Request a Valuation

Mortgage Calculator

Amount Borrowed: £
Total Amount Repayable: £
Total Monthly Payment: £
©2026 The Guild of Property Professionals. All rights reserved. Terms and Conditions | Privacy Policy | Cookie Policy | Complaints Policy | Members Login
The Guild of Property Professionals Trading Address: 121 Park Lane, London W1K 7AG. GPEA Limited. Registered in England & Wales.  Company No: 02819824.  Registered Office Address: 2 St. Stephen's Court, St. Stephen's Road, Bournemouth, Dorset, England, BH2 6LA.  VAT Registration No: 576 8795 61
Book a Property Valuation Update Cookies Preferences