Penrose, Wadebridge, PL27 7TB

£625,000

4 Bedroom Detached House for sale in Wadebridge

2 4 1
  • LOUNGE WITH WOODBURNER
  • KITCHEN/DINING ROOM WITH RAYBURN RANGE
  • LARGE CONSERVATORY
  • SEPARATE UTILITY
  • 4 BEDROOMS AND BATHROOM AT FIRST FLOOR
  • UPVC DOUBLE GLAZED WINDOWS
  • LPG HEATING
  • PRIVATE GARDENS
  • DETACHED STONE BUILT GARAGE

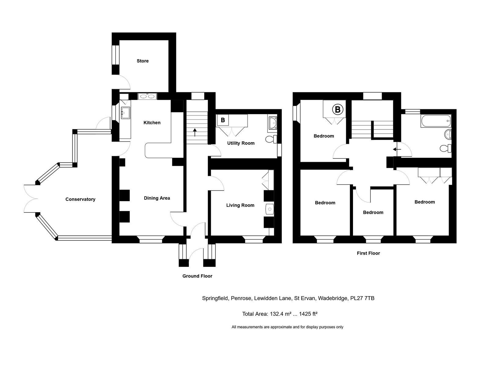
Springfield is a pretty detached stone built character home set in the middle of the hamlet of Penrose on a level plot.
 
Featuring a lounge with wood burner together with a generous 6.9m kitchen/dining room which has a Rayburn oil fired cooking range.  To one side is a large UPVC double glazed conservatory with double doors to the garden, together with a separate utility room on the ground floor.
 
At first floor Springfield offers 4 bedrooms and family bathroom and the property also has the benefit of LPG central heating and UPVC double glazing.
 
The gardens offer great privacy, together with the advantage of a detached stone built garage.
 
For those purchasers seeking a real character home in a quiet hamlet setting Springfield should be considered ideal and an early viewing appointment is highly recommended.

Penrose is an idyllic rural village located approximately two miles from St Merryn and five miles from Padstow. Within a one and a half - five miles are many of North Cornwall's finest sandy beaches.


Merlin golf course is approximately two miles distance with the championship links golf course of Trevose just four miles away. Many of North Cornwall's finest surfing bays are within four miles as is Newquay airport with regular flights to London.



ACCOMMODATION WITH ALL MEASUREMENTS BEING APPROXIMATE:


DOUBLE GLAZED FRONT DOOR IN UPVC FRAME OPENING TO:


ENTRANCE PORCH


Double glazed on two sides in UPVC frame, quarry tiled floor, timber door to:

ENTRANCE HALL


Radiator, stairs to first floor, stripped timber floors.

LOUNGE - 3.4m x 2.9m (11'1" x 9'6")


Double glazed window in UPVC frame to front, feature fireplace housing wood burner on slate hearth, radiator, beamed ceiling, stripped timber floors.

KITCHEN/DINING ROOM - 6.9m x 3.3m (22'7" x 10'9")


Double glazed window in UPVC frame to front, the kitchen is fitted with a range of units comprising on base cupboards with worktop over and wall cupboards above, integral electric oven and four ring hob, Butler style sink unit with mixer tap, Rayburn Royale oil fired cooking range set in tiled recess, slate flagged floor, former fireplace recess in dining area (not in use), radiator, stripped timber floors.

CONSERVATORY - 5.5m x 4m (18'0" x 13'1")


Double glazed in UPVC frame with French doors to garden and further door to side.

UTILITY ROOM - 2.6m x 2.3m (8'6" x 7'6")


Window to side, space and plumbing for washing machine, sink unit with cupboard under, low flush WC, double cupboard housing LPG boiler supplying central heating.

FIRST FLOOR


LANDING


Radiator, stripped timber floor.

BEDROOM ONE - 3.5m x 2.7m (11'5" x 8'10")


Double glazed window in UPVC frame to front, built-in wardrobe, radiator, stripped timber floors.

BEDROOM TWO - 3.4m x 2.6m (11'1" x 8'6")


Double glazed window in UPVC frame to front, radiator, stripped timber floor.

BEDROOM THREE - 2.4m x 2m (7'10" x 6'6")


Double glazed window in UPVC frame to front, stripped timber floors.

BEDROOM FOUR - 2.4m x 2.3m (7'10" x 7'6")


Double glazed window in UPVC frame to side, double airing cupboard housing hot water cylinder with slatted shelving, stripped timber floors.

BATHROOM


Panelled bath with electric shower and glazed shower screen, pedestal wash hand basin and low flush WC, radiator, stripped timer floors, window to rear.

OUTSIDE


ATTACHED WORKSHOP - 2.7m x 2.5m (8'10" x 8'2")


Double glazed window in UPVC frame to front, light and power.

DETACHED STONE BUILT GARAGE


Under slatted roof with double timber doors opening to front.

GARDEN


There is a private level patio at one side together with lawn.  A pathway around to the rear of the house leads to small slate courtyard with a further garden laid to lawn on the other side of the house which is laid to lawn with natural shrubs and stone built log store.
 
A further garden extends to the front with lawn and enclosed with mature hedge boundary.

TENURE


Freehold

COUNCIL TAX BAND


D

WHAT 3 WORDS


sunflower.straying.culling

Important Information

  • This is a Freehold property.

Property Ref: 192_1234290

Share:

Similar Properties

Harlyn Bay, PL28

3 Bedroom Semi-Detached House | £600,000

A contemporary and spacious three bedroom semi detached family home located within 150m of Harlyn's beautiful Sandy Beac...

St Merryn, PL28

3 Bedroom Detached House | £595,000

Enjoying a private and secluded setting this 3 bedroom (1 bathroom and 1 en-suite) detached bungalow with secluded south...

St Issey, PL27

4 Bedroom Detached House | £585,000

Impressive four bedroom family residence, located within a unique, brand new carbon neutral development located within t...

Padstow, PL28

1 Bedroom Hospitality | £650,000

Due to retirement, an established and successful Fish & Chip business with one bedroom residential accommodation occupyi...

Padstow, PL28

4 Bedroom Apartment | Offers Over £750,000

Delightfully spacious 4/5 bedroom maisonette enjoying stunning estuary views, with 2 reception rooms, private gardens, g...

Little Dinas, Padstow, PL28 8DQ

2 Bedroom Bungalow | £750,000

A two bedroom detached bungalow which has been extensively improved enjoying super views at the rear over Dennis Cove La...

Cole Rayment & White (Padstow)

Padstow, Cornwall, PL28 8AB

01841 533386

How much is your home worth?

Use our short form to request a valuation of your property.

Request a Valuation

Mortgage Calculator

Amount Borrowed: £
Total Amount Repayable: £
Total Monthly Payment: £
©2025 The Guild of Property Professionals. All rights reserved. Terms and Conditions | Privacy Policy | Cookie Policy | Complaints Policy | Members Login
The Guild of Property Professionals Trading Address: 121 Park Lane, London W1K 7AG. GPEA Limited. Registered in England & Wales.  Company No: 02819824.  Registered Office Address: 2 St. Stephen's Court, St. Stephen's Road, Bournemouth, Dorset, England, BH2 6LA.  VAT Registration No: 576 8795 61
Book a Property Valuation Update Cookies Preferences