Dudley Road, Walton-On-Thames

Guide Price
£995,000

4 Bedroom House for sale in Walton-On-Thames

2 4 2

A traditional gable and bay fronted, detached family home positioned at the end of no through road within a highly coveted Walton-on-Thames River Road with easy access on foot to the Thames towpath.  



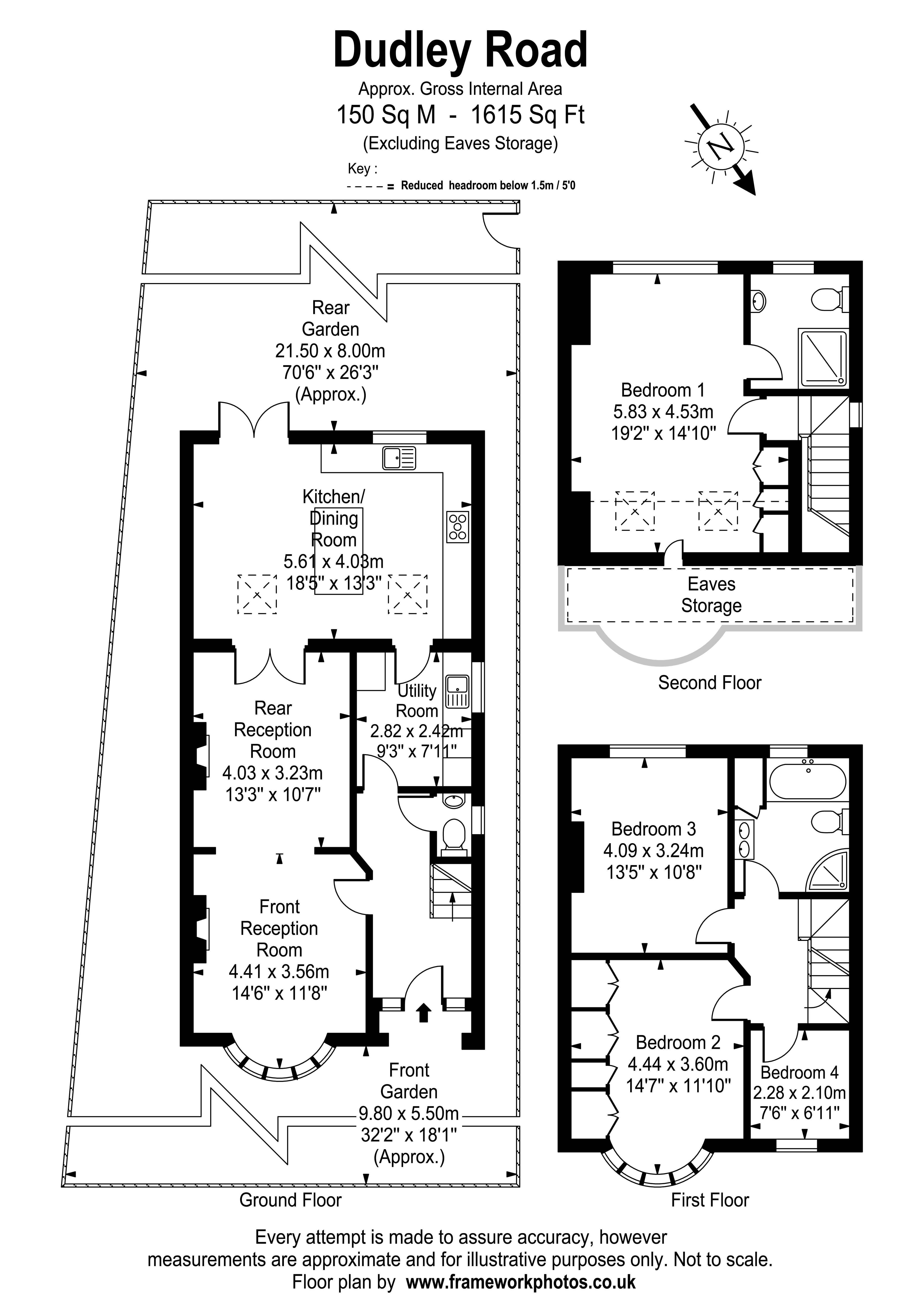
This architecturally handsome detached property with its distinctive red brick facade is especially reminiscent of the 1930s period.  Extended in recent years – to include a full width ground floor kitchen extension and loft conversion – it now provides beautifully presented and well planned accommodation across three floors (GIA, abt. 150 sqm / 1615 sqft).      



On approach to the house, steps lead up to a brick arched storm-porch with attractive hard wood & part glazed front door, offset nicely against matching leaded side windows.  A welcoming entrance hallway has wood flooring and radiator cover, balustrade staircase and a highly practical under stair guest W/C.   Wood flooring continues through into the sitting room as well as the dining area, both featuring ornate cast-iron ornamental fireplaces.  



Twin-doors from the dining area takes you through to a bright kitchen/breakfast/family room measuring some 5.61 x 4.03m | 18'5" x 13'3" which opens out to the garden terrace.  The kitchen comes with plenty of storage, large range cooker, and centres around a sociable breakfast island. There is still space to accommodate a large sofa, alternatively this would make for a nice play area.  To complete the ground floor a generous utility room (formerly the kitchen) also has plenty of cupboards, undercounter space for washing machine and separate dryer, a second sink, and room for freestanding fridge / and separate freezer.  



Upstairs, the first floor landing has a side window.  This floor opens up to three bedrooms (two doubles and a good single) supported by a modern fitted four-piece family bathroom with separate shower.  From the landing a balustraded staircase continues naturally up to the second floor, passing a further side window on the half-landing.  This floor provides a lovely master bedroom suite with fitted wardrobes and enjoys its own beautifully appointed en suite shower room in keeping with the age and style of the property.  There are lovely views on this floor with glimpses of River Thames.  



Outside, a low maintenance front garden enjoys gated access down both sides the property.  The rear garden with its sunny southwesterly aspect measures a comfortable 70ft and enjoys superb privacy and seclusion with two tall privet hedges running along both boundaries.  A hard standing at the far end would easily accommodate a garage/store as well as garden studio, if desired, and this would still allow plenty of garden space remaining.   



Location:  Dudley Road is a well regarded desirable residential neighboured under half a mile to the town centre with a diverse range shops, amenities and well-known chain restaurants such as Pizza Express, Nando's, Buenasado steak house, Five Guys and Carluccio's.  Pedestrian access to the Thames towpath is nearby, so this is a perfect spot for water lovers seeking access to the River for rowing, kayaking or paddle boarding.   The area also has a great selection or schools and nurseries in close proximity including the new senior school, Heathside Walton recently awarded Outstanding by Ofsted. 

Important Information

  • This is a Freehold property.

Property Ref: EAXML14612_12027395

Share:

Similar Properties

Wick Road, Teddington

4 Bedroom House | Guide Price £985,000

A tastefully refurbished four bedroom, two bathroom, Victorian property situated in much requested Teddington enclave wi...

Quinton Road, Thames Ditton

3 Bedroom House | Asking Price £985,000

Miles & Bird are delighted to offer to the market a brand new semi-detached house in a cul-de-sac location near Giggs Hi...

Dennis Road, East Molesey

3 Bedroom House | Guide Price £975,000

A superb semi-detached Victorian villa situated in a highly regarded East Molesey Village side road, extensively refurbi...

Hardman Road, Kingston Upon Thames

4 Bedroom House | Guide Price £1,020,000

This traditional bay fronted period home provides an escape from the hustle and bustle of the town centre and has surpri...

Wick Road, Teddington

5 Bedroom House | Guide Price £1,050,000

A traditional bay fronted Victorian property, tastefully presented and with lots of character, situated in a popular sid...

Gloucester Road, Twickenham

5 Bedroom End of Terrace House | Guide Price £1,075,000

This substantial and well presented five bedroom, two bathroom family home forms part of the highly popular 'Counties' a...

Miles & Bird (East Molesey)

East Molesey, Surrey, KT8 9HA

020 3875 3875

How much is your home worth?

Use our short form to request a valuation of your property.

Request a Valuation

Mortgage Calculator

Amount Borrowed: £
Total Amount Repayable: £
Total Monthly Payment: £
©2026 The Guild of Property Professionals. All rights reserved. Terms and Conditions | Privacy Policy | Cookie Policy | Complaints Policy | Members Login
The Guild of Property Professionals Trading Address: 121 Park Lane, London W1K 7AG. GPEA Limited. Registered in England & Wales.  Company No: 02819824.  Registered Office Address: 2 St. Stephen's Court, St. Stephen's Road, Bournemouth, Dorset, England, BH2 6LA.  VAT Registration No: 576 8795 61
Book a Property Valuation Update Cookies Preferences