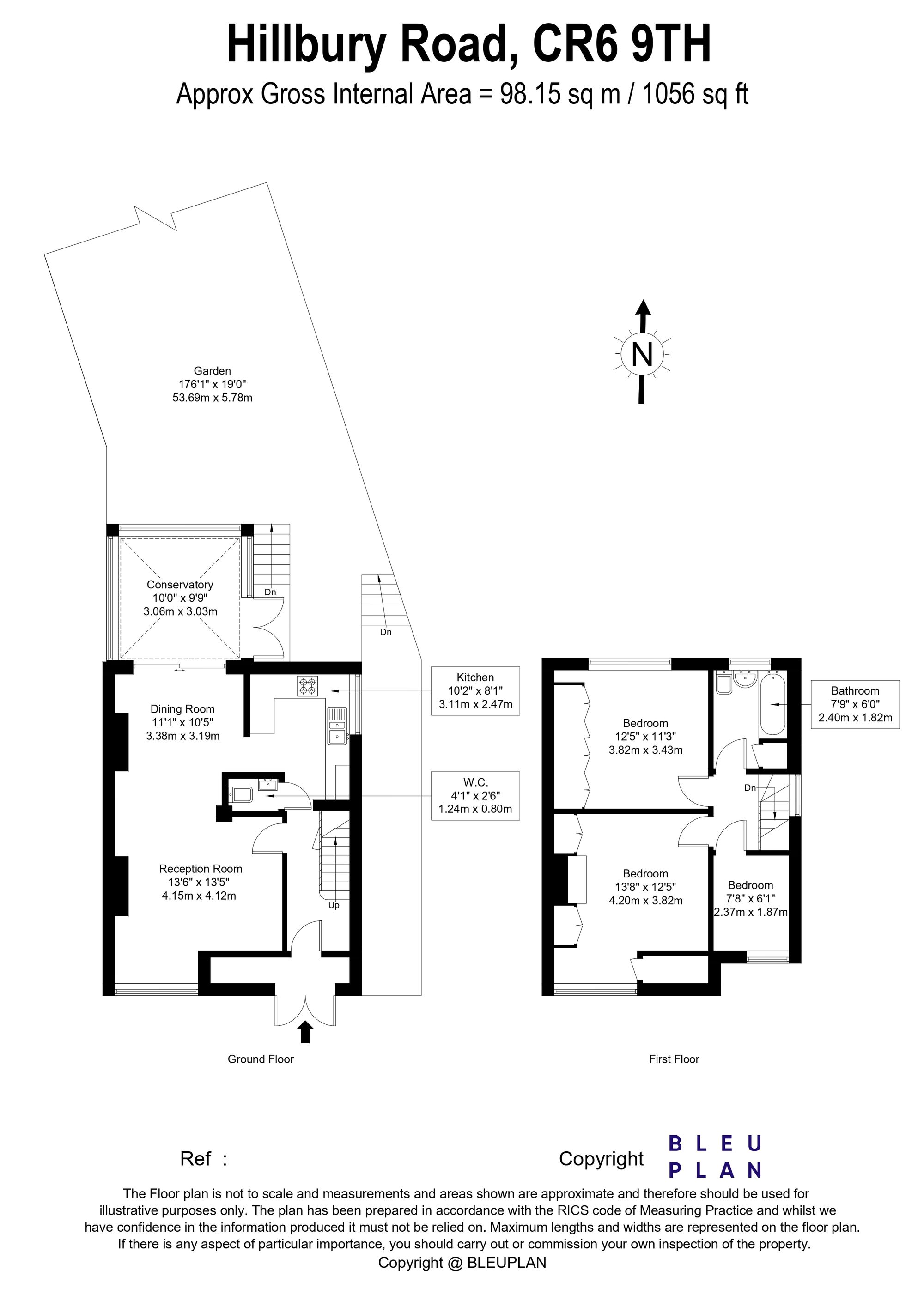
Hillbury Road, Warlingham, CR6

Guide Price
£475,000
SSTC
This property listing is now SSTC

3 Bedroom Semi-Detached House for sale in Warlingham

1 3 1
  • Vacant Posession
  • Off Street Parking For Two Cars
  • In Need Of Modernisation
  • Walking distance to Whyteleafe and Upper Warlingham Train Stations
  • Ideal For First Time Buyers / Families
  • Close To Highly Regarded Local Schools
  • Short Drive To Gatwick Airport
  • Overlooking Warlingham Park
  • Charming Three Bedroom House
  • Large Private Garden

Presenting a charming three-bedroom semi-detached house, this delightful property offers an ideal opportunity for those seeking a blank canvas to renovate to their own taste and style. Situated in a coveted location, this residence provides an idyllic setting and the perfect canvas for first-time buyers or families looking to create a home tailored to their needs.

Offering a vacant possession, this property boasts three bedrooms, two of which are good size doubles ideal for accommodating a growing family or hosting guests. Noteworthy features include off-street parking for two cars, a coveted amenity that adds convenience and ease to daily life. The house overlooks the picturesque Warlingham Park, providing a tranquil and serene environment.

Conveniently located within walking distance of both Whyteleafe and Upper Warlingham Train Stations, commuting is made effortless. Additionally, the property's proximity to highly regarded local schools makes it an excellent choice for families with school-age children. For frequent travellers, Gatwick Airport is just a short drive away, ensuring stress-free travel arrangements.

Embracing a cosy ambience, this property exudes potential with ample room for personalisation and customisation. The large private garden presents a wonderful opportunity for outdoor living and entertaining, making it a standout feature of this residence.

While the property requires modernisation, its well-connected location, peaceful surroundings, and generous living spaces make it a compelling opportunity for those looking to create a home that perfectly suits their lifestyle.

In summary, this three-bedroom semi-detached house offers a blank canvas with ample potential, coupled with convenient amenities, all in a desirable location. With its charming allure, this property is sure to captivate those seeking a home they can truly make their own.

Energy Efficiency Current: 62.0
Energy Efficiency Potential: 85.0

Important Information

  • This is a Freehold property.
  • This Council Tax band for this property is: E

Property Ref: 150190cc-dbbc-4c3a-ba82-251d277f7b75

Share:

Similar Properties

Ullswater Crescent, London, SW15

5 Bedroom Detached House | £6,500pcm

CHESTERFIELD GORDON bring this amazing 5 bedroom DETACHED FAMILY HOME arranged over 3 floors

Charles Clowes Walk, London, SW11

2 Bedroom Apartment | £4,500pcm

An impressive interior designed 902 Sq Ft two-bedroom, two-bathroom apartment located in Thornes House forming part of T...

Muncaster Road, London, SW11

3 Bedroom Terraced House | £4,000pcm

Nestled just behind Clapham Common, Muncaster Road presents an exceptional three bedroom Victorian townhouse offering a...

Greenwood Gardens, Caterham, CR3

4 Bedroom Townhouse | Guide Price £749,950

Situated on a quiet, tree-lined cul-de-sac, this impressive and unique four bedroom, two bathroom END OF TERRACE TOWN HO...

Shortlands Road, Kingston Upon Thames, KT2

4 Bedroom Semi-Detached House | Guide Price £899,950

Rare opportunity to create dream home in desirable Kingston location. Ready for bespoke renovation and expansion. Ideal...

Leman Street, London, E1

2 Bedroom Apartment | Guide Price £900,000

Nestled within a RESTORED VICTORIAN BUILDING of significant HISTORICAL VALUE, this exquisite TWO-BEDROOM APARTMENT offer...

Chesterfield Gordon (Battersea)

18 The Power Station, Battersea, London, SW11 8BZ

0203 336 1433

How much is your home worth?

Use our short form to request a valuation of your property.

Request a Valuation

Mortgage Calculator

Amount Borrowed: £
Total Amount Repayable: £
Total Monthly Payment: £
©2025 The Guild of Property Professionals. All rights reserved. Terms and Conditions | Privacy Policy | Cookie Policy | Complaints Policy | Members Login
The Guild of Property Professionals Trading Address: 121 Park Lane, London W1K 7AG. GPEA Limited. Registered in England & Wales.  Company No: 02819824.  Registered Office Address: 2 St. Stephen's Court, St. Stephen's Road, Bournemouth, Dorset, England, BH2 6LA.  VAT Registration No: 576 8795 61
Book a Property Valuation Update Cookies Preferences