Dorchester Way, St Nicolas Park, Nuneaton, CV11 6XB

Guide Price
£460,000
SSTC
This property listing is now SSTC

4 Bedroom Detached House for sale in Warwickshire

2 4 2
  • Extended Detached Residence
  • Sought-After Location
  • Great Young Family Home
  • Many Pleasing Features
  • Higham Lane School Catchment
  • Four Bedrooms & Two Bathrooms
  • Large Garage & Lovely Garden
  • Viewing Recommended
  • EPC Rating C
  • Council Tax Band D

Alan Cooper Estates is proud to present this most attractive extended Detached Residence, offering spacious and well planned accommodation designed to suit the needs of a modern family lifestyle. This delightful home is presented in excellent order throughout and is offered for sale with no upward chain, making internal viewing highly recommended to fully appreciate its quality and appeal.
Occupying a pleasant location within a highly sought-after area upon the favoured St Nicolas Park estate, this property is perfectly positioned for families. It is conveniently situated for easy daily access to Nuneaton's town centre, providing a wealth of excellent local amenities, shops, and services. Furthermore, its proximity to key road links ensures straightforward commuting.
One of the significant benefits of this property is its location within the catchment area for the highly desired Milby Primary and Higham Lane Secondary Schools, making it an ideal choice for families prioritising education. The home's style and layout are perfectly suited for a growing family, offering versatile spaces for both relaxation and everyday living.
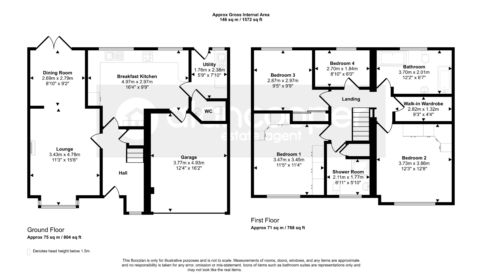
Upon entering, you are greeted by a welcoming reception hall. The delightful lounge features a charming fireplace and a window to the front elevation, creating a warm and inviting atmosphere. This lounge seamlessly extends through to the dining area, which boasts glazed double doors leading directly out to the rear garden, perfect for indoor-outdoor entertaining.
The spacious breakfast kitchen is well appointed with a built-in oven and hob, and windows overlooking the rear garden, ensuring a bright and airy cooking space. Adjacent to the kitchen, a useful utility room provides practical additional space, and a conveniently refitted guests' cloakroom completes the ground floor accommodation.
Upstairs, the landing leads to four well proportioned bedrooms. The fourth bedroom offers flexibility and could easily adapt as a home office, catering to contemporary working-from-home needs. The first floor also benefits from a quality refurbished family bathroom and a separate shower room, providing ample facilities for a busy household. A walk-in dressing room off the landing presents an exciting opportunity, as it could potentially be converted into an en-suite to the adjacent bedroom, adding further value and convenience.
Externally, the property boasts a spacious garage with direct access, complemented by a large driveway offering ample motor car hardstanding. The front garden is neatly lawned, and side pedestrian access leads to the fully enclosed rear garden. This private outdoor space features a pleasant patio area, a lawn with attractive floral borders, a further covered seating area to the rear, and a brick-built barbeque, perfect for outdoor dining and relaxation.
We invite you to view our online Home360 virtual tour and schedule an appointment to view with Alan Cooper Estates today.
Our experienced sales team are always on hand to answer any questions you may have and guide you through the buying process.
Reception HallHaving a half glazed front entrance door with UPVC sealed unit double glazed side window. Central heating radiator and staircase leading off to the first floor with cupboard below.
Lounge11' 3" x 15' 8"Having an attractive feature fireplace housing a natural coal effect living flame gas fire, central heating radiator and UPVC sealed unit double glazed bay window.
Dining Room8' 10" x 9' 2"Having a central heating radiator and UPVC sealed unit double glazed doors leading to the rear garden.
Breakfast Kitchen16' 4" x 9' 9" plus recessHaving a one and a half bowl single drainer sink with mixer tap, fitted base unit, additional base cupboards and drawers with work surfaces over and fitted wall cupboards. Built-in oven, hob and extractor hood. Two central heating radiators, door to the garage and two UPVC sealed unit double glazed windows overlooking the rear garden.
Utility Room5' 9" x 7' 10"Having a single drainer stainless steel sink with mixer tap, fitted base unit, worktop and fitted wall cupboards. Central heating radiator, plumbing for an automatic washing machine, UPVC sealed unit double glazed window and door leading to the rear garden.
Guests CloakroomHaving a modern suite comprising a white wash hand basin and low-level WC. Heated towel rail and an extractor.
LandingWith loft access and a useful walk-in wardrobe, which could potentially be converted into an en-suite serving the adjacent bedroom.
Bedroom 111' 5" x 11' 4"Having a range fitted wardrobes, central heating radiator and UPVC sealed unit double glazed window.
Bedroom 212' 3" x 12' 8"Having a range of fitted wardrobes, drawer units and vanity unit. Central heating radiator, loft access and UPVC sealed unit double glazed window.
Bedroom 39' 5" x 9' 9" plus recessHave a built-in wardrobe with mirrored sliding doors, central heating radiator and UPVC sealed unit double glazed window.
Bedroom 48' 10" x 6' 0"Having a central heating radiator and UPVC sealed unit double glazed window.
Family Bathroom12' 2" x 6' 7"The quality refurbished family bathroom fully tiled to the walls and has a white suite comprising a panelled bath, walk-in shower cubicle, wash hand basin with drawer below and low-level WC. Vertical central heating radiator, inset ceiling spotlights and UPVC sealed unit double glazed window.
Family Shower Room6' 11" x 5' 10" plus door recessBeing fully tiled to the walls and having a white suite comprising a shower cubicle, wash hand basin with cupboard below and low-level WC. Vertical central heating radiator, built-in airing cupboard and UPVC sealed unit double glazed window.
Garage12' 4" x 16' 2"The larger than average garage has an up and over entrance door and direct access over a wide driveway that provides additional motor car hardstanding. The garage houses the gas fired boiler.
GardensHaving a lawned front garden and side pedestrian access leading to the fully enclosed rear garden, which has a patio area, lawn with floral borders and a further covered patio area to the rear of the garden with an adjacent brick built barbecue.
Local AuthorityNuneaton & Bedworth Borough Council.
Agents NoteWe have not tested any of the electrical, central heating or sanitary ware appliances. Purchasers should make their own investigations as to the workings of the relevant items. Floor plans are for identification purposes only and not to scale. All room measurements and mileages quoted in these sales details are approximate. Subjective comments in these details imply the opinion of the selling Agent at the time these details were prepared. Naturally, the opinions of purchasers may differ. These sales details are produced in good faith to offer a guide only and do not constitute any part of a contract or offer. We would advise that fixtures and fittings included within the sale are confirmed by the purchaser at the point of offer. Images used within these details are under copyright to Alan Cooper Estates and under no circumstances are to be reproduced by a third party without prior permission.

Important Information

  • This is a Freehold property.
  • This Council Tax band for this property is: D

Property Ref: 504997

Share:

Similar Properties

Wolvey Road, Bulkington, CV12 9JR

4 Bedroom Detached House | Guide Price £450,000

A superb Detached character home built in 2019 and offering stylish accommodation designed to suit the needs of a modern...

Wem Drive, Raveloe Gardens, Bulkington, CV12 9BA

4 Bedroom Detached House | Guide Price £450,000

A superb Detached Residence built by Taylor Wimpey Homes to a high specification and offering excellent accommodation de...

Northbourne Drive, Maple Park, Nuneaton, CV11 4GA

5 Bedroom Detached House | Offers Over £450,000

Here is a superbly appointed modern Detached Residence offering spacious and vastly improved family accommodation with a...

Flower Garden Drive, St James' Gate, Weddington, Nuneaton, CV10 0FX

4 Bedroom Detached House | Guide Price £465,000

This most impressive double fronted Detached Residence offers a high specification design perfectly suited for a modern...

Harvest Way, Weddington, Nuneaton, CV10 0FJ

4 Bedroom Detached House | Guide Price £465,000

A superb modern Detached Residence offering spacious and well maintained family accommodation with two reception rooms,...

Hinckley Road, Nuneaton, CV11 6LG

5 Bedroom Semi-Detached House | Offers Over £475,000

Here is a superb Semi Detached Residence, offering vastly improved and deceptively spacious accommodation designed to su...

Alan Cooper Estates (Nuneaton)

22 Newdegate Street, Nuneaton, Warwickshire, CV11 4EU

024 7634 9336

How much is your home worth?

Use our short form to request a valuation of your property.

Request a Valuation

Mortgage Calculator

Amount Borrowed: £
Total Amount Repayable: £
Total Monthly Payment: £
©2026 The Guild of Property Professionals. All rights reserved. Terms and Conditions | Privacy Policy | Cookie Policy | Complaints Policy | Members Login
The Guild of Property Professionals Trading Address: 121 Park Lane, London W1K 7AG. GPEA Limited. Registered in England & Wales.  Company No: 02819824.  Registered Office Address: 2 St. Stephen's Court, St. Stephen's Road, Bournemouth, Dorset, England, BH2 6LA.  VAT Registration No: 576 8795 61
Book a Property Valuation Update Cookies Preferences