Hillcroft Crescent, Watford, WD19

£685,000

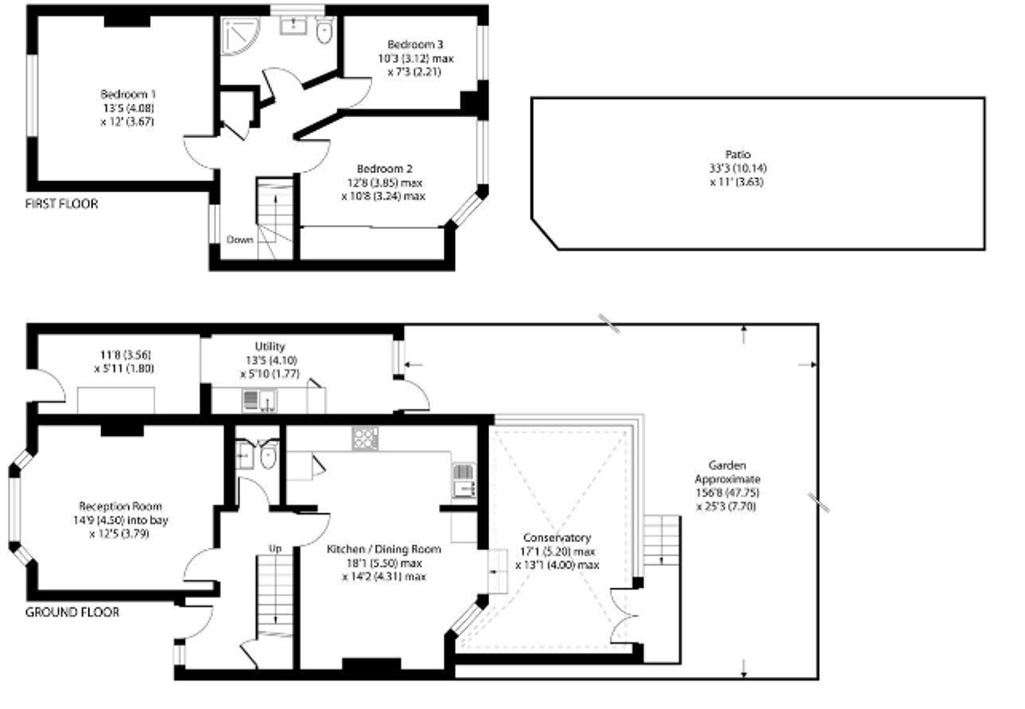
3 Bedroom Semi-Detached House for sale in Watford

2 3 1
  • Halls adjoining semi detached
  • 140 rear garden
  • Utility area
  • Ground floor w/c
  • Conservatory

A spacious three bedroom halls-adjoining semi detached property with a 140’ rear garden situated on one of Oxhey Hall’s most prestigious roads.

Presented in excellent order throughout the property features a spacious L shaped entrance hallway, downstairs cloakroom, front reception room, kitchen/dining room, opening into a spacious conservatory extension. There are three bedrooms and family shower-room. Externally there is a fully equipped utility room leading into a storage shed.

To the front is a driveway for several vehicles and to the rear is an enclosed garden of around 140’ with a large patio and decking area with bar.

Oxhey Hall is close to the Town centres of Oxhey & Watford which both offer a wide variety of shops, boutiques, restaurants, bars and food halls. Nearby stations (Carpenders Park and Bushey) provide fast commuter links into Central London.

Pursuant to the 1979 Estate Agents Act I can confirm that the sellers are known to a representative of Lawrence Rand.

Energy Efficiency Current: 59.0
Energy Efficiency Potential: 80.0

Important Information

  • This is a Freehold property.
  • This Council Tax band for this property is: F

Property Ref: 1cd1106c-a4c6-44a8-a52c-57a538b8456d

Share:

Similar Properties

Manor Road Harrow

3 Bedroom Semi-Detached House | Asking Price £675,000

This well presented three bedroom semi-detached house, situated in a popular road This property boasts a comfortable and...

Cranbourne Road, Northwood, HA6

2 Bedroom Detached Bungalow | £675,000

Two bedroom detached bungalow which has been extended to the rear, with off street parking.

Lower Ash Estate, Shepperton, TW17

3 Bedroom Detached Bungalow | Guide Price £675,000

Three bedroom detached property with Two bathrooms and river views

Ferncroft Avenue, Ruislip, HA4

3 Bedroom Semi-Detached House | Guide Price £695,000

Chain free. Well maintained three bedroom semi detached home, two double bedrooms, and a generous single. Off street par...

Anmersh Grove Stanmore

3 Bedroom Semi-Detached House | Asking Price £695,000

Three bedroom extended semi detached family home on a sought after road. There is further potential to extend subject to...

Alexandra Avenue, Harrow, HA2

3 Bedroom Semi-Detached House | Guide Price £699,950

Lawrence Rand (Ruislip Manor)

Ruislip Manor, Middlesex, HA4 9BH

01895 632211

How much is your home worth?

Use our short form to request a valuation of your property.

Request a Valuation

Mortgage Calculator

Amount Borrowed: £
Total Amount Repayable: £
Total Monthly Payment: £
©2025 The Guild of Property Professionals. All rights reserved. Terms and Conditions | Privacy Policy | Cookie Policy | Complaints Policy | Members Login
The Guild of Property Professionals Trading Address: 121 Park Lane, London W1K 7AG. GPEA Limited. Registered in England & Wales.  Company No: 02819824.  Registered Office Address: 2 St. Stephen's Court, St. Stephen's Road, Bournemouth, Dorset, England, BH2 6LA.  VAT Registration No: 576 8795 61
Book a Property Valuation Update Cookies Preferences