Stables End, Aldenham, Watford, Hertfordshire, WD25

£1,300,000
SSTC
This property listing is now SSTC

6 Bedroom Detached House for sale in Watford

3 6 3

Nestled within the highly sought-after village of Aldenham, this impressive six-bedroom detached residence is situated on the exclusive private road of Stables End.
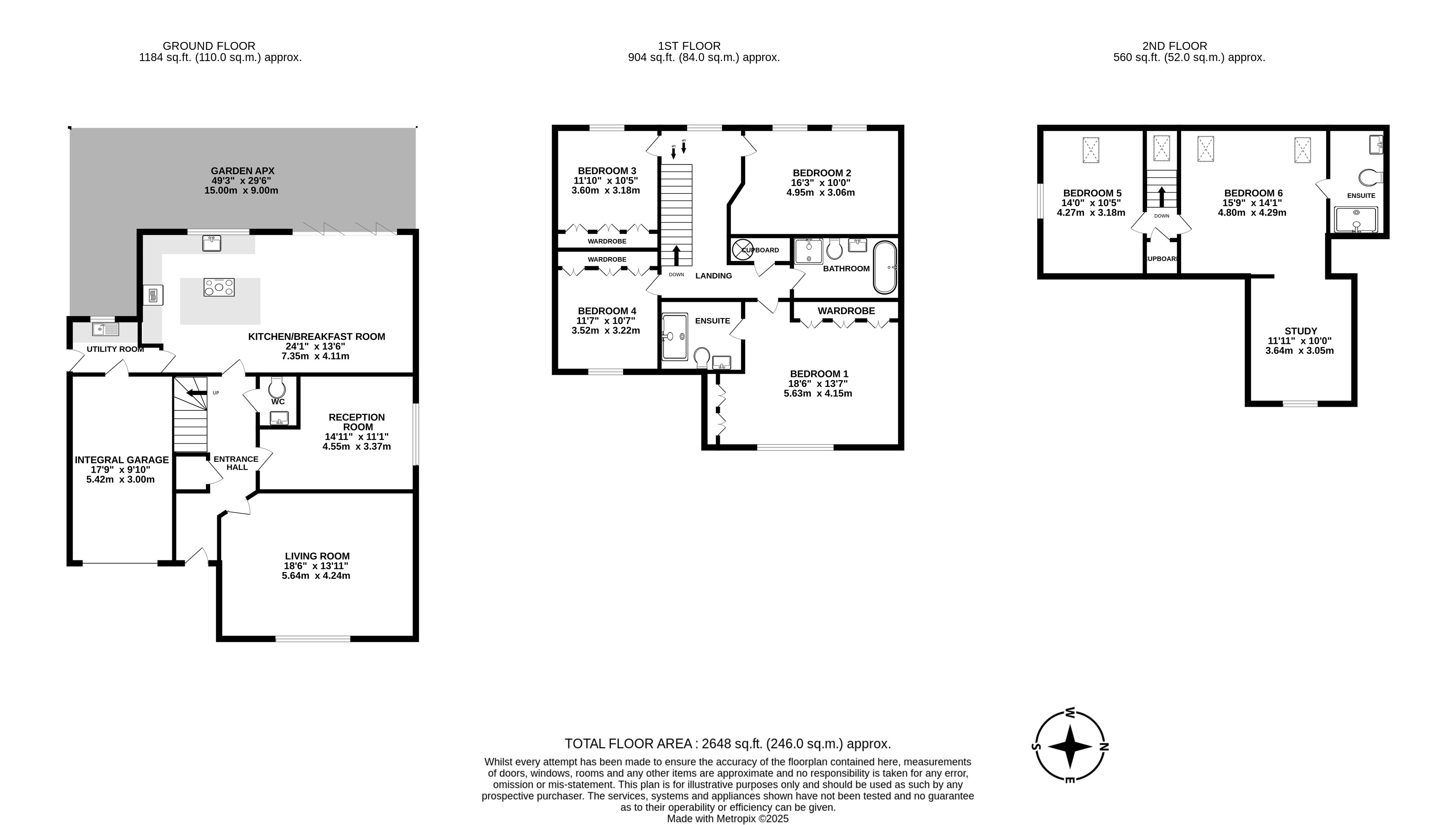
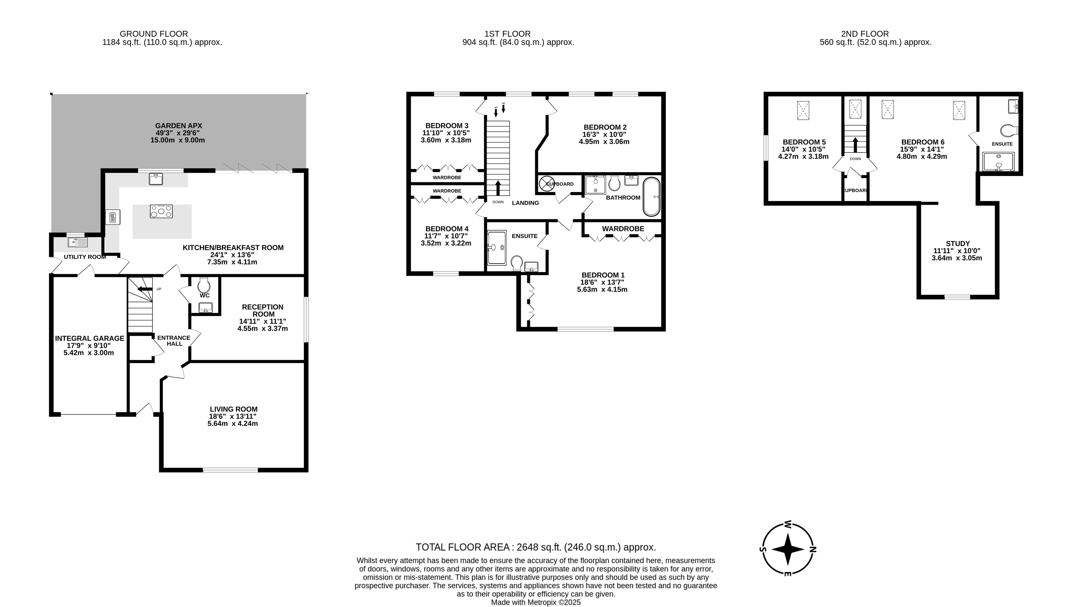
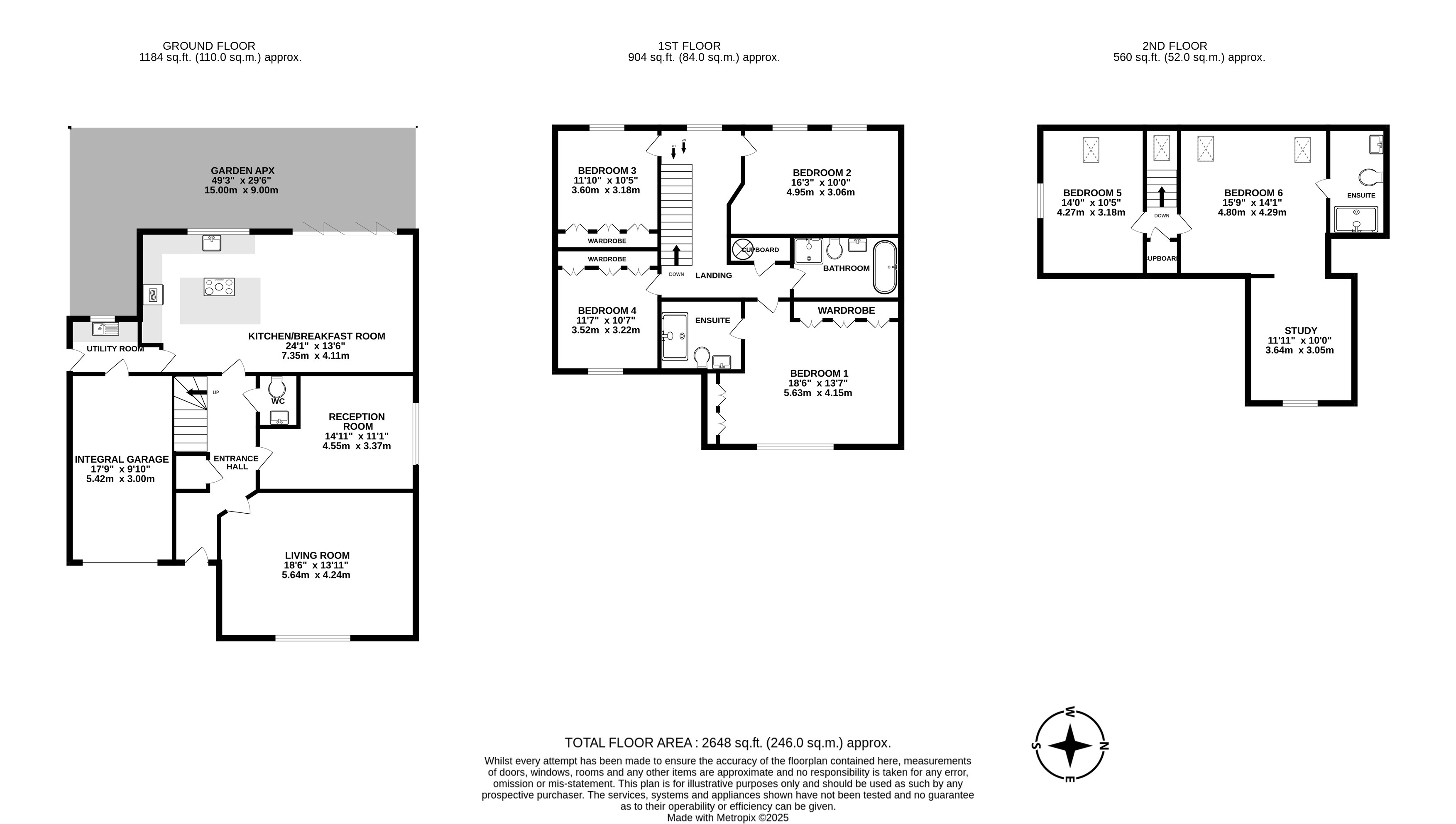
Offering a rare combination of generous proportions, modern finishes, and versatile living space extending to approximately 2,648 sq. ft. Set across three beautifully arranged floors, the home is perfectly designed for family living and entertaining.The ground floor welcomes you through a spacious entrance hall leading to a bright and elegant living room, complemented by a separate reception room ideal for formal gatherings or a playroom. The heart of the home is the expansive kitchen/breakfast room, featuring contemporary fittings, a large island, and direct access to the rear garden perfect for relaxed family dining and entertaining. A utility room, guest cloakroom, and an integral garage provide added practicality.On the first floor, you will find four well-proportioned bedrooms, including a luxurious principal suite complete with fitted wardrobes and an en-suite shower room. The remaining bedrooms are served by a modern family bathroom, offering both a bath and a separate shower. Ample wardrobe space and a thoughtfully designed landing enhance the functionality of this floor.The top floor provides excellent flexibility, featuring two further double bedrooms, one with an en-suite, as well as a study ideal for home working or a quiet retreat.Outside, the property enjoys a private rear garden with a generous patio area, perfect for outdoor dining and relaxation. The integral garage and driveway provide convenient off-street parking.This superb family home is ideally situated within easy reach of Aldenham’s highly regarded schools, local amenities, and transport links to central London and surrounding areas. Combining space, style, and an enviable location, this property represents an outstanding opportunity to secure a truly exceptional home in a prestigious setting.

Important Information

  • This is a Freehold property.

Property Ref: 603603_LUM250307

Share:

Similar Properties

Fortune Lane, Elstree, Borehamwood, Hertfordshire, WD6

3 Bedroom Bungalow | £1,300,000

Set discreetly behind electric gates, this beautifully presented detached bungalow offers contemporary living on one lev...

The Close, Radlett, Hertfordshire, WD7

3 Bedroom Detached House | Offers in excess of £1,200,000

Tucked away in the peaceful cul-de-sac of The Close in the sought-after village of Radlett, this impressive and spacious...

Fernside Avenue, London, NW7

5 Bedroom Detached House | Offers Over £1,200,000

Set in the sought-after location of Mill Hill, this impressive five-bedroom detached family home, built circa 10 years a...

Williams Way, Radlett, Hertfordshire, WD7

5 Bedroom Detached Bungalow | Guide Price £1,395,000

This exquisite five-bedroom detached bungalow is situated behind a spacious, well-kept green on a highly desirable road,...

Hale Grove Gardens, London, NW7

5 Bedroom House | Offers in excess of £1,420,000

This exquisite 5-bedroom family residence has recently undergone a complete renovation to the highest standards.

Furzehill Road, Borehamwood, Hertfordshire, WD6

6 Bedroom Semi-Detached House | Offers Over £1,500,000

Nestled on the sought-after Furzehill Road in Borehamwood, this newly refurbished and extended six-bedroom semi-detached...

Lumley Estates (Radlett)

72 Watling Street, Radlett, Hertfordshire, WD7 7NP

01923 853366

How much is your home worth?

Use our short form to request a valuation of your property.

Request a Valuation

Mortgage Calculator

Amount Borrowed: £
Total Amount Repayable: £
Total Monthly Payment: £
©2026 The Guild of Property Professionals. All rights reserved. Terms and Conditions | Privacy Policy | Cookie Policy | Complaints Policy | Members Login
The Guild of Property Professionals Trading Address: 121 Park Lane, London W1K 7AG. GPEA Limited. Registered in England & Wales.  Company No: 02819824.  Registered Office Address: 2 St. Stephen's Court, St. Stephen's Road, Bournemouth, Dorset, England, BH2 6LA.  VAT Registration No: 576 8795 61
Book a Property Valuation Update Cookies Preferences