Fallowfield, Wayfield, Chatham, ME5

£450,000

4 Bedroom Semi-Detached House for sale in Wayfield, Chatham

1 4 1
  • Four Double Bedrooms
  • Extended Semi-Detached House
  • Immaculate Condition
  • Downstairs Cloakroom
  • Sought After Location
  • Long Driveway
  • Garage (Currently Used as Utility/Gym)
  • Ideal Family Home

Immaculately presented throughout. The current vendors have invested a lot of time and resources to create a fantastic family home. Situated in the sought after location of Wayfield on the outskirts of Chatham with access to local shops, schools and amenities.

There is a welcoming porch and bright entrance hall with staircase and glass balustrade. There is a convenient downstairs cloakroom too. The well appointed kitchen includes integral fridge and freezer, integrated microwave, hob and oven with bi-fold doors that open completely to the rear garden, bringing the outside in. Perfect for family and friends get togethers. The garden room is connected to the lounge and has heating for the cooler months and patio doors and windows overlooking the garden.

To the first floor are three bedrooms, all of good size, one of which is currently being used as an excellent office space. The bathroom is contemporary with an amazing triple size walk in shower.

Moving up to the top floor, is the converted loft space providing a tranquil bedroom and dressing area.

The rear garden is decked with raised borders and gazebo with plenty of side access/storage area. The garage has plumbing for washing machine, electronic up and over door and is currently used as a gym space.

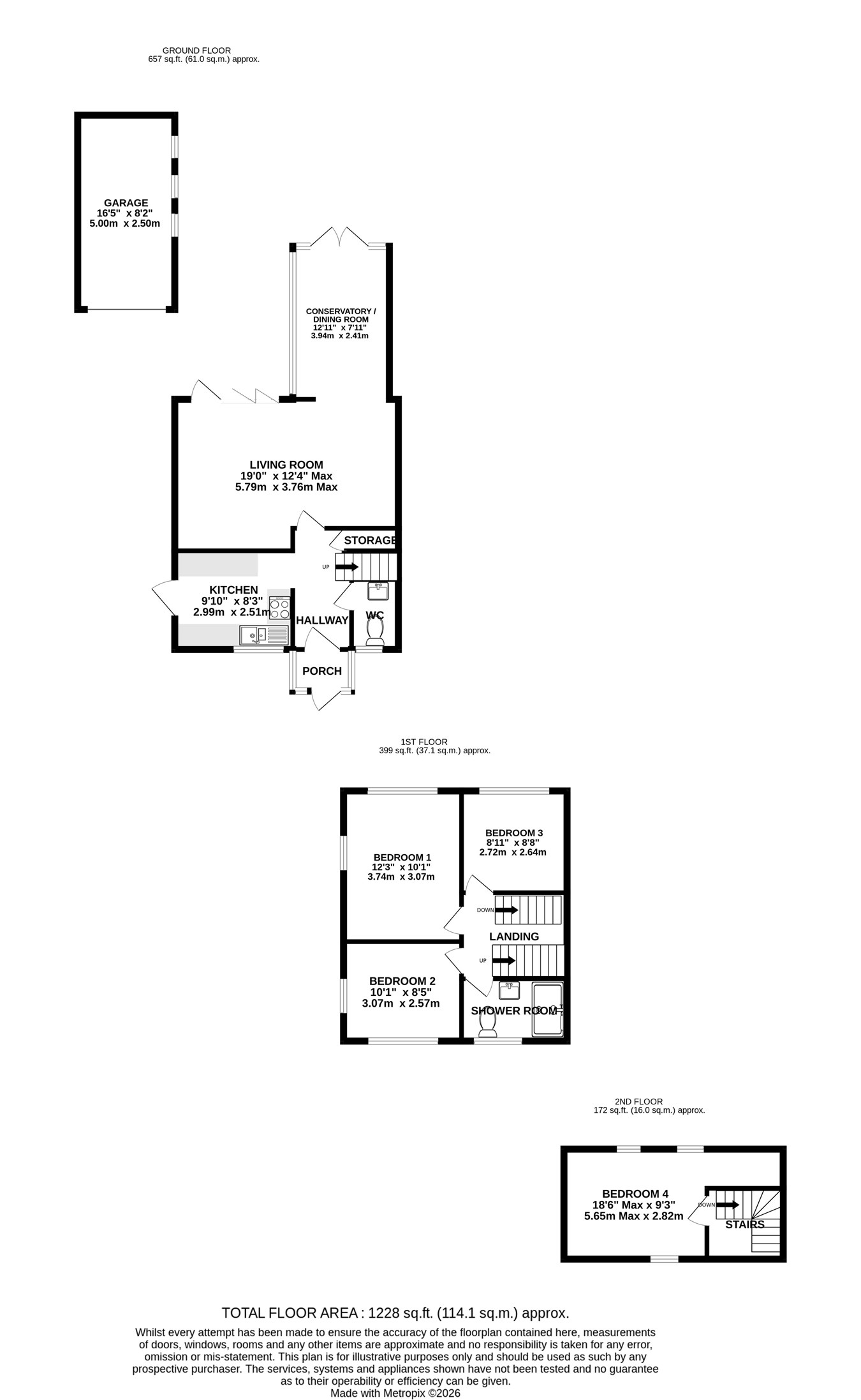
Superb property, must be viewed.Ground Floor

Entrance Hall

Cloakroom
5' 5" x 3' 4" (1.65m x 1.02m)

Kitchen
9' 10" x 8' 3" (3.00m x 2.51m)

Living Room
19' 0" x 12' 4" (5.79m x 3.76m)

Conservatory/Dining Room
12' 11" x 7' 11" (3.94m x 2.41m)

First Floor

Bedroom 1
12' 3" x 10' 1" (3.73m x 3.07m)

Bedroom 2
10' 1" x 8' 5" (3.07m x 2.57m)

Bedroom 3
8' 11" x 8' 8" (2.72m x 2.64m)

Shower Room
8' 8" x 5' 5" (2.64m x 1.65m)

Second Floor

Loft Bedroom
18' 6" x 9' 3" (5.64m x 2.82m)

External

Garage
16' 5" x 8' 2" (5.00m x 2.49m)

Important Information

  • This is a Freehold property.

Property Ref: 29943113

Share:

Similar Properties

Princes Avenue, Walderslade, Chatham, ME5

3 Bedroom Detached Bungalow | Guide Price £425,000

Guide Price £425,000 - £450,000 We are pleased to offer to the market this individually built Detached Bungalow situated...

Romney Road, Walderslade, Chatham, ME5

3 Bedroom Detached House | Offers in region of £425,000

We are pleased to offer this three bedroom detached home offering generous living space and family friendly practicality...

Hathaway Court, Esplanade, Rochester, ME1

3 Bedroom Town House | Guide Price £425,000

Guide Price £425,000 - £450,000Being offered with no forward chain is this three double bedroom townhouse with versatile...

Aintree Road, Lordswood, Chatham, ME5

4 Bedroom Detached House | Guide Price £475,000

Guide Price £475,000 - £495,000We are pleased to present this immaculate four bedroom family home. The current owners ha...

Lords Wood Lane, Chatham, ME5

4 Bedroom Detached House | £475,000

Being offered with no onward chain is this four bedroom detached home which has been presented to a high standard and en...

Spencer Close, Walderslade, Chatham, ME5

4 Bedroom Detached House | Offers in excess of £480,000

We are pleased to present to the market this immaculate four bedroom detached property which the current owners have mai...

Greyfox Sales & Lettings (Walderslade)

Walderslade Village Centre, Walderslade, Walderslade, Kent, ME5 9LR

01634 672227

How much is your home worth?

Use our short form to request a valuation of your property.

Request a Valuation

Mortgage Calculator

Amount Borrowed: £
Total Amount Repayable: £
Total Monthly Payment: £
©2026 The Guild of Property Professionals. All rights reserved. Terms and Conditions | Privacy Policy | Cookie Policy | Complaints Policy | Members Login
The Guild of Property Professionals Trading Address: 121 Park Lane, London W1K 7AG. GPEA Limited. Registered in England & Wales.  Company No: 02819824.  Registered Office Address: 2 St. Stephen's Court, St. Stephen's Road, Bournemouth, Dorset, England, BH2 6LA.  VAT Registration No: 576 8795 61
Book a Property Valuation Update Cookies Preferences