Land Off Church Road, West Kingsdown, TN15

£150,000

Land for sale in West Kingsdown

  • Rare chance to purchase a parcel of land with development potential
  • Planning approved for a 3-bedroom detached property (subject to solicitor checks)
  • Superb self-build opportunity for a bespoke home
  • Attractive residential location with strong local demand
  • Excellent transport links and local amenities nearby
  • Potential for capital growth and strong resale value
  • Planning documents available for review on request
  • Contact Brookbanks for full details and viewing arrangements

 Land for Sale – Self-Build Opportunity with Planning Potential



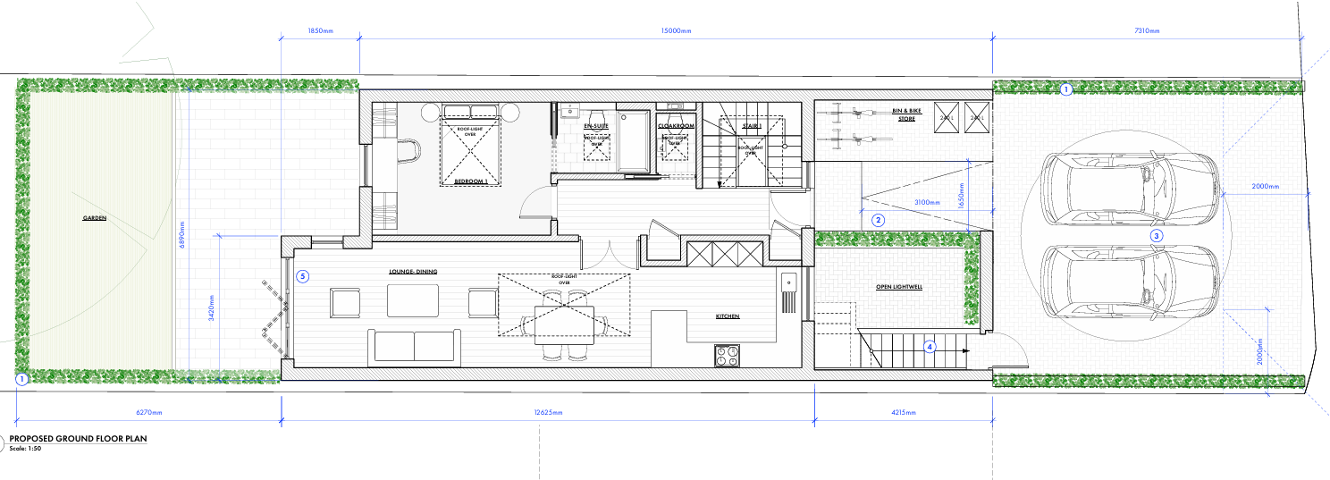
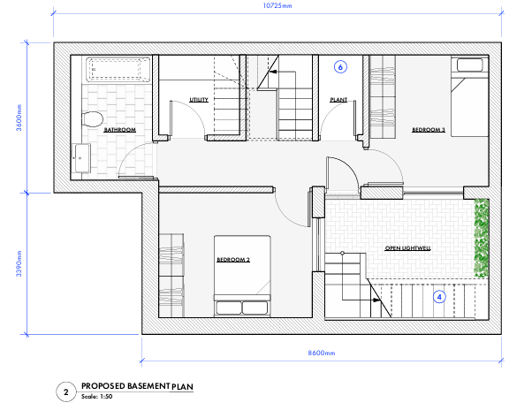
Brookbanks are delighted to present this rare opportunity to acquire a parcel of land with approved planning permission (subject to solicitor verification) for the development of a three-bedroom detached property.



Located in a sought-after residential area, this plot offers the perfect chance for those looking to create their own home from the ground up, whether as a personal project or an investment.



Key Features:
 • Plot with approved planning for a 3-bedroom property
 • Exciting self-build opportunity
 • Planning documents available for inspection (subject to legal checks)
 • Excellent potential for capital growth
 • Highly desirable residential setting



This site represents a fantastic chance to design and build a bespoke family home tailored to your needs. With strong local demand and excellent transport links nearby, it’s a proposition not to be missed.

Property Ref: 115_1213100

Share:

Similar Properties

Kennett Court, Swanley, Kent, BR8

1 Bedroom Apartment | Offers Over £149,995

Spacious One-Bedroom, Two-Bathroom, Retirement Apartment – Kennett Court, Swanley Brookbanks are pleased to offer this w...

Land Off Lullingstone Avenue, Swanley, BR8

3 Bedroom Land | Offers Over £125,000

LAND NOW SOLD STC

Abedare Gardens, South Hampstead, NW6

2 Bedroom Apartment | £3,000pcm

 Stunning two double bedroom top-floor apartment in a period conversion located in South Hampstead. This bright and spac...

Salisbury Road, Dartford, DA2

2 Bedroom Flat | Offers in region of £190,000

Brookbanks are delighted to present this spacious top-floor two-bedroom apartment in the heart of Dartford. Just a short...

Robina Court, London Road, Swanley, BR8

2 Bedroom Flat | Offers Over £210,000

Spacious two-bedroom ground-floor flat in a popular block with excellent road access. Features include a large lounge, k...

Edwards Gardens, Swanley, BR8

1 Bedroom Flat | £225,000

This beautifully presented one-bedroom ground floor flat is ideally located near the station and high street, offering m...

Brookbanks Estate Agents (Swanley)

Swanley, Kent, BR8 8AE

01322 666452

How much is your home worth?

Use our short form to request a valuation of your property.

Request a Valuation

Mortgage Calculator

Amount Borrowed: £
Total Amount Repayable: £
Total Monthly Payment: £
©2025 The Guild of Property Professionals. All rights reserved. Terms and Conditions | Privacy Policy | Cookie Policy | Complaints Policy | Members Login
The Guild of Property Professionals Trading Address: 121 Park Lane, London W1K 7AG. GPEA Limited. Registered in England & Wales.  Company No: 02819824.  Registered Office Address: 2 St. Stephen's Court, St. Stephen's Road, Bournemouth, Dorset, England, BH2 6LA.  VAT Registration No: 576 8795 61
Book a Property Valuation Update Cookies Preferences