Nightingale Road, West Molesey

Guide Price
£799,950
SSTC
This property listing is now SSTC

3 Bedroom House for sale in West Molesey

2 3 2

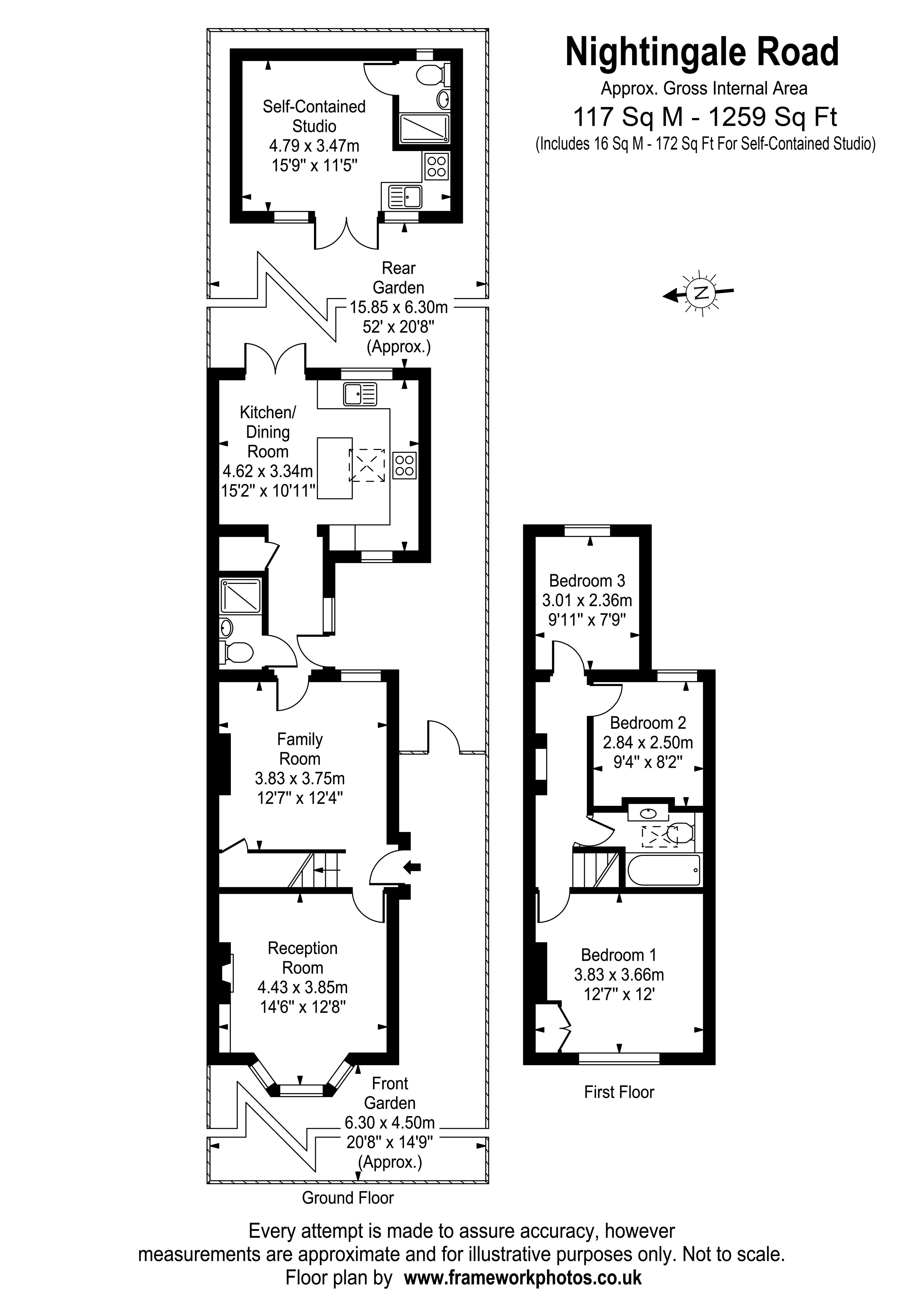
A charming three bedroom, two bathroom, Victorian semi-detached character home with off-street parking, a beautifully established rear garden, and a superb fully self-contained garden studio with kitchenette and shower room.  



This traditional period property is a perfect blend of classic elegance and tasteful modern decor.  As you enter the house, you'll be greeted by the sheer charm and splendour of Victorian architecture, with features such as high ceilings, stripped wood floorboards, and large sash windows that flood the rooms with natural light.



The ground floor provides two separate reception rooms, the front room with working fireplace and bay window, furnished with attractive plantation shutters.  Whether you prefer a cozy evening by the fireplace or a formal gathering with friends, these rooms offer the perfect ambiance.  To the rear of the property you will find a double aspect kitchen/diner with sky-light window, central island unit, and double doors leading out to the garden.  To complete the ground floor, overlooking the inner courtyard, there is a modern fitted shower room with W.C., and a highly useful adjacent store / laundry room.   



Upstairs provides a lovely front aspect principal bedroom with an elegant triple pane window, a further double bedroom and a large single/small double currently set up as a highly practical home office.   Also on this floor is a stylish and modern fitted bathroom with skylight window.



The garden is a true highlight of this property.  The established garden offers a tranquil retreat with its lush greenery, vibrant flowers, and a sunny aspect.  It provides a perfect space for outdoor dining, gardening, or simply unwinding at the end of the day.



Additionally, there is an outside self-contained garden room, making it ideal for accommodating guests or creating a home office or studio space.  The studio offers flexibility and privacy, and it adds significant value to the property.  



Location:  Nightingale Road is a beautiful tree-lined road in a much-requested location on the East/West Molesey border.  The nearby River Mole connects green open spaces of Neilsons Field - The Wilderness and Molesey Heath all within easy walking distance.  East Molesey's main High Street (Walton Road) is less than 10 minutes' walk, with Hampton Court station (zone 6), Riverside and village area of Bridge Road are all within approx. 1 mile.  There are excellent local schools, with particular reference to St. Albans Catholic Primary School awarded best performing junior school in recent years. 

 

Important Information

  • This is a Freehold property.

Property Ref: EAXML14612_11957891

Share:

Similar Properties

Challoners Close, East Molesey

4 Bedroom End of Terrace House | Guide Price £785,000

A four bedroom, three bathroom, end of terrace townhouse situated in a quiet cul-de-sac position right in the heart of E...

School Road, East Molesey

3 Bedroom End of Terrace House | Guide Price £779,000

A charming Victorian end of terrace double-fronted cottage, boasting attractive 'London-stock' elevations, private walle...

Pemberton Terrace, East Molesey

4 Bedroom End of Terrace House | Guide Price £775,000

An attractive and beautifully maintained three/four bedroom, two-bathroom, end terrace family home in a central East Mol...

Balmoral Crescent, West Molesey

4 Bedroom Semi-Detached House | Asking Price £800,000

An extended four bedroom, two bathroom, family home situated in a well regarded Molesey side road benefitting from integ...

Balmoral Crescent, West Molesey

5 Bedroom Semi-Detached House | Offers Over £800,000

An extended 1930s four/five bedroom, two bathroom, family home in popular Molesey side road near the River Thames, benef...

Wick Road, Teddington

3 Bedroom House | Offers in excess of £800,000

Miles & Bird, estate agents covering Teddington, are proud to present this delightful three bedroom, two bathroom, Victo...

Miles & Bird (East Molesey)

East Molesey, Surrey, KT8 9HA

020 3875 3875

How much is your home worth?

Use our short form to request a valuation of your property.

Request a Valuation

Mortgage Calculator

Amount Borrowed: £
Total Amount Repayable: £
Total Monthly Payment: £
©2026 The Guild of Property Professionals. All rights reserved. Terms and Conditions | Privacy Policy | Cookie Policy | Complaints Policy | Members Login
The Guild of Property Professionals Trading Address: 121 Park Lane, London W1K 7AG. GPEA Limited. Registered in England & Wales.  Company No: 02819824.  Registered Office Address: 2 St. Stephen's Court, St. Stephen's Road, Bournemouth, Dorset, England, BH2 6LA.  VAT Registration No: 576 8795 61
Book a Property Valuation Update Cookies Preferences