Market Square, Petworth, West Sussex, GU28

£540,000

3 Bedroom Flat for sale in West Sussex

3

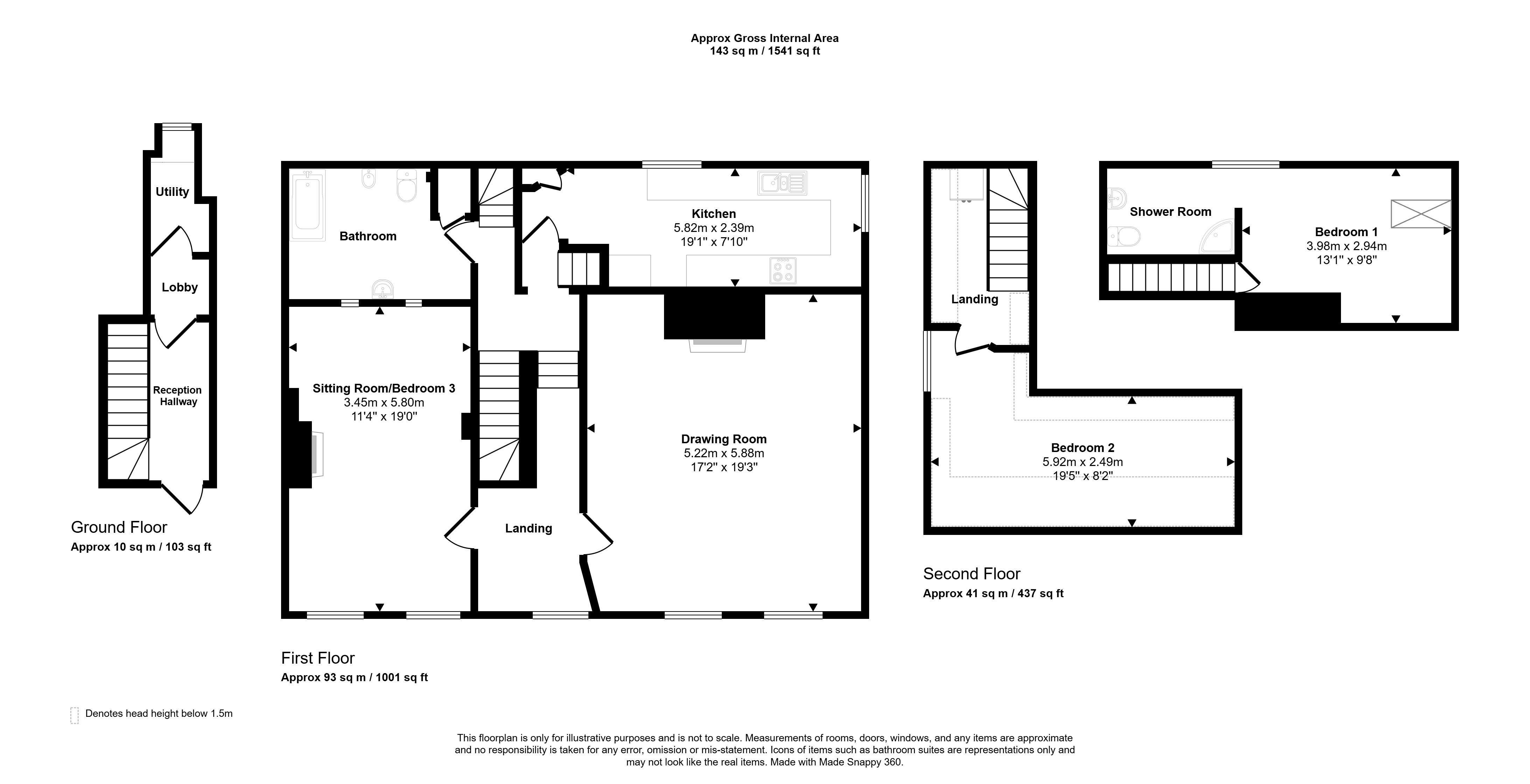
This exceptionally spacious first and second floor apartment forms part of this handsome, period property which is situated right in the heart of the town centre and offers elegant and versatile accommodation.

The home is approached by an entrance hall with a fine staircase to the first floor, a lobby area and a utility/laundry cupboard. To the first floor there is an impressive galleried landing with access to the extremely elegant Drawing Room. Here you will find a feature fireplace with a marble surround and a fitted woodburning stove together with arched display recesses to either side. Along with the other front facing sash windows on this floor, there are period fitted shutters.

A dual aspect Sitting Room could be used as a further bedroom if required. The Kitchen/Breakfast Room also enjoys a dual aspect and is fitted with a good range of units with contrasting work-surfaces. The contemporary Bathroom is fitted with a Jacuzzi Spa Shower. To the second floor there are two bedrooms (each accessed by its own staircase) with the principal one having an en-suite shower room.

Important Information

  • This is a Leasehold property.

Property Ref: MHT250108

Share:

Similar Properties

Heathfield Park, Midhurst, West Sussex, GU29

4 Bedroom Terraced House | Offers in excess of £525,000

360 TOUR AVAILABLESituated in a highly sought-after residential close overlooking a central green and backing onto woodl...

Egmont Mews, Rumbolds Hill, Midhurst, West Sussex, GU29

3 Bedroom Link Detached House | £499,800

***NO ONWARD CHAIN***Situated in a quiet mews style setting approached through an archway from Rumbolds Hill, this delig...

Taylors Farm Cottages, Taylors Field, Midhurst, West Sussex, GU29

2 Bedroom Semi-Detached House | £450,000

360 Tour AvailableA charming period semi-detached home, situated in a tucked away position with a delightful cottage gar...

Stedham Hall, Stedham, Midhurst, West Sussex, GU29

3 Bedroom Flat | £550,000

Situated in a truly idyllic rural location and forming part of a stunning 16th Century Manor House, this top floor apart...

Goodwood Close, Midhurst, West Sussex, GU29

4 Bedroom Detached House | Offers in excess of £625,000

360 TOUR AVAILABLE Situated towards the end of a highly sought-after Close, this detached home offers four bedrooms, two...

Forge Cottage, Cocking, GU29

3 Bedroom Semi-Detached Bungalow | £630,000

Situated in the heart of this popular Downland village, you will find this three-bedroom attached home, dating back to t...

Southdown Property Solutions (Midhurst)

Midhurst, West Street, GU29 9PB

01730 859156

How much is your home worth?

Use our short form to request a valuation of your property.

Request a Valuation

Mortgage Calculator

Amount Borrowed: £
Total Amount Repayable: £
Total Monthly Payment: £
©2026 The Guild of Property Professionals. All rights reserved. Terms and Conditions | Privacy Policy | Cookie Policy | Complaints Policy | Members Login
The Guild of Property Professionals Trading Address: 121 Park Lane, London W1K 7AG. GPEA Limited. Registered in England & Wales.  Company No: 02819824.  Registered Office Address: 2 St. Stephen's Court, St. Stephen's Road, Bournemouth, Dorset, England, BH2 6LA.  VAT Registration No: 576 8795 61
Book a Property Valuation Update Cookies Preferences