Rosenheim Rise Bratton

Guide Price
£365,000

3 Bedroom Semi-Detached House for sale in Westbury

2 3 1
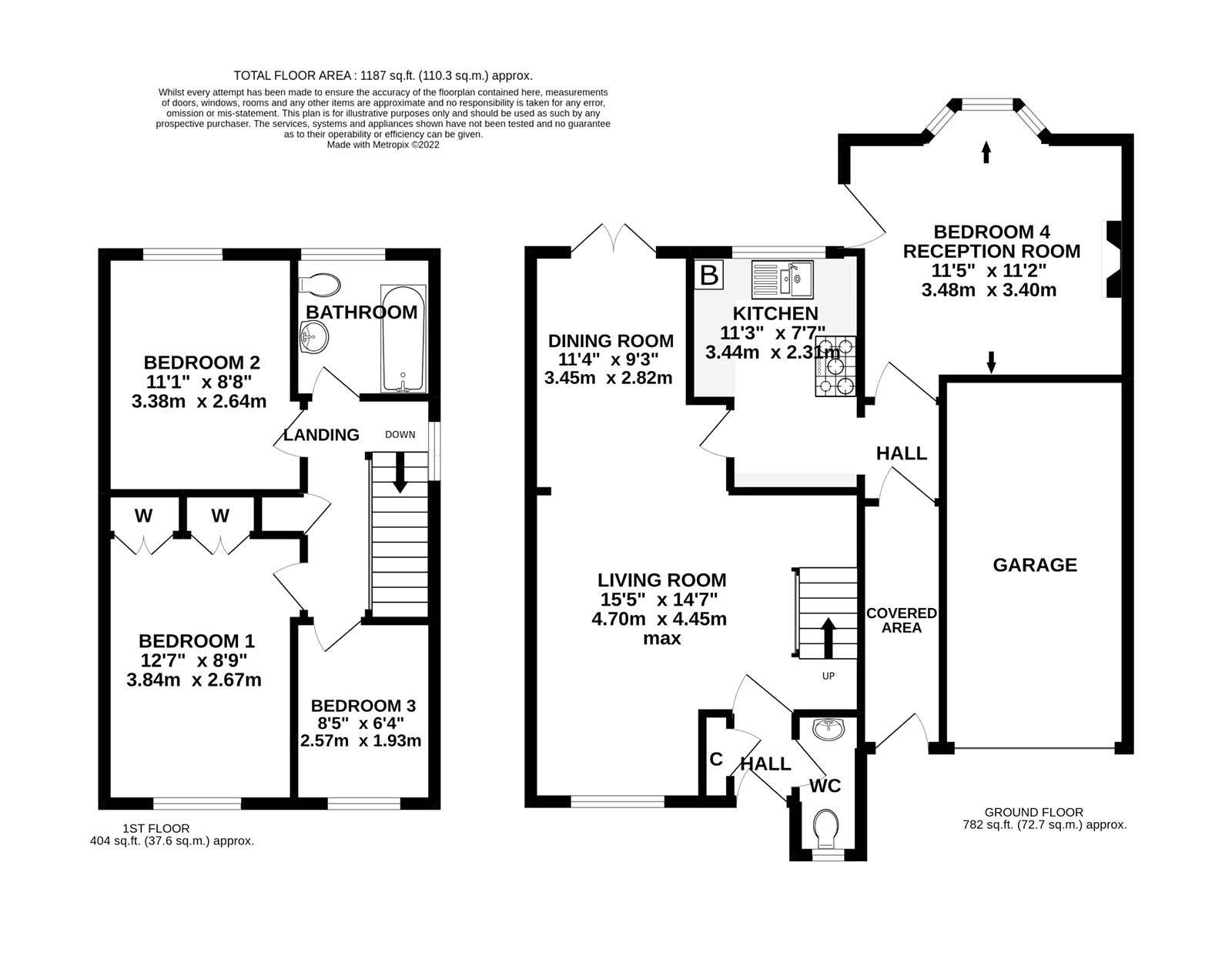
  • 4 BEDROOM SEMI-DETACHED FAMILY HOME
  • GARAGE AND OFF-STREET PARKING
  • PRIVATE SOUTH FACING GARDEN
  • BRIGHT AND AIRY DUAL ASPECT LIVING / DINING ROOM
  • GAS CENTRAL HEATING
  • FITTED KITCHEN
  • FLEXIBLE LAYOUT
  • DOWNSTAIRS CLOAKROOM
  • PEACEFUL CUL DE SAC LOCATION IN SOUGHT AFTER VILLAGE
  • IDEAL FOR ACCESS TO WESTBURY STATION AND TRANSPORT LINKS

Situated on the edge of the popular village of Bratton, this versatile four-bedroom family home enjoys far-reaching views across open farmland towards Bratton Down and is just a short walk from the iconic Westbury White Horse.

The property is complemented by a south-facing rear garden, enclosed for privacy and thoughtfully landscaped with a generous patio, terraces, and mature shrubs and trees.

On entering the home, you are welcomed into a bright dual-aspect sitting/dining room, with French doors opening directly onto the garden patio. The kitchen also enjoys garden views and links to the hallway, a covered walkway to the front of the garage, and a ground-floor bedroom with direct garden access – perfect as a guest room, study, or hobby space. A useful downstairs cloakroom completes the ground floor.

Upstairs, there are three further bedrooms and a family bathroom, all enjoying remarkable views of the hillside beyond, where gliders and birds of prey can often be seen soaring overhead.

The village of Bratton itself offers excellent amenities including a shop/Post Office, popular primary school, doctors’ surgery with dispensary, traditional pub and places of worship. For commuters, Westbury railway station (just three miles away) provides direct services to Bath, Bristol and London. Bratton is also surrounded by beautiful countryside, ideal for dog walking, rambling, mountain biking and even paragliding for the more adventurous.

Important Information

  • This is a Freehold property.
  • This Council Tax band for this property is: C
  • EPC Rating is D

Property Ref: DDW_DDW250383

Share:

Similar Properties

Neptune Road Westbury

4 Bedroom Detached House | Offers in excess of £365,000

A beautifully presented four bedroom detached house with well proportioned accommodation over three floors and offering...

Windsor Drive Westbury

4 Bedroom Detached House | Guide Price £350,000

A well-presented and spacious four-bedroom detached home offers an ideal layout for modern family living, positioned in...

Newtown Westbury

3 Bedroom Semi-Detached House | Guide Price £350,000

This attractive home combines Edwardian character with flexible accommodation and further potential, making it an appeal...

Gilhespy Way Westbury

4 Bedroom Detached House | Offers Over £375,000

A beautifully modern detached four bedroom house located in a very sought after development on the edge of town close to...

High Street Codford

2 Bedroom Terraced House | Offers in excess of £375,000

Set in the heart of the sought-after Wylye Valley village of Codford, this charming cottage offers character, generous l...

Roman Place Westbury

4 Bedroom Not Specified | Guide Price £375,000

Stunning four bedroom semi detached new build house with three bathrooms and three parking spaces. Ready to move into wi...

Davies & Davies (Westbury)

Westbury, Wiltshire, BA13 3BW

01373 859 944

How much is your home worth?

Use our short form to request a valuation of your property.

Request a Valuation

Mortgage Calculator

Amount Borrowed: £
Total Amount Repayable: £
Total Monthly Payment: £
©2025 The Guild of Property Professionals. All rights reserved. Terms and Conditions | Privacy Policy | Cookie Policy | Complaints Policy | Members Login
The Guild of Property Professionals Trading Address: 121 Park Lane, London W1K 7AG. GPEA Limited. Registered in England & Wales.  Company No: 02819824.  Registered Office Address: 2 St. Stephen's Court, St. Stephen's Road, Bournemouth, Dorset, England, BH2 6LA.  VAT Registration No: 576 8795 61
Book a Property Valuation Update Cookies Preferences