Dartmoor Road Westbury

Offers Over
£280,000
SSTC
This property listing is now SSTC

3 Bedroom Semi-Detached House for sale in Westbury

2 3 2
  • Spacious 3-bedroom semi-detached house
  • Situated on a large corner plot
  • Low maintenance garden with artificial lawn and patio area
  • En-suite to principal bedroom
  • Driveway and side access
  • Well-presented interiors throughout

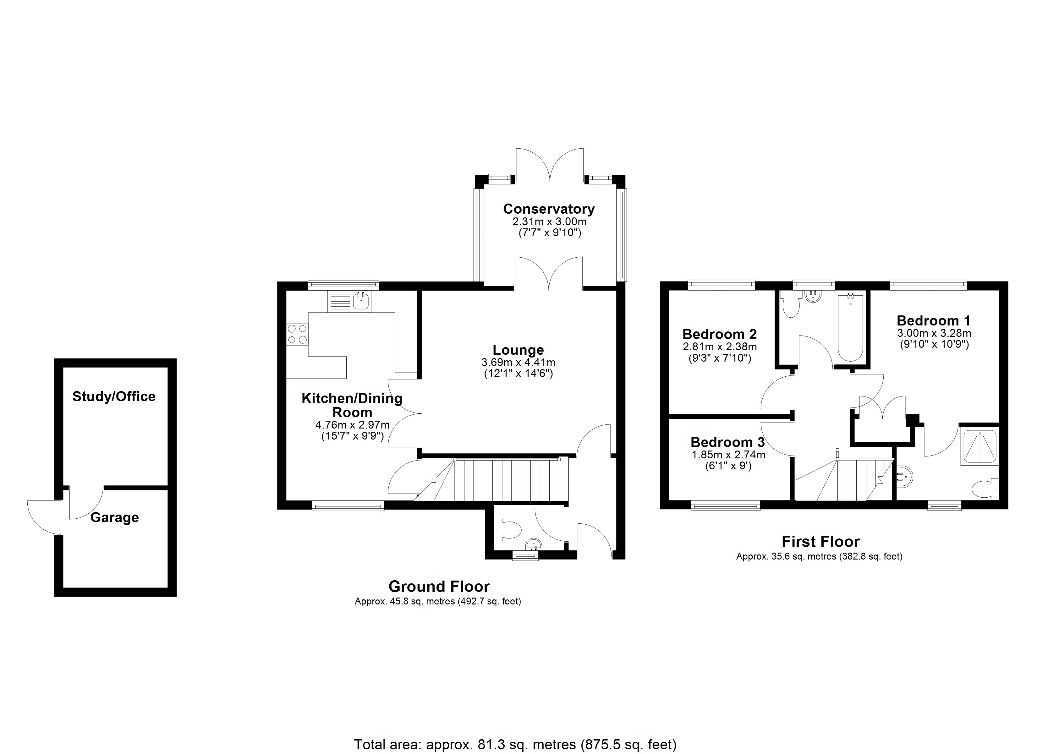
Modern three bedroom semi-detached home. Situated in a sought-after residential area, this beautifully presented semi-detached home offers modern comfort, spacious living, and a low-maintenance outdoor space perfect for families or those looking for spacious living.

The property boasts plenty of living space including a large living room perfect for family evenings together, a open plan kitchen/dining room providing a sociable area for enteratining or family meal times, a conservatory overlooking the garden and a downstairs W/C.

As you make your way upstairs the property continues to impress with three spacious bedrooms, including a principal bedroom with an ensuite and a family bathroom.

Externally the property has low maintenance garden including artificial turf, patio and a bar area perfect for summer evenings and outdoor dining. The property is situated on a corner plot and has off street parking and a garage of which half has been converted into a studio or workspace.

This home combines modern convenience with a warm, homely feel, making it ready to move straight into.

Important Information

  • This is a Freehold property.
  • EPC Rating is C

Property Ref: DDW_DDW250359

Share:

Similar Properties

Ingram Place Westbury

2 Bedroom Semi-Detached Bungalow | Offers Over £280,000

A fully renovated two bedroom semi detached bungalow with landscaped garden and plenty of parking and planning for an ex...

Baynton Close Westbury

3 Bedroom Semi-Detached House | Offers in excess of £275,000

Semi-detached 3-bedroom house boasting a bright, luxurious, and modern interior. Stylishly designed and well-maintained,...

Oldfield Road Westbury

3 Bedroom Semi-Detached House | Offers in excess of £275,000

An attractive semi detached family home situated in this ultra convenient location, a short walk from the town centre an...

Hill Ground Frome

3 Bedroom Terraced House | Guide Price £285,000

Beautifully Presented Three Bedroom Home with Far-Reaching Views and Terraced Gardens

Meadow Lane Westbury

3 Bedroom Semi-Detached House | Asking Price £285,000

A spacious semi detached family home situated in this prime location, close to the town centre and within walking distan...

Swallows Rise Westbury

3 Bedroom Semi-Detached House | Offers in excess of £285,000

A modern three bedroom semi detached home located on a primary plot in a highly sought after development.

Davies & Davies (Westbury)

Westbury, Wiltshire, BA13 3BW

01373 859 944

How much is your home worth?

Use our short form to request a valuation of your property.

Request a Valuation

Mortgage Calculator

Amount Borrowed: £
Total Amount Repayable: £
Total Monthly Payment: £
©2026 The Guild of Property Professionals. All rights reserved. Terms and Conditions | Privacy Policy | Cookie Policy | Complaints Policy | Members Login
The Guild of Property Professionals Trading Address: 121 Park Lane, London W1K 7AG. GPEA Limited. Registered in England & Wales.  Company No: 02819824.  Registered Office Address: 2 St. Stephen's Court, St. Stephen's Road, Bournemouth, Dorset, England, BH2 6LA.  VAT Registration No: 576 8795 61
Book a Property Valuation Update Cookies Preferences