Preston, Weymouth, Dorset

Guide Price
£415,000
Under Offer
This property listing is now Under Offer

3 Bedroom Apartment for sale in Weymouth

1 3 2

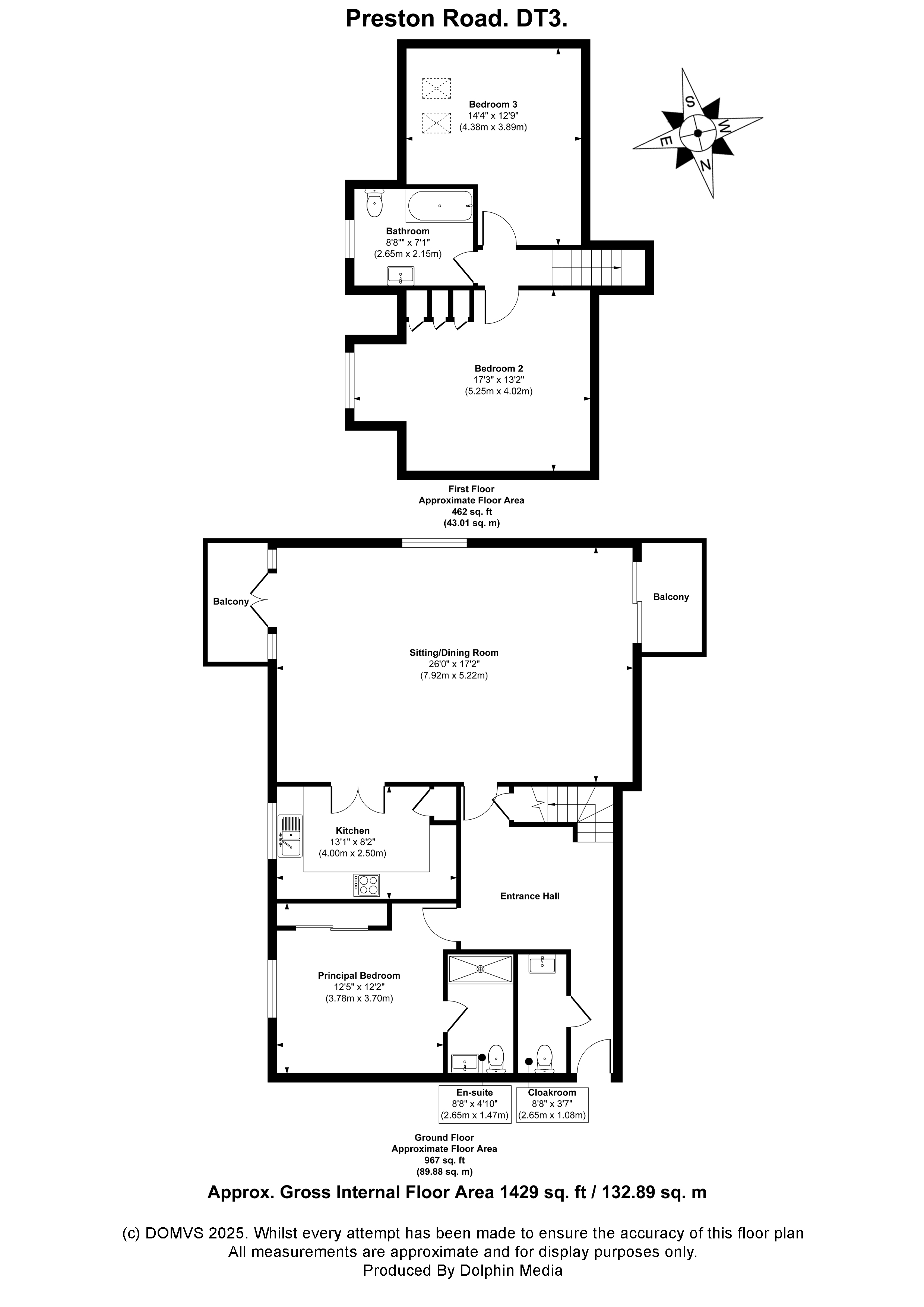
This three bedroom duplex apartment is approached via a generous ENTRANCE HALL with stairs and Lift to the first floor. Front door gives access to all main living areas and a convenient CLOAKROOM. The heart of the home is a bright and expansive SITTING and DINING ROOM, where large windows and double doors open out to two private balconies, flooding the space with natural light and offering lovely views.

Adjacent to this is a modern, well-appointed KITCHEN fitted with contemporary units and integrated appliances, designed with both functionality and entertaining in mind. It features a gas burner hob with a stainless-steel cooker hood, a built-in double oven, and an integrated fridge/freezer. There is also space and plumbing for a washing machine, making this kitchen highly practical for everyday living.

Also located on the ground floor is the PRINCIPAL BEDROOM—a quiet and comfortable retreat with its own private ENSUITE SHOWER ROOM. This bedroom also benefits from built-in wardrobes, offering ample storage while maintaining a sleek, uncluttered feel.

Upstairs, the first-floor features two further double bedrooms. BEDROOM TWO is particularly spacious and has built-in wardrobes for convenient storage. BEDROOM THREE also includes fitted wardrobes and offers a bright and airy feel with natural light from Velux™ windows making it a flexible space for guests, children, or home working. A stylish FAMILY BATHROOM with a full suite, including a bath with overhead shower, completes the upper level.

Outside
The apartment benefits from two private BALCONIES, extending the living space outdoors and providing the perfect setting for morning coffee, evening drinks, or simply enjoying the fresh air. The development features attractively maintained communal GARDENS for residents to enjoy, creating a peaceful and welcoming environment. The property also benefits from both allocated and shared visitor parking.

Location
Roman Heights is located in the highly sought-after area of Preston, Weymouth. This quiet yet well-connected location offers easy access to a variety of local shops, cafés, and essential amenities. The beautiful coastline, including Preston Beach and Bowleaze Cove, is just a short walk away, making it ideal for beach lovers and those who enjoy scenic coastal walks.
Excellent public transport links and road connections provide quick access to Weymouth town centre, while nearby schools and leisure facilities make the area popular with both families and professionals.

In summary, 8 Roman Heights is a superbly appointed home offering modern, low-maintenance living by the sea. With three spacious bedrooms, two bathrooms, private balconies, allocated parking, and a prime location, it represents a fantastic opportunity for anyone seeking a stylish and practical coastal lifestyle.

Directions
Use what3words.com to navigate to the exact spot. Search using: layered.exile.intervene

Stylish three-bedroom first floor duplex apartment
Spacious sitting/dining room with balconies
Modern kitchen with integrated appliances
Principal bedroom with private ensuite
Additional family bathroom and ground floor cloakroom
Allocated and shared visitor parking
Communal gardens
Prime Preston location close to beach and amenities


ROOM MEASUREMENTS Please refer to floor plan.

SERVICES Mains drainage, electricity & gas. Gas central heating.

LOCAL AUTHORITY Dorset Council. Tax band E.

BROADBAND Standard download 16 Mbps, upload 1 Mbps. Superfast download 80 Mbps, upload 20 Mbps. Ultrafast download 1000 Mbps, upload 1000 Mbps. Please note all available speeds quoted are 'up to'.

MOBILE PHONE COVERAGE For further information please go to Ofcom website.

TENURE Share of freehold. 988 years & 6 months remaining. Service charge: £1,200 p/a. No ground rent.

LETTINGS Should you be interested in acquiring a Buy-to-Let investment, and would appreciate advice regarding the current rental market, possible yields, legislation for landlords and how to make a property safe and compliant for tenants, then find out about our Investor Club Our expert lettings team will be pleased to provide you with additional, personalised support; just call on the branch telephone number to take the next step.

IMPORTANT NOTICE DOMVS and its Clients give notice that: they have no authority to make or give any representations or warranties in relation to the property. These particulars do not form part of any offer or contract and must not be relied upon as statements or representations of fact. Any areas, measurements or distances are approximate. The text, photographs (including any AI photography) and plans are for guidance only and are not necessarily comprehensive. It should not be assumed that the property has all necessary Planning, Building Regulation or other consents, and DOMVS has not tested any services, equipment or facilities. Purchasers must satisfy themselves by inspection or otherwise. DOMVS is a member of The Property Ombudsman scheme and subscribes to The Property Ombudsman Code of Practice.

Important Information

  • This is a Share of Freehold property.

Property Ref: 654489_PRE230205

Share:

Similar Properties

Weymouth, Dorset

3 Bedroom Apartment | Guide Price £410,000

Experience the perfect fusion of Victorian elegance and modern comfort in this three-bedroom ground-floor apartment, nes...

Weymouth, Dorset

3 Bedroom Apartment | £400,000

Three-bedroom apartment offering an enviable lifestyle in this picturesque coastal town. This perfect blend of tranquill...

Weymouth, Dorset

3 Bedroom Apartment | Guide Price £399,500

Comfortable and elegant, this stunning three-bedroom apartment is the perfect sanctuary for a harmonious, fulfilling lif...

Preston, Dorset

4 Bedroom Semi-Detached House | Guide Price £425,000

Impeccably presented throughout. Owner says, 'I've loved living here since it was built – it's so peaceful in this...

Portland, Dorset

4 Bedroom End of Terrace House | £450,000

A quintessential old Portland stone house, this engaging three/four-bedroom home commands an elevated position with wond...

Upwey, Weymouth, Dorset

3 Bedroom Detached House | Guide Price £450,000

Built around 1830, this Grade II listed property has been lovingly preserved, offering a unique blend of traditional all...

DOMVS South & West Dorset (Preston)

Preston, Weymouth, DT3 6PU

01305 835300

How much is your home worth?

Use our short form to request a valuation of your property.

Request a Valuation

Mortgage Calculator

Amount Borrowed: £
Total Amount Repayable: £
Total Monthly Payment: £
©2026 The Guild of Property Professionals. All rights reserved. Terms and Conditions | Privacy Policy | Cookie Policy | Complaints Policy | Members Login
The Guild of Property Professionals Trading Address: 121 Park Lane, London W1K 7AG. GPEA Limited. Registered in England & Wales.  Company No: 02819824.  Registered Office Address: 2 St. Stephen's Court, St. Stephen's Road, Bournemouth, Dorset, England, BH2 6LA.  VAT Registration No: 576 8795 61
Book a Property Valuation Update Cookies Preferences