Valley View, Wheldrake

£600,000
SSTC
This property listing is now SSTC

5 Bedroom Detached House for sale in Wheldrake

2 5 2
  • Extremely bright and spacious living accommodation
  • Located in sought after village in Fulford School catchment area
  • Large corner plot situated along a quiet cul-de-sac and offering room for further extension
  • Large, safe and secure wrap around garden with mature trees ideal for children and pets
  • Desirable open plan kitchen/dining room/living room layout ideal for modern family life
  • Downstairs office room ideal for working from home
  • 2 large reception rooms providing additional family space
  • 5 Large double bedrooms with built in wardrobes
  • Large family bathroom, master ensuite plus 2 further cloakrooms!
  • Offered with no onward chain

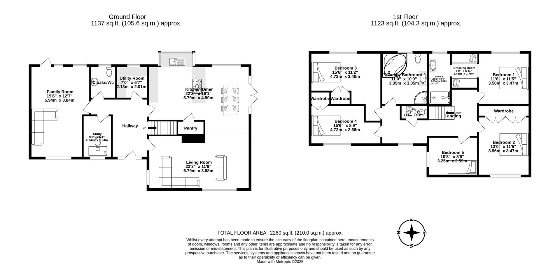
A superb 5 bedroom detached house set on an extensive corner plot, with large wrap around gardens, on a quiet cul de sac , in this highly sought after village. The property provides extremely spacious and bright living accommodation and features the highly desirable open-plan kitchen, dining and living layout ideal for family life. and benefits from gas central heating and uPVC double glazing and comprises entrance hallway, cloaks/w.c., large living room opening into a large open plan dining kitchen, kitchen with full range of modern fitted units and dining area with patio doors to the garden, further large family room, study and utility room/w.c. landing, master bedroom with dressing room and en suite shower room/w.c., 4 further double bedrooms, large family bathroom/w.c. with corner bath and separate shower cubicle, further w.c. Front garden with driveway, further gravelled parking area to the side with potential for garage.. Large lawned corner gardens. An internal viewing of this superb family home is strongly recommended.
OFFERED WITH NO ONWARD CHAIN.

Hallway - Entrance door, stairs to first floor. Oak flooring. Doors leading to

Cloaks/W.C - Window to rear wash hand basin, w.c

Living Room - Bright and spacious reception room with windows to 2 aspects. Oak flooring. Opening to

Dining Kitchen - Dining area with large floor level window to rear and french doors leading to the garden. Oak flooring. Kitchen area with full range of fitted units including breakfast bar and freestanding gas stove, bay window to rear, pantry cupboard.

Family Room - Another large reception room with windows to front and rear and door to garden

Study - Window to front

Utility Room - Range of base and wall units and window to rear

Landing - Window to front. Doors leading to

Bedroom 1 - Window to rear opening to

Dressing Room - Fitted wardrobes. Sliding door to

En Suite - Large walk in shower, wash hand basin. low level w.c. window to rear

Bedroom 2 - Window to front, full width built in wardrobes

Bedroom 3 - Window to rear, built in wardrobe

Bedroom 4 - Window to front, built in wardrobe

Bedroom 5 - Window to front

Family Bathroom - Large bathroom with corner bath, walk in shower, wash hand basin, w.c., window to rear

Cloaks/W.C. - Wash hand basin w.c.

Outside - Front garden with driveway, additional gravelled area to side of the house. Large enclosed lawned gardens to side and rear.

Property Ref: 33841584

Share:

Similar Properties

Broadlands, Wheldrake, York

4 Bedroom Detached House | £599,000

A FABULOUS EXTENDED FOUR BEDROOM DETACHED HOUSE WITH OPEN ASPECT TO REAR SET IN A CUL-DE-SAC CLOSE TO THE CENTRE OF THIS...

Albemarle Road, York

4 Bedroom Terraced House | Guide Price £595,000

NO ONWARD CHAIN! Superb, extended three storey, four bedroom period townhouse set on this fabulous South Bank street adj...

Cameron Grove, Off Bishopthorpe Road

4 Bedroom Terraced House | Guide Price £590,000

A beautifully restored 4 bed 3 storey mid-town house situated on this quiet residential street minutes away from the eve...

Cameron Grove, Off Bishopthorpe Road

4 Bedroom Terraced House | £620,000

A rare opportunity to buy this fabulous original three storey four bed family home just off Bishopthorpe Road and moment...

Kitty Garth, Wheldrake, York

4 Bedroom Detached House | £625,000

A 4 BEDROOM DETACHED HOUSE BUILT BY PILCHER HOMES LOCATED JUST OFF BACK LANE SOUTH WITH OPEN VIEWS TOWARDS COUNTRYSIDE W...

Millfield Court, Wheldrake, York

5 Bedroom Detached House | £659,000

NO ONWARD CHAIN! A LARGE 5 BEDROOM MODERN DETACHED HOUSE SET IN A QUIET LOCATION JUST OFF MAIN STREET IN THIS SOUGHT AFT...

Churchills Estate Agents (York)

Bishopthorpe Road, York, Yorkshire, YO23 1NA

01904 646611

How much is your home worth?

Use our short form to request a valuation of your property.

Request a Valuation

Mortgage Calculator

Amount Borrowed: £
Total Amount Repayable: £
Total Monthly Payment: £
©2026 The Guild of Property Professionals. All rights reserved. Terms and Conditions | Privacy Policy | Cookie Policy | Complaints Policy | Members Login
The Guild of Property Professionals Trading Address: 121 Park Lane, London W1K 7AG. GPEA Limited. Registered in England & Wales.  Company No: 02819824.  Registered Office Address: 2 St. Stephen's Court, St. Stephen's Road, Bournemouth, Dorset, England, BH2 6LA.  VAT Registration No: 576 8795 61
Book a Property Valuation Update Cookies Preferences