Crow Wood Lane, Widnes

£160,000
SSTC
This property listing is now SSTC

2 Bedroom End of Terrace House for sale in Widnes

1 2 1
  • End Town House
  • Two Bedrooms
  • Great Plot
  • No Chain
  • Popular Location
  • Ideal First Home
  • Improvement Requires
  • Early Viewing Essential
  • Council Tax A
  • EPC Rating to Follow

 ***End Town House, Occupying a Great Plot & Offered with No Chain Delay***Adams Estate Agents are delighted to market this two bedroom end town house located in a popular residential area that is sure to appeal to a variety of buyer. The property is handily placed for access to shops, schooling and within easy reach of excellent motorway links making an early viewing a must.


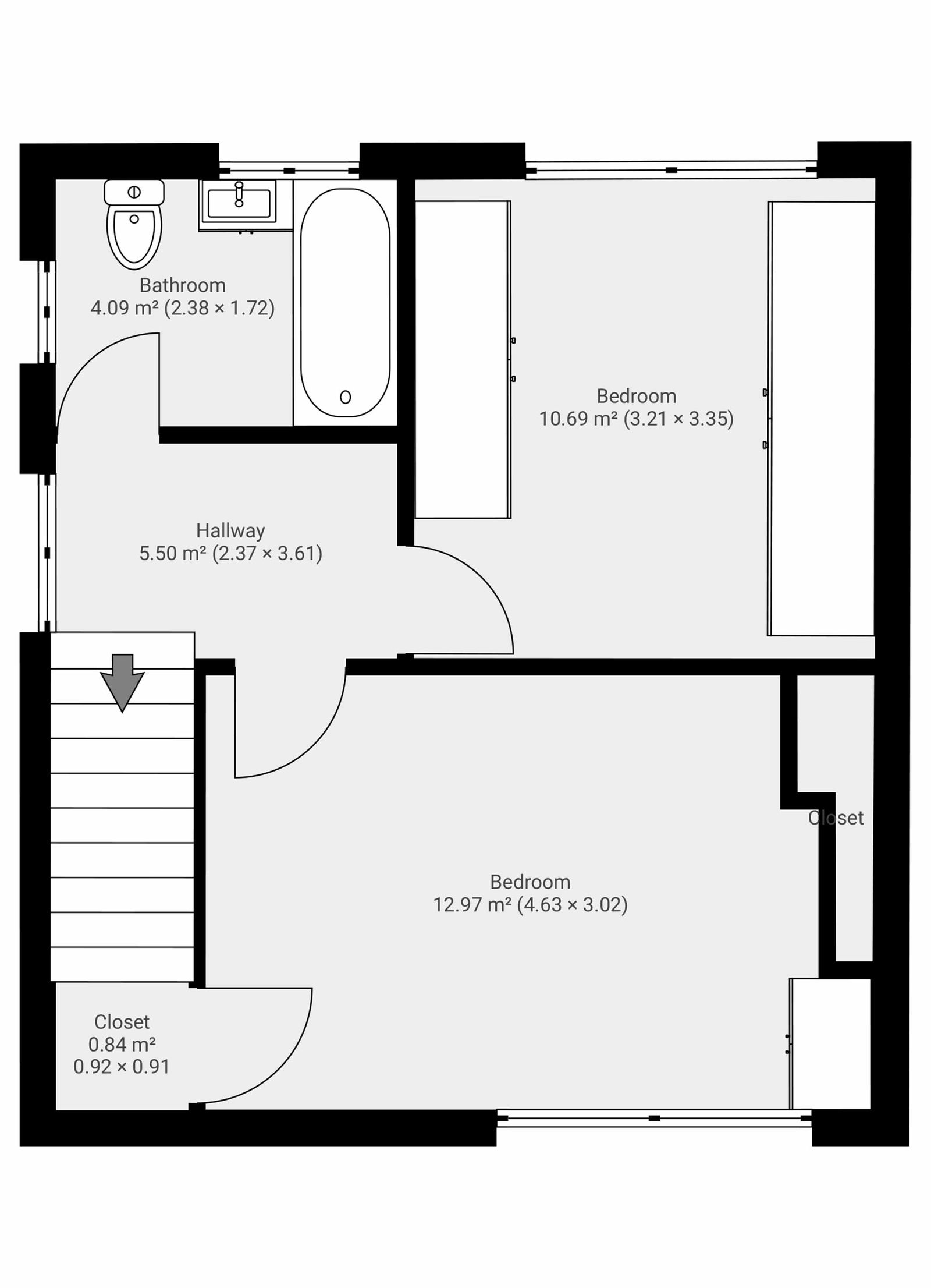
Features include entrance porch, hall, lounge/diner and kitchen to the ground floor. Landing, two bedrooms and family bathroom to the first floor. Externally, off road parking to front and pleasant gardens, the rear garden that is ideal for entertaining. Council Tax A. EPC Rating to Follow.

Important Information

  • This is a Freehold property.
  • This Council Tax band for this property is: A

Property Ref: 10_1188994

Share:

Similar Properties

Castle Street, Widnes, WA8 0BP

2 Bedroom Townhouse | £160,000

**Superbly Presented Two-Bedroom Town House, Turn Key Ready with No Chain Delay.** Adams Real Estate are delighted to pr...

Afton, Widnes

3 Bedroom Townhouse | £160,000

**Three Bedroom Town House in Exceptional Coniditon Throughout, Turn Key Ready** Adams Real Estate are delighted to mark...

Page Lane, Widnes

2 Bedroom Terraced House | £160,000

Adams Real Estate are delighted to market this superbly presented and much improved two bedroom mid town house that woul...

Baguley Avenue, Widnes

3 Bedroom Townhouse | Offers Over £165,000

Adams Real Estate are delighted to market this much improved three bedroom town house, located in a popular residential...

St. Johns Villas, Widnes

2 Bedroom Terraced House | Offers Over £170,000

 ***Character Cottage in Private Location, accessed via Secure Electric Gates and offered with No Chain Delay***Adams Es...

Baguley Avenue, Widnes

3 Bedroom Semi-Detached House | Offers Over £170,000

*** Three Bedroom Semi-Detached on Great Plot with No Chain Delay***Adams Real Estate are delighted to present this mode...

Adams Estate Agents (Widnes)

Albert Road, Widnes, Cheshire, WA8 6JS

0151 420 4055

How much is your home worth?

Use our short form to request a valuation of your property.

Request a Valuation

Mortgage Calculator

Amount Borrowed: £
Total Amount Repayable: £
Total Monthly Payment: £
©2026 The Guild of Property Professionals. All rights reserved. Terms and Conditions | Privacy Policy | Cookie Policy | Complaints Policy | Members Login
The Guild of Property Professionals Trading Address: 121 Park Lane, London W1K 7AG. GPEA Limited. Registered in England & Wales.  Company No: 02819824.  Registered Office Address: 2 St. Stephen's Court, St. Stephen's Road, Bournemouth, Dorset, England, BH2 6LA.  VAT Registration No: 576 8795 61
Book a Property Valuation Update Cookies Preferences