Union Bank Lane, Widnes

£275,000

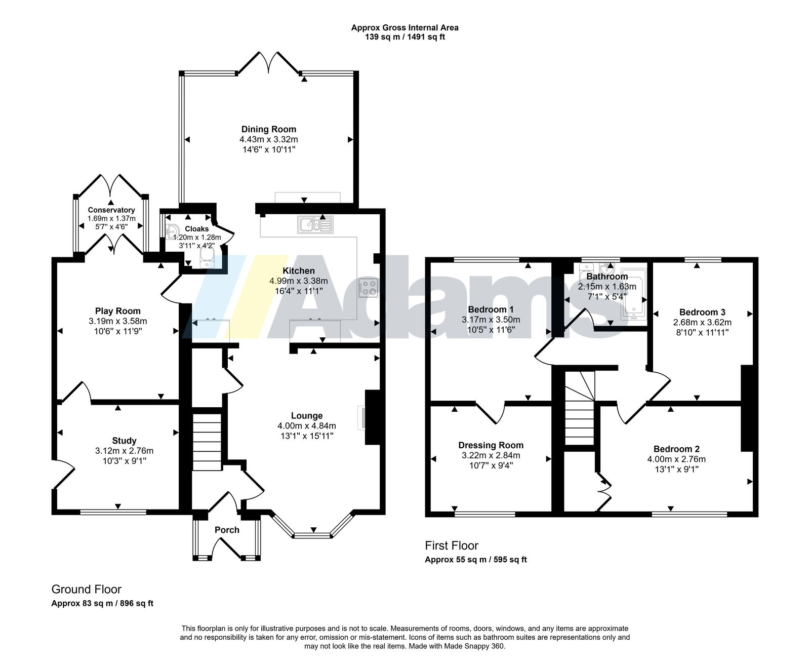
3 Bedroom Semi-Detached House for sale in Widnes

4 3 1
  • Extended Family Home
  • Versatile Accommodation
  • Stunning Kitchen
  • Three Bedrooms
  • Dressing Room to Master
  • Ideal Family Home
  • Early Viewing Essential
  • Stunning Views Over Farmland
  • Council Tax B
  • EPC Rating to Follow

Adams Real Estate are delighted to market this spacious three-bedroom semi-detached home on Union Bank Lane, Widnes, offering generous living space and a large garden. Priced at £275,000, this property provides comfortable living with excellent outdoor potential.


Step inside to discover a versatile layout, featuring four reception rooms that offer ample flexibility for a growing household or those desiring dedicated spaces for work and relaxation. The ground floor provides a welcoming atmosphere, ready to be configured to suit individual preferences.


Upstairs, you will find three well-proportioned bedrooms, bwith dressing room to master providing comfortable accommodation. A family bathroom serves the bedrooms, completing the first-floor layout.


Externally, the property benefits from convenient off-street parking and a driveway, ensuring ease of access. The standout feature is the large garden, offering significant outdoor space for recreation and entertaining with unspoilt views to rear/


Located on Union Bank Lane, this home is situated in an established area with local amenities within easy reach. This property represents a fantastic opportunity to acquire a spacious home with considerable potential in a desirable location. Arrange a viewing today to fully appreciate the space and possibilities this home offers. Council Tax B. EPC Rating to Follow.

Important Information

  • This Council Tax band for this property is: B

Property Ref: 10_1375577

Share:

Similar Properties

Clincton View, Widnes

3 Bedroom Semi-Detached House | £275,000

** Three Bedroom Extended Semi, Occupying a Superb Corner Plot in Popular Residential Area **Adams Real Estate are delig...

Mason Avenue, Farnworth, Widnes

3 Bedroom Semi-Detached House | Offers Over £275,000

*** Three Bedroom Semi-Detached in Quiet Cul-De-Sac, Close to Excellent Local Schools***Adams Real Estate are delighted...

Rushmore Drive, Sandringham Gardens, Widnes

3 Bedroom Semi-Detached House | £275,000

***Reconfigured & Much Improved Three Bedroom, Three Storey House with Detached Garage & Driveway to Rear*** Adams Real...

Birchfield Road, Widnes

4 Bedroom Terraced House | Offers Over £280,000

Adams Estate Agents are delighted to market this spacious, bay fronted terraced that will be fondly remembered as a form...

Upton Lane, Widnes

4 Bedroom End of Terrace House | £290,000

*** Four Bedroom Character Cottage in Sought After Location***Adams Real Estate are delighted to market this extended te...

Halegate Road, Widnes

3 Bedroom Semi-Detached House | Fixed Price £295,000

*** Superb Family Home with Views Over Farmland ***Adams Real Estate are delighted to market this most attractively pres...

Adams Estate Agents (Widnes)

Albert Road, Widnes, Cheshire, WA8 6JS

0151 420 4055

How much is your home worth?

Use our short form to request a valuation of your property.

Request a Valuation

Mortgage Calculator

Amount Borrowed: £
Total Amount Repayable: £
Total Monthly Payment: £
©2026 The Guild of Property Professionals. All rights reserved. Terms and Conditions | Privacy Policy | Cookie Policy | Complaints Policy | Members Login
The Guild of Property Professionals Trading Address: 121 Park Lane, London W1K 7AG. GPEA Limited. Registered in England & Wales.  Company No: 02819824.  Registered Office Address: 2 St. Stephen's Court, St. Stephen's Road, Bournemouth, Dorset, England, BH2 6LA.  VAT Registration No: 576 8795 61
Book a Property Valuation Update Cookies Preferences