Gussage Saint Michael, Wimborne, Dorset

Offers Over
£800,000
Under Offer
This property listing is now Under Offer

4 Bedroom Detached House for sale in Wimborne

2 4 2

Set in the quiet village of GUSSAGE SAINT MICHAEL, this detached barn conversion sits within a generous garden bordered by open countryside. The setting is peaceful and rural, with a sense of space and privacy that defines life in this part of Dorset. The house includes a double garage and ample parking, and its scale and layout make it a rare find in such a quiet location.

Inside, the accommodation is substantial, with a layout that suits both family life and entertaining. The SITTING ROOM is a generous space with fireplace and French doors opening directly to the garden, creating an easy connection between house and its surrounds. The DINING ROOM is ideally situated, and is large enough to accommodate both everyday meals and larger gatherings, with double doors opening out to the garden. The KITCHEN is positioned alongside, with plenty of room to plan a more contemporary arrangement combining cooking, dining, and informal seating, and is repleat with worktop and storage units, with space for a range of white goods. A practical UTILITY ROOM provides additional storage and workspace, and there is a separate W.C. for convenience. To the rear, the CONSERVATORY offers a relaxed space to sit and look out over the garden, bringing light into the house and adding versatility to the ground floor.

Upstairs, the PRINCIPAL BEDROOM boasts its own DRESSING ROOM and EN SUITE, with scope to create an elegant and private main suite. The remaining BEDROOMS are all comfortable doubles, each with open rural views that give the upper floor a calm, airy feel. The FAMILY BATHROOM completes the accommodation and provides generous space for updating in line with the rest of the house. The rooms throughout are well proportioned and naturally light, combining a sense of scale with the comfort of a traditional farmhouse. It is a house that can be adapted and refined to suit many ways of living, while retaining its strong architectural character.

Outside
The GARDEN is a notable feature of the property, enclosed and mature, with wide lawns edged by established trees and shrubs. A paved terrace runs along the rear of the house, providing an ideal spot for outdoor dining or quiet evenings overlooking the surrounding countryside. The DOUBLE GARAGE offers secure parking, and there is an additional SHED and WORKSHOP, with further parking on the gravel drive. The overall setting is private and peaceful, framed by the gentle landscape of the Gussage valley — a true Dorset farmhouse with substance, character, and a wonderful sense of place.

Location
Tucked away in the rolling landscape of Cranborne Chase, Gussage Saint Michael is a peaceful Dorset village surrounded by open countryside. Though small and unspoilt, it has a strong sense of community and sits within easy reach of the nearby market towns of Blandford Forum and Wimborne. Quiet lanes, big skies, and rural charm define everyday life here. For a broader range of facilities, Salisbury, and Poole are all within comfortable driving distance. Salisbury provides a direct rail link to London Waterloo, while Wimborne offers a lively town centre with shops, cafés, and restaurants.

The surrounding Cranborne Chase Area of Outstanding Natural Beauty offers superb walking, cycling, and riding. Golf is available at Rushmore and Remedy Oak, and within half an hour you can reach Poole Harbour or Studland Bay for sailing, paddleboarding, or the beaches of the Jurassic Coast.

The area is well served for schools, with local primaries in Witchampton, Cranborne, and Wimborne St Giles, and secondary options in Blandford, Cranborne, and Wimborne. Independent schools include Canford, Bryanston, Milton Abbey, and Clayesmore, with preparatory schools such as Hanford, Sandroyd, Dumpton, and Castle Court all nearby.

Directions
Use what3words.com to navigate to the exact spot. Search using: prude.keener.slung

Expansive barn conversion
Peaceful village setting
Four double bedrooms
Large, private garden
Double garage and parking


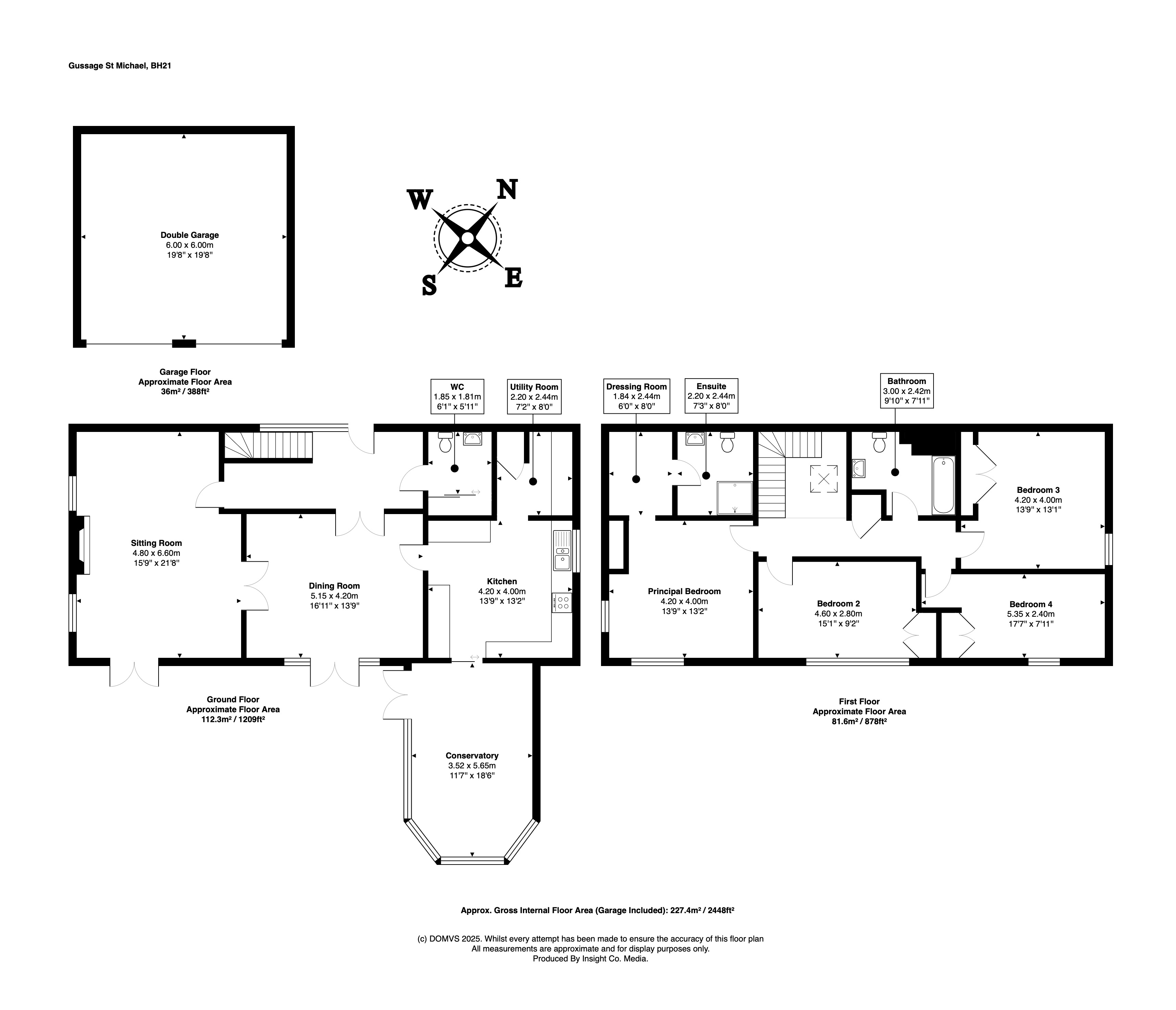
ROOM MEASUREMENTS Please refer to floor plan.

SERVICES Mains drainage and electricity; septic tank; oil-fired central heating.

LOCAL AUTHORITY Dorset Council. Tax band G.

BROADBAND Standard download 1 Mbps, upload 0.2 Mbps. Ultrafast download 1000 Mbps, upload 1000 Mbps. Please note all available speeds quoted are 'up to'.

MOBILE PHONE COVERAGE For further information please go to Ofcom website.

TENURE Freehold.

LETTINGS Should you be interested in acquiring a Buy-to-Let investment, and would appreciate advice regarding the current rental market, possible yields, legislation for landlords and how to make a property safe and compliant for tenants, then find out about our Investor Club from our expert, Alexandra Holland. Alexandra will be pleased to provide you with additional, personalised support; just call her on the branch telephone number to take the next step.

IMPORTANT NOTICE DOMVS and its Clients give notice that: they have no authority to make or give any representations or warranties in relation to the property. These particulars do not form part of any offer or contract and must not be relied upon as statements or representations of fact. Any areas, measurements or distances are approximate. The text, photographs (including any AI photography) and plans are for guidance only and are not necessarily comprehensive. It should not be assumed that the property has all necessary Planning, Building Regulation or other consents, and DOMVS has not tested any services, equipment or facilities. Purchasers must satisfy themselves by inspection or otherwise. DOMVS is a member of The Property Ombudsman scheme and subscribes to The Property Ombudsman Code of Practice.

Important Information

  • This is a Freehold property.

Property Ref: 654487_NDO240086

Share:

Similar Properties

Blandford Forum, Dorset

5 Bedroom Terraced House | £800,000

A unique opportunity to purchase this substantial character home in the heart of town with newly renovated annex, which...

Charminster, Dorset

5 Bedroom Detached House | Offers Over £775,000

Owner says, "We've really appreciated the village location, the flexibility of the layout, and the amount of space both...

Spetisbury, Blandford Forum, Dorset

4 Bedroom Detached House | Offers Over £775,000

Owners say, "We love the new garden room with the morning light pouring in, and the area with the log burner is the perf...

Tolpuddle, Dorchester, Dorset

5 Bedroom Detached House | Guide Price £875,000

A Grade II listed former Yeoman farmhouse with five bedrooms and a separate one-bedroom annexe. Surrounded by delightful...

Axminster, Devon

5 Bedroom Detached House | £900,000

Stunning five-bedroom detached house in approx. 0.65 acres, tucked away on the Devon/Dorset border. Beautifully extended...

Winterborne Whitechurch, Blandford Forum, Dorset

4 Bedroom Detached House | Guide Price £979,000

Offered chain-free. A stunning and unique four-bedroom home with ANNEXE (with proven rental income) in the heart of this...

DOMVS Mid Dorset (Dorchester)

Dorchester, Dorset, DT1 1UW

01305 757300

How much is your home worth?

Use our short form to request a valuation of your property.

Request a Valuation

Mortgage Calculator

Amount Borrowed: £
Total Amount Repayable: £
Total Monthly Payment: £
©2026 The Guild of Property Professionals. All rights reserved. Terms and Conditions | Privacy Policy | Cookie Policy | Complaints Policy | Members Login
The Guild of Property Professionals Trading Address: 121 Park Lane, London W1K 7AG. GPEA Limited. Registered in England & Wales.  Company No: 02819824.  Registered Office Address: 2 St. Stephen's Court, St. Stephen's Road, Bournemouth, Dorset, England, BH2 6LA.  VAT Registration No: 576 8795 61
Book a Property Valuation Update Cookies Preferences