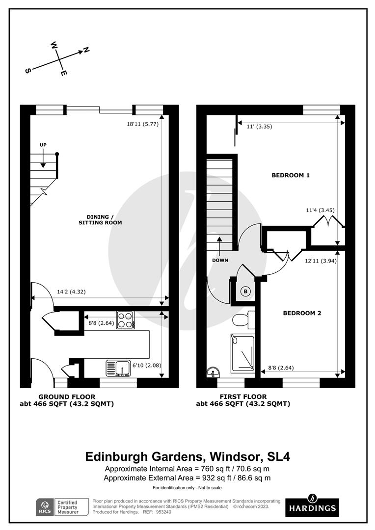
Edinburgh Gardens, Windsor

Offers in excess of
£400,000
SSTC
This property listing is now SSTC

2 Bedroom Terraced House for sale in Windsor

1 2 1
  • Popular Residential Development
  • Close to The Long Walk
  • Opportunity to Remodel/Refurbish
  • Off-Street Parking
  • Short Walk to Windsor Town Centre
  • Well Maintained Communal Gardens
  • Garage
  • No Chain

A 2 bedroom mid-terraced property offering the opportunity to refurbish and remodel. Located in a popular development with immediate access to The Long Walk, well-maintained communal gardens and just a short walk to Windsor town centre's vast array of shops and restaurants and two railway stations with mainline connections to London, this property benefits from front and rear gardens, off-street parking, garage and no onward chain.

Property Ref: 6500824_32186082

Share:

Similar Properties

Longbourn, Windsor

2 Bedroom Flat | Offers Over £400,000

An attractive two bedroom apartment, with lift access, in the prestigious development of Longbourn. With an open-plan di...

Forest Road, Windsor

3 Bedroom Terraced House | Offers in excess of £400,000

A 3 bedroom terraced property located on a quiet cul-de-sac in West Windsor, in an area for excellent schools, close to...

Nightingale Walk, Windsor, Berkshire

2 Bedroom Flat | Offers Over £400,000

A beautifully presented light and spacious 2 double bedroom, 2 bath ground floor apartment located in this central posit...

Albion Place, Windsor

2 Bedroom Terraced House | Guide Price £410,000

A charming 2 bedroom Victorian terraced property situated on a popular residential road close to Windsor Town Centre and...

Kings Road, Windsor

2 Bedroom Flat | Guide Price £415,000

A light and well proportioned two bedroom, first floor conversion flat, with sweeping views over Crown Estate Land. Loca...

St. Leonards Road, Windsor

2 Bedroom End of Terrace House | Guide Price £415,000

A charming and well presented 2 bedroom end of terrace cottage with the added benefit of off-street parking. Located clo...

Hardings Estate Agents (Windsor)

Windsor, Berkshire, SL4 1LD

01753 833118

How much is your home worth?

Use our short form to request a valuation of your property.

Request a Valuation

Mortgage Calculator

Amount Borrowed: £
Total Amount Repayable: £
Total Monthly Payment: £
©2025 The Guild of Property Professionals. All rights reserved. Terms and Conditions | Privacy Policy | Cookie Policy | Complaints Policy | Members Login
The Guild of Property Professionals Trading Address: 121 Park Lane, London W1K 7AG. GPEA Limited. Registered in England & Wales.  Company No: 02819824.  Registered Office Address: 2 St. Stephen's Court, St. Stephen's Road, Bournemouth, Dorset, England, BH2 6LA.  VAT Registration No: 576 8795 61
Book a Property Valuation Update Cookies Preferences