Knaphill, Woking, Surrey, GU21

Offers in excess of
£490,000
SSTC
This property listing is now SSTC

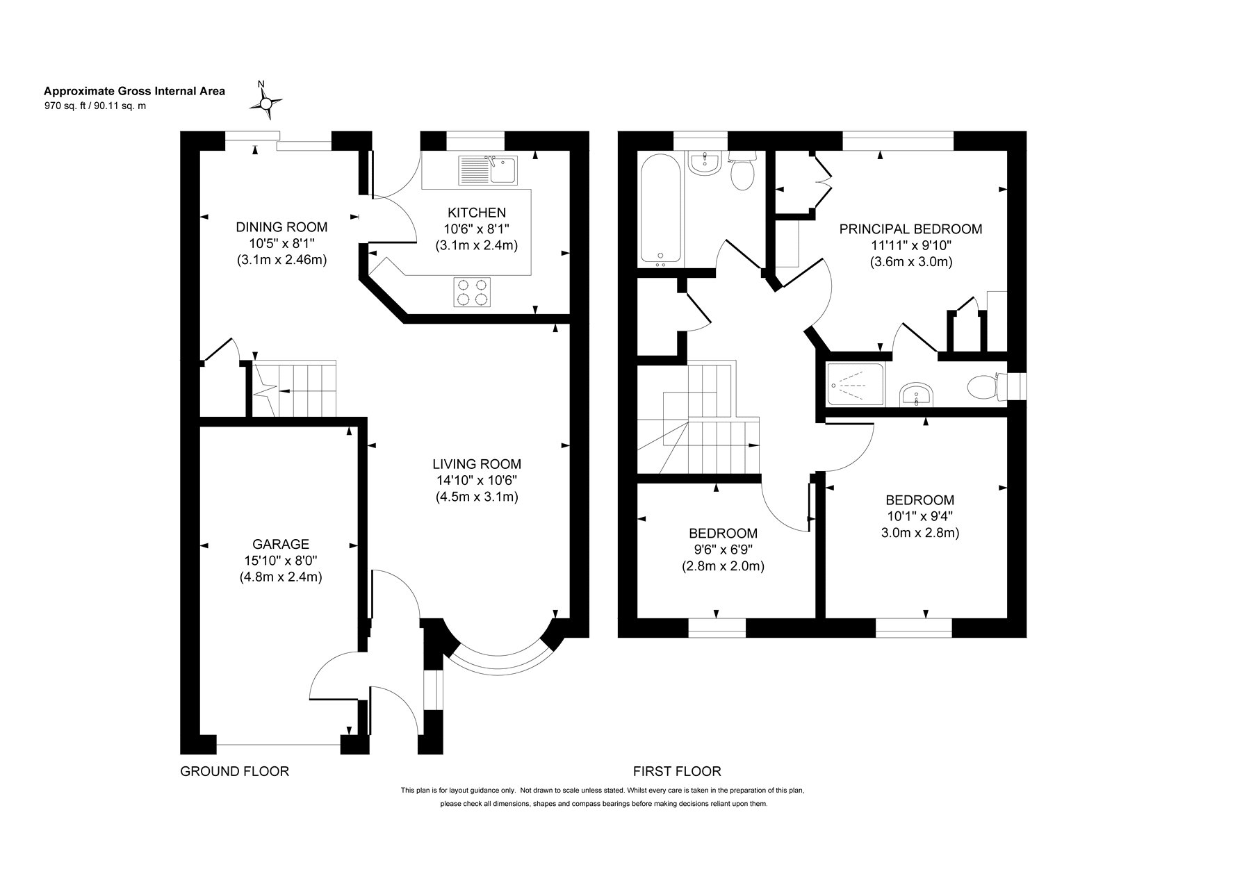
3 Bedroom Semi-Detached House for sale in Woking

2 3 1
  • Within Easy Reach of Bus Links Offering Easy Access to Woking Town Centre
  • En Suite to Master
  • Recently Updated Kitchen
  • Private Rear Garden
  • Integral Garage Accessible From the House
  • Driveway Providing Off Street Parking
  • Close to Numerous Schools

This three-bedroom semi-detached home offers is presented in excellent condition and provides stylish, well-proportioned accommodation throughout, perfect for families or professionals seeking a turn-key property in a desirable location.On the ground floor, the property features a bright and welcoming front-aspect lounge and a separate dining room to the rear, ideal for both everyday living and entertaining. The recently updated kitchen is fitted with a range of contemporary base and eye-level units, integrated appliances, and a smart, modern finish.Upstairs, there are three well-presented bedrooms, including two generous doubles. The master bedroom benefits from built-in wardrobes and a private en suite shower room. A modern family bathroom serves the remaining bedrooms.Externally, the home continues to impress. To the rear is a private, beautifully maintained garden featuring a well-kept lawn, landscaped borders, and a large patio area, perfect for outdoor dining and relaxation. To the front, there is a driveway providing off-street parking and access to the garage, which is also accessible internally from the house.Early viewing is highly recommended to appreciate the quality, space, and finish this lovely home has to offer.

Location

Knaphill village has a vibrant range of shops, pubs and restaurants, which includes a Post Office. For more comprehensive shopping, Sainsbury's superstore is approximately quarter of a mile away. For commuting, Brookwood station provides a regular service direct to London Waterloo, Woking and Guildford. For those who enjoy the outdoors, there is Brookwood Country Park, Sheets Heath and Basingstoke Canal close by, which is ideal for dog walking or a family stroll.

Important Information

  • This is a Freehold property.

Property Ref: WOK250559

Share:

Similar Properties

Knaphill, Woking, Surrey, GU21

3 Bedroom Terraced House | £485,000

Situated in a quiet cul-de-sac, this spacious and well-presented terraced home enjoys a highly convenient location just...

Knaphill, Woking, Surrey, GU21

3 Bedroom Detached House | Offers in excess of £479,950

This attractive detached character home is offered in good decorative order throughout and conveniently located within e...

Knaphill, Woking, GU21

3 Bedroom Terraced House | Offers in excess of £475,000

This stunning mid terrace home is offered to the market in excellent condition and is located within easy reach of Brook...

Knaphill, Woking, GU21

3 Bedroom Semi-Detached House | £495,000

This beautifully presented character cottage combines period charm with modern convenience and is ideally located within...

Wood Lane, Knaphill, Woking, GU21

3 Bedroom Semi-Detached House | £495,000

Charming Victorian Cottage in the Heart of Knaphill VillageTucked away on a quiet residential road in the centre of Knap...

Brookwood, Woking, Surrey, GU24

3 Bedroom End of Terrace House | £499,950

A well presented end of terrace home, ideally positioned in a quiet cul de sac just a short walk from Brookwood Mainline...

Seymours (Knaphill)

Knaphill, Surrey, GU21 2PP

01483 798969

How much is your home worth?

Use our short form to request a valuation of your property.

Request a Valuation

Mortgage Calculator

Amount Borrowed: £
Total Amount Repayable: £
Total Monthly Payment: £
©2026 The Guild of Property Professionals. All rights reserved. Terms and Conditions | Privacy Policy | Cookie Policy | Complaints Policy | Members Login
The Guild of Property Professionals Trading Address: 121 Park Lane, London W1K 7AG. GPEA Limited. Registered in England & Wales.  Company No: 02819824.  Registered Office Address: 2 St. Stephen's Court, St. Stephen's Road, Bournemouth, Dorset, England, BH2 6LA.  VAT Registration No: 576 8795 61
Book a Property Valuation Update Cookies Preferences