Knaphill, Woking, GU21

£495,000

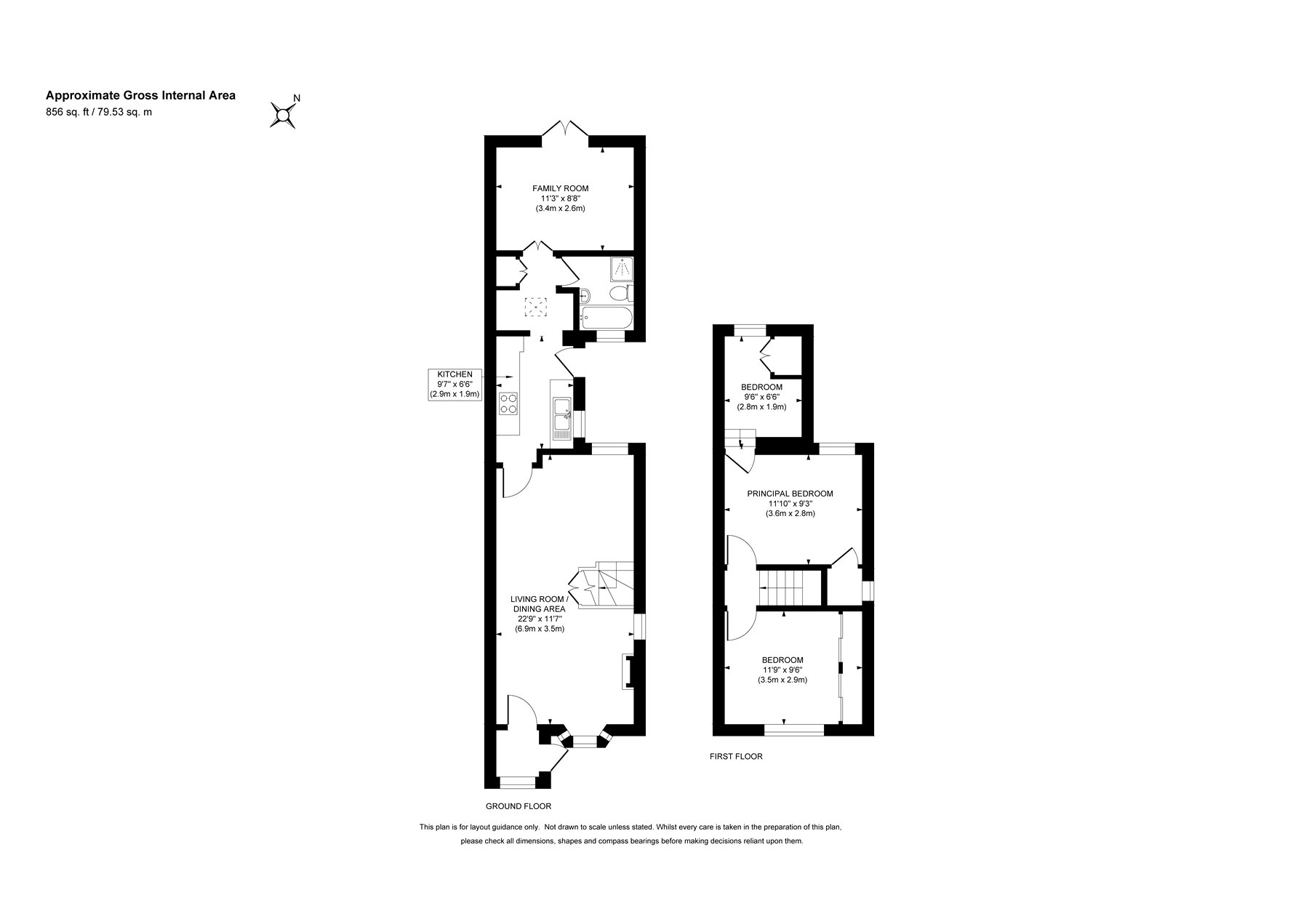
3 Bedroom Semi-Detached House for sale in Woking

3 3
  • Semi Detached
  • Character Cottage
  • 3 Bedrooms
  • 3 Reception Rooms
  • Highly Sought After Location
  • Walking Distance to Brookwood Mainline Station
  • Close to Knaphill Village

This beautifully presented character cottage combines period charm with modern convenience and is ideally located within easy reach of Knaphill Village and Brookwood Mainline Station, offering fast and convenient access to London Waterloo.
A welcoming porch greets you on arrival, providing practical space for coats and shoes before leading into the delightful living room. Here, a striking exposed brick fireplace with log burner creates a stunning focal point, complemented by bespoke shelving and fitted units in the adjacent recess. Parquet flooring flows seamlessly from the lounge through to the dining room, enhancing the sense of continuity and warmth.
The cottage-style kitchen features a range of base and eye-level units, an integrated oven with induction hob and space for additional appliances. To the rear, a thoughtfully designed extension has added a useful utility room, a luxurious four-piece bathroom, and a versatile third reception room, currently arranged as a home office, ideal for those working remotely.
Upstairs, the property offers three bedrooms, two of which are generous doubles, including the master bedroom.
Outside, the westerly facing rear garden is mainly laid to lawn and enjoys excellent afternoon and evening sun. A raised decking area provides the perfect spot for outdoor dining or relaxation.
This is a rare opportunity to secure an immaculate character cottage in a highly sought-after location. Early viewings are strongly recommended.
Location
Knaphill village has a vibrant range of shops, pubs and restaurants, which includes a Post Office. For more comprehensive shopping, Sainsbury's superstore is approximately quarter of a mile away. For commuting, Brookwood station provides a regular service direct to London Waterloo, Woking and Guildford. For those who enjoy the outdoors, there is Brookwood Country Park, Sheets Heath and Basingstoke Canal close by, which is ideal for dog walking or a family stroll.

Important Information

  • This is a Freehold property.

Property Ref: KNA250308

Share:

Similar Properties

Wood Lane, Knaphill, Woking, GU21

3 Bedroom Semi-Detached House | £495,000

Charming Victorian Cottage in the Heart of Knaphill VillageTucked away on a quiet residential road in the centre of Knap...

Knaphill, Woking, Surrey, GU21

3 Bedroom End of Terrace House | £480,000

A beautifully presented executive-style home offering spacious and versatile accommodation across three floors. This imp...

Knaphill, Woking, Surrey, GU21

3 Bedroom Detached House | Offers in excess of £479,950

This attractive detached character home is offered in good decorative order throughout and conveniently located within e...

Brookwood, Woking, Surrey, GU24

3 Bedroom End of Terrace House | £499,950

A well presented end of terrace home, ideally positioned in a quiet cul de sac just a short walk from Brookwood Mainline...

Knaphill, Woking, Surrey, GU21

3 Bedroom Semi-Detached House | Offers in excess of £500,000

Located in a peaceful and highly sought-after private cul-de-sac, this modern semi-detached home offers spacious and wel...

Knaphill, Woking, Surrey, GU21

4 Bedroom End of Terrace House | £500,000

A spacious end of terrace townhouse offering well balanced accommodation exceeding 1,400 sq ft, arranged over three gene...

Seymours (Knaphill)

Knaphill, Surrey, GU21 2PP

01483 798969

How much is your home worth?

Use our short form to request a valuation of your property.

Request a Valuation

Mortgage Calculator

Amount Borrowed: £
Total Amount Repayable: £
Total Monthly Payment: £
©2026 The Guild of Property Professionals. All rights reserved. Terms and Conditions | Privacy Policy | Cookie Policy | Complaints Policy | Members Login
The Guild of Property Professionals Trading Address: 121 Park Lane, London W1K 7AG. GPEA Limited. Registered in England & Wales.  Company No: 02819824.  Registered Office Address: 2 St. Stephen's Court, St. Stephen's Road, Bournemouth, Dorset, England, BH2 6LA.  VAT Registration No: 576 8795 61
Book a Property Valuation Update Cookies Preferences