Knaphill, Woking, Surrey, GU21

£585,000
SSTC
This property listing is now SSTC

4 Bedroom Semi-Detached House for sale in Woking

2 4 2
  • Stunning Open Plan Kitchen/Dining Room
  • Four Bedrooms
  • Ensuite to Main Bedroom
  • Walking Distance to Numerous Schools
  • Utility Room
  • Downstairs Cloakroom
  • Driveway Providing Off Street Parking
  • Rear Garden Approx 60ft in Length

Situated on a popular residential road in Knaphill, this beautifully presented semi-detached home is within walking distance of a number of well-regarded schools and Knaphill village, which offers a range of amenities and convenient bus links providing easy access to Woking town centre.
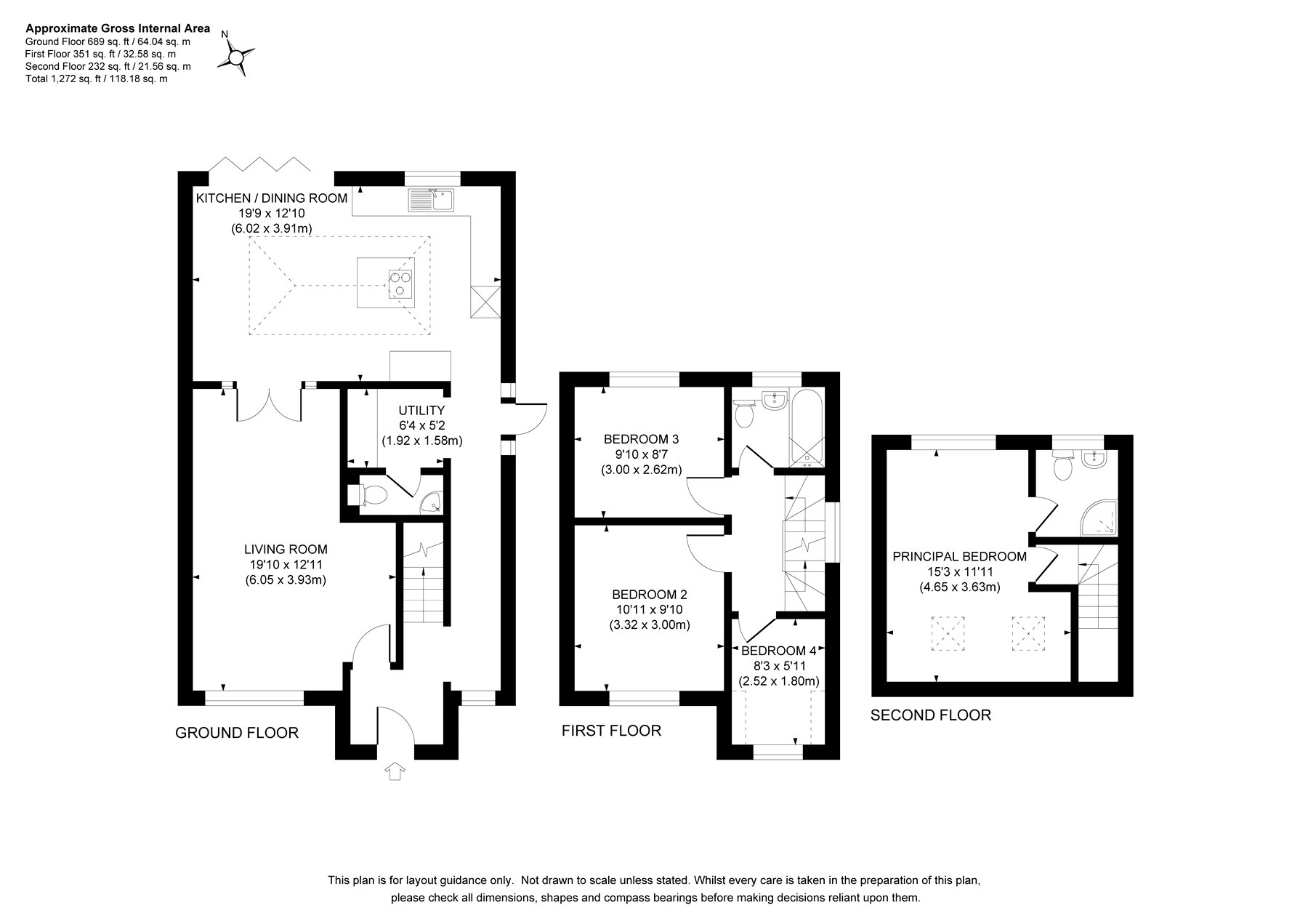
The property has been significantly remodelled and renovated by the current owners, creating a stylish and spacious home ideal for modern family living. The accommodation is arranged over three floors.
On the top floor, the impressive principal bedroom enjoys wonderful views to the rear via a large double-glazed window and benefits from a contemporary ensuite shower room.
The first floor offers three further bedrooms, two of which are generous doubles, all served by a modern family bathroom comprising a three-piece suite including a wash hand basin with vanity unit, WC, and bath.
On the ground floor, there is a front aspect living room featuring a media wall. To the rear, a substantial extension has created a stunning open-plan kitchen/dining space, flooded with natural light from a large skylight lantern. Bi-folding doors open onto the garden, enhancing the indoor-outdoor living experience. The kitchen is fitted with a range of base and eye level units, stone worktops and integrated appliances, along with a large central island incorporating a gas hob, ideal for cooking and entertaining. A separate utility room and downstairs cloakroom completes the ground floor.
Externally, the rear garden measures approximately 60ft and is mainly laid to lawn, with a decking area to the rear, perfect for outdoor dining. To the front, a large block-paved driveway provides ample off-street parking.
Location
Knaphill village has a vibrant range of shops, pubs, restaurants and a Post Office. For more comprehensive shopping Sainsbury's superstore is approximately quarter of a mile away. For commuting, nearby Brookwood station provides a regular service direct to Waterloo. Woking and Guildford. For those who enjoy the outdoors there is Stafford Lake which is ideal for dog walking and nearby Brookwood Country Park ideal for a family stroll on a Sunday.

Important Information

  • This is a Freehold property.

Property Ref: KNA180592

Share:

Similar Properties

West End, Woking, Surrey, GU24

3 Bedroom Semi-Detached House | £575,000

Situated approximately 780 metres from Gordon's School, this spacious semi-detached character property has been thoughtf...

West End, Woking, Surrey, GU24

3 Bedroom Semi-Detached House | £575,000

An exceptional semi detached property, built by the highly renowned developer Michael Shanly Homes in 2019, with their t...

Brookwood, Surrey, GU24

3 Bedroom Detached House | £575,000

A charming 1920's character detached residence located a short stroll from Brookwood mainline station with NO ONWARD CHA...

St Johns, Woking, Surrey, GU21

3 Bedroom Semi-Detached House | £599,950

This beautifully refurbished and remodelled semi-detached family home is presented in immaculate condition throughout, h...

Bisley, Woking, Surrey, GU24

4 Bedroom Detached House | Offers in excess of £599,950

Tucked away in a peaceful cul-de-sac in the heart of Bisley village, this beautifully presented Georgian style detached...

Gole Road, Pirbright, Woking, GU24

3 Bedroom Semi-Detached House | Guide Price £599,950

This charming period home is presented in excellent condition throughout and offers a wonderful blend of character featu...

Seymours (Knaphill)

Knaphill, Surrey, GU21 2PP

01483 798969

How much is your home worth?

Use our short form to request a valuation of your property.

Request a Valuation

Mortgage Calculator

Amount Borrowed: £
Total Amount Repayable: £
Total Monthly Payment: £
©2026 The Guild of Property Professionals. All rights reserved. Terms and Conditions | Privacy Policy | Cookie Policy | Complaints Policy | Members Login
The Guild of Property Professionals Trading Address: 121 Park Lane, London W1K 7AG. GPEA Limited. Registered in England & Wales.  Company No: 02819824.  Registered Office Address: 2 St. Stephen's Court, St. Stephen's Road, Bournemouth, Dorset, England, BH2 6LA.  VAT Registration No: 576 8795 61
Book a Property Valuation Update Cookies Preferences