Bisley, Woking, Surrey, GU24

Offers in excess of
£599,950
SSTC
This property listing is now SSTC

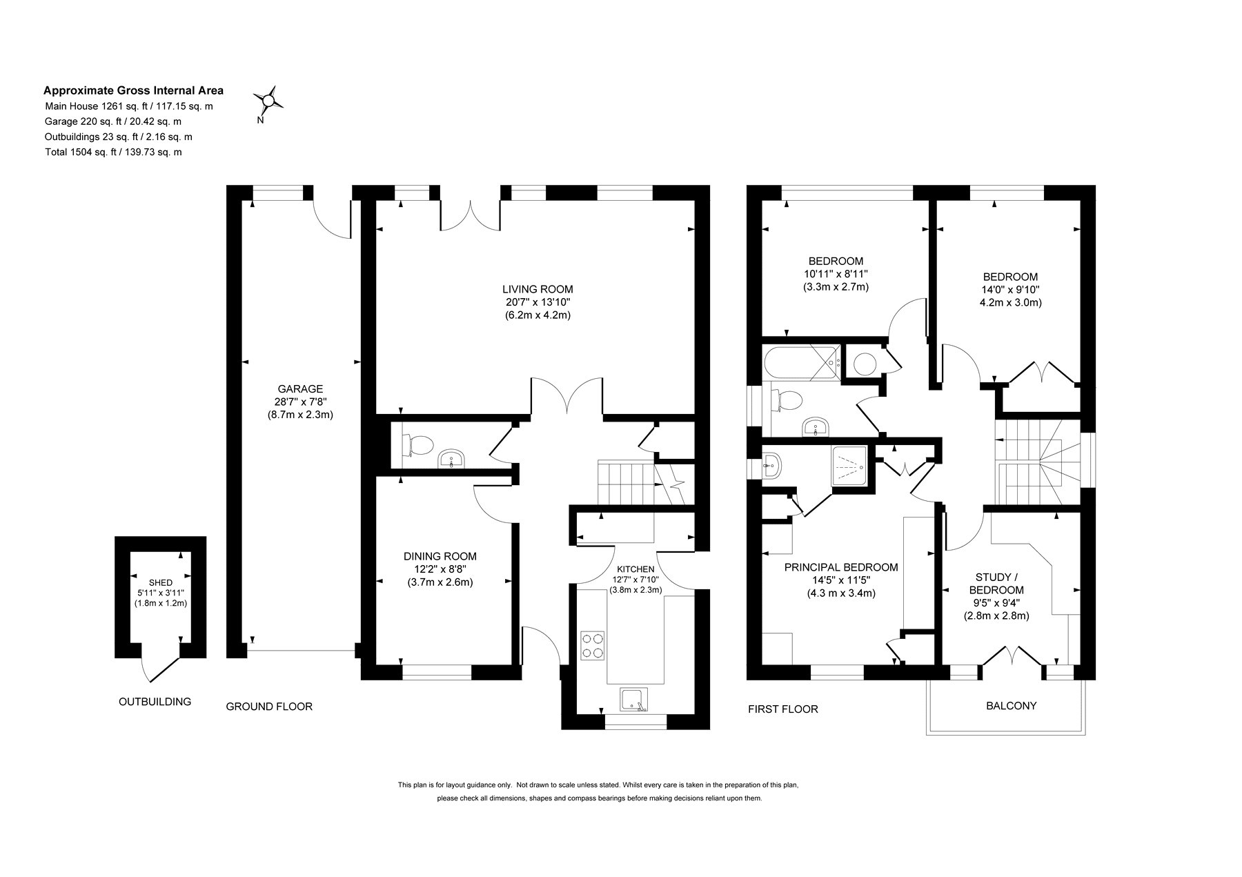
4 Bedroom Detached House for sale in Woking

2 4 2
  • Quiet Cul de Sac Location
  • Backing onto Farmland and Open Fields
  • Four Double Bedrooms
  • Ensuite to Master
  • Downstairs Cloakroom
  • South Facing Garden
  • Double Length Garage
  • Spacious Rear Aspect Lounge
  • Close to Bisley Primary School

Tucked away in a peaceful cul-de-sac in the heart of Bisley village, this beautifully presented Georgian style detached home offers spacious and flexible living with a stunning south-facing garden backing onto farmland and open fields.
Internally, the property boasts four generous double bedrooms. The principal bedroom benefits from a modern en-suite shower room, while the remaining bedrooms are served by a contemporary family bathroom, featuring a P-shaped bath, WC and wash hand basin. Bedroom four is currently arranged as a home office, with direct access to a private balcony, an ideal spot for those who work from home.
Downstairs, the accommodation continues to impress with a separate dining room and a well-equipped kitchen, fitted with a range of base and eye level units, an integrated double oven (one of which is a combined microwave/conventional oven) , gas hob, dishwasher and washer/dryer. To the rear of the home is a spacious and light filled lounge, complete with a bespoke entertainment unit providing stylish and practical storage.
Outside, the south facing rear garden offers the perfect space for entertaining, relaxing. To the front, there is a private driveway providing off street parking and access to a double length garage, which offers excellent storage or potential for conversion, subject to planning.
Located just a short walk from Bisley Primary School, the property is also conveniently situated for access to the M3 motorway and Brookwood mainline station, providing fast and direct links to London Waterloo.
Bisley village sits conveniently for access to both Woking (3.4 Miles) and Guildford (7.7 miles) whilst the M3 is approximately 2 miles. There is a primary school in the village with secondary schools being easily accessible in West End (Gordon's) and St John's (Winston Churchill). There is a local Sainsbury's within the village as well as an excellent continental butcher. A larger Sainsbury's superstore is within a mile in nearby Knaphill.
For those who enjoy the outdoors Bisley village is surrounded by acres of common land at nearby Brentmoor Heath as well as Stafford Lake. Nearby Brookwood station provides a regular direct service to Waterloo.

Important Information

  • This is a Freehold property.

Property Ref: KNA250075

Share:

Similar Properties

Pirbright, Woking, Surrey, GU24

3 Bedroom Semi-Detached House | £599,950

This charming semi-detached home is situated in the sought-after village of Pirbright and offers a wonderful blend of ch...

Gole Road, Pirbright, Woking, GU24

3 Bedroom Semi-Detached House | Guide Price £599,950

This charming period home is presented in excellent condition throughout and offers a wonderful blend of character featu...

St Johns, Woking, Surrey, GU21

3 Bedroom Semi-Detached House | £599,950

This beautifully refurbished and remodelled semi-detached family home is presented in immaculate condition throughout, h...

West End, Woking, Surrey, GU24

4 Bedroom Detached House | Offers in excess of £600,000

Tucked away in a peaceful cul-de-sac, this attractive double fronted detached family home offers generous and versatile...

Bisley, Woking, Surrey, GU24

4 Bedroom Detached House | £600,000

Offered in immaculate condition throughout, this beautifully presented link detached home combines contemporary design w...

St Johns, Woking, Surrey, GU21

4 Bedroom Semi-Detached House | £600,000

Located in a peaceful cul-de-sac, close to the excellent Hermitage and Winston Churchill schools, this extended semi det...

Seymours (Knaphill)

Knaphill, Surrey, GU21 2PP

01483 798969

How much is your home worth?

Use our short form to request a valuation of your property.

Request a Valuation

Mortgage Calculator

Amount Borrowed: £
Total Amount Repayable: £
Total Monthly Payment: £
©2026 The Guild of Property Professionals. All rights reserved. Terms and Conditions | Privacy Policy | Cookie Policy | Complaints Policy | Members Login
The Guild of Property Professionals Trading Address: 121 Park Lane, London W1K 7AG. GPEA Limited. Registered in England & Wales.  Company No: 02819824.  Registered Office Address: 2 St. Stephen's Court, St. Stephen's Road, Bournemouth, Dorset, England, BH2 6LA.  VAT Registration No: 576 8795 61
Book a Property Valuation Update Cookies Preferences