Bisley, Woking, Surrey, GU24

£600,000
SSTC
This property listing is now SSTC

4 Bedroom Detached House for sale in Woking

2 4 1
  • Stunning Open Plan Kitchen/Dining Room
  • Cul de Sac Location
  • Large Master Bedroom With Built in Wardrobes
  • Garage
  • Driveway Providing Off Street Parking
  • Walking Distance to Bisley Primary School
  • Within Easy Reach of Brookwood Mainline Station
  • Rear Garden Approx 35ft in Length

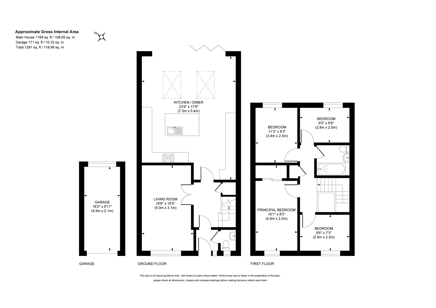
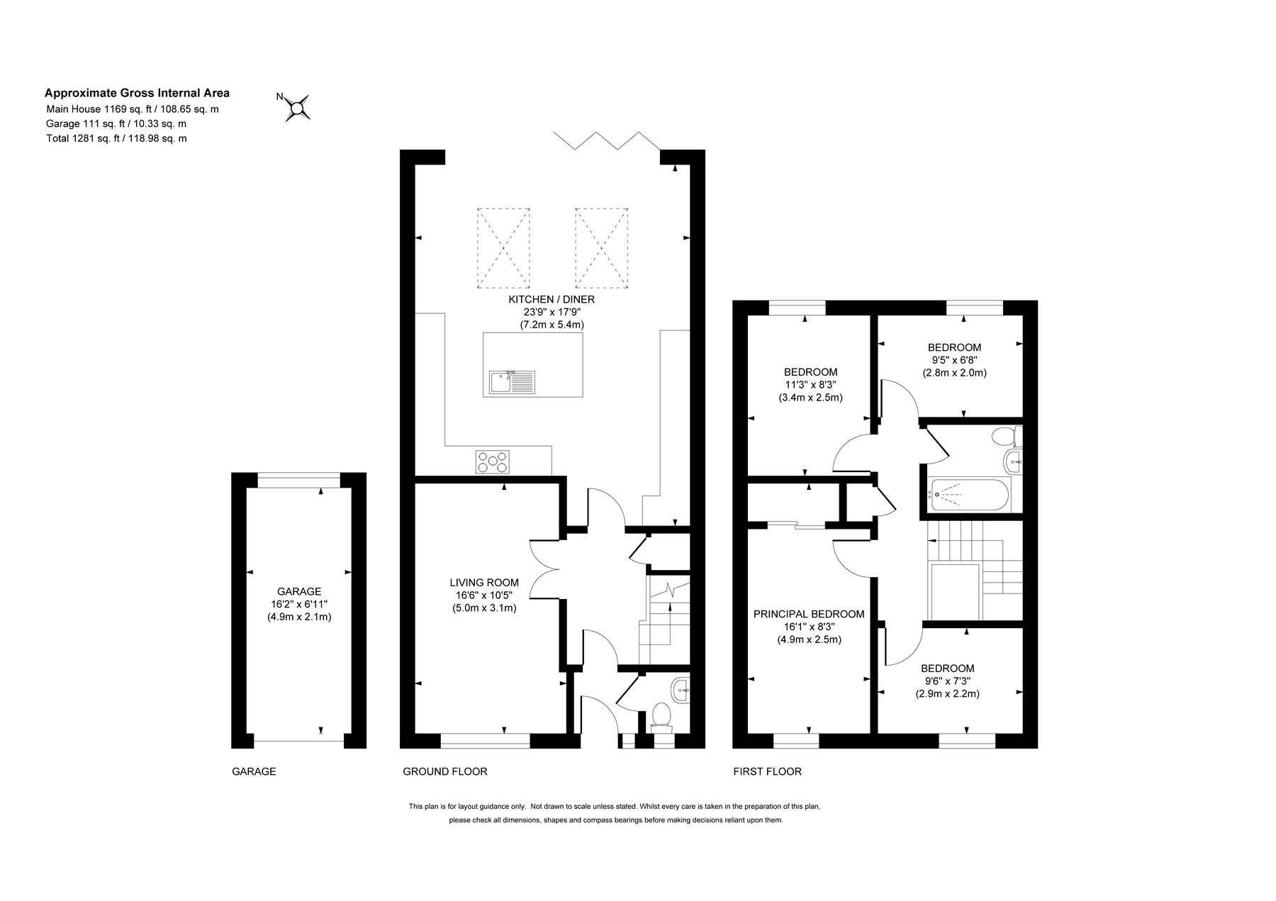
Offered in immaculate condition throughout, this beautifully presented link detached home combines contemporary design with practical family living in a sought after residential location.
At the heart of the home is a modern open plan kitchen/dining room, featuring sleek white high gloss units, premium stone worktops, a central island, and bi-folding doors that seamlessly connect the indoors with the garden. A vaulted pitched roof with Velux windows floods the space with natural light, creating a bright and airy feel perfect for both everyday living and entertaining.
To the front, the spacious lounge provides a welcoming and comfortable area to relax, while a handy downstairs cloakroom adds convenience to the ground floor layout.
Upstairs are four bedrooms, the master bedroom benefits from a built in wardrobe, and the recently updated family bathroom has been finished to a high standard with contemporary fittings.
Externally, the property boasts a well maintained rear garden measuring approximately 35ft, ideal for outdoor dining and family activities. To the front, a driveway provides offroad parking, along with access to a garage, offering additional storage or further parking options.
Ideally located, the property is just a short walk from the highly regarded Bisley Primary School and is within easy reach of Brookwood Mainline Station, offering direct links to London, perfect for commuters and families alike.
Early viewing is highly recommended to appreciate the quality, space, and lifestyle this exceptional home has to offer.

Location
Bisley village sits conveniently for access to both Woking (3.4 Miles) and Guildford (7.7 miles) whilst the M3 is approximately 2 miles. There is a Primary school in the village with secondary schools being easily accessible in West End (Gordons) and St Johns (Winston Churchill). There is a local Sainsburys within the village as well as an excellent continental butcher. A larger Sainsburys superstore is within a mile in nearby Knaphill.
For those who enjoy the outdoors Bisley village is surrounded by acres of common land at nearby Brentmoor Heath as well as Stafford Lake. Nearby Brookwood station provides a regular direct service to Waterloo.

Important Information

  • This is a Freehold property.

Property Ref: KNA250386

Share:

Similar Properties

West End, Woking, Surrey, GU24

4 Bedroom Detached House | Offers in excess of £600,000

Tucked away in a peaceful cul-de-sac, this attractive double fronted detached family home offers generous and versatile...

St Johns, Woking, Surrey, GU21

4 Bedroom Semi-Detached House | £600,000

Located in a peaceful cul-de-sac, close to the excellent Hermitage and Winston Churchill schools, this extended semi det...

Knaphill, Woking, Surrey, GU21

4 Bedroom Semi-Detached House | Offers in excess of £600,000

Situated in a sought after cul de sac within easy walking distance of Brookwood railway station, providing direct access...

West End, Surrey, GU24

4 Bedroom Link Detached House | £625,000

This spacious link-detached family home is situated in a quiet and highly sought-after cul-de-sac in the heart of Donkey...

West End, Woking, Surrey, GU24

4 Bedroom Detached House | £625,000

Tucked away in a quiet cul-de-sac comprising just three homes, this beautifully presented detached family residence is s...

Bisley, Woking, Surrey, GU24

4 Bedroom Detached House | £625,000

An immaculately presented Neo-Georgian detached four-bedroom family home, situated within a highly sought-after developm...

Seymours (Knaphill)

Knaphill, Surrey, GU21 2PP

01483 798969

How much is your home worth?

Use our short form to request a valuation of your property.

Request a Valuation

Mortgage Calculator

Amount Borrowed: £
Total Amount Repayable: £
Total Monthly Payment: £
©2026 The Guild of Property Professionals. All rights reserved. Terms and Conditions | Privacy Policy | Cookie Policy | Complaints Policy | Members Login
The Guild of Property Professionals Trading Address: 121 Park Lane, London W1K 7AG. GPEA Limited. Registered in England & Wales.  Company No: 02819824.  Registered Office Address: 2 St. Stephen's Court, St. Stephen's Road, Bournemouth, Dorset, England, BH2 6LA.  VAT Registration No: 576 8795 61
Book a Property Valuation Update Cookies Preferences