Knaphill, Woking, Surrey, GU21

£480,000
SSTC
This property listing is now SSTC

3 Bedroom End of Terrace House for sale in Woking

1 3 2
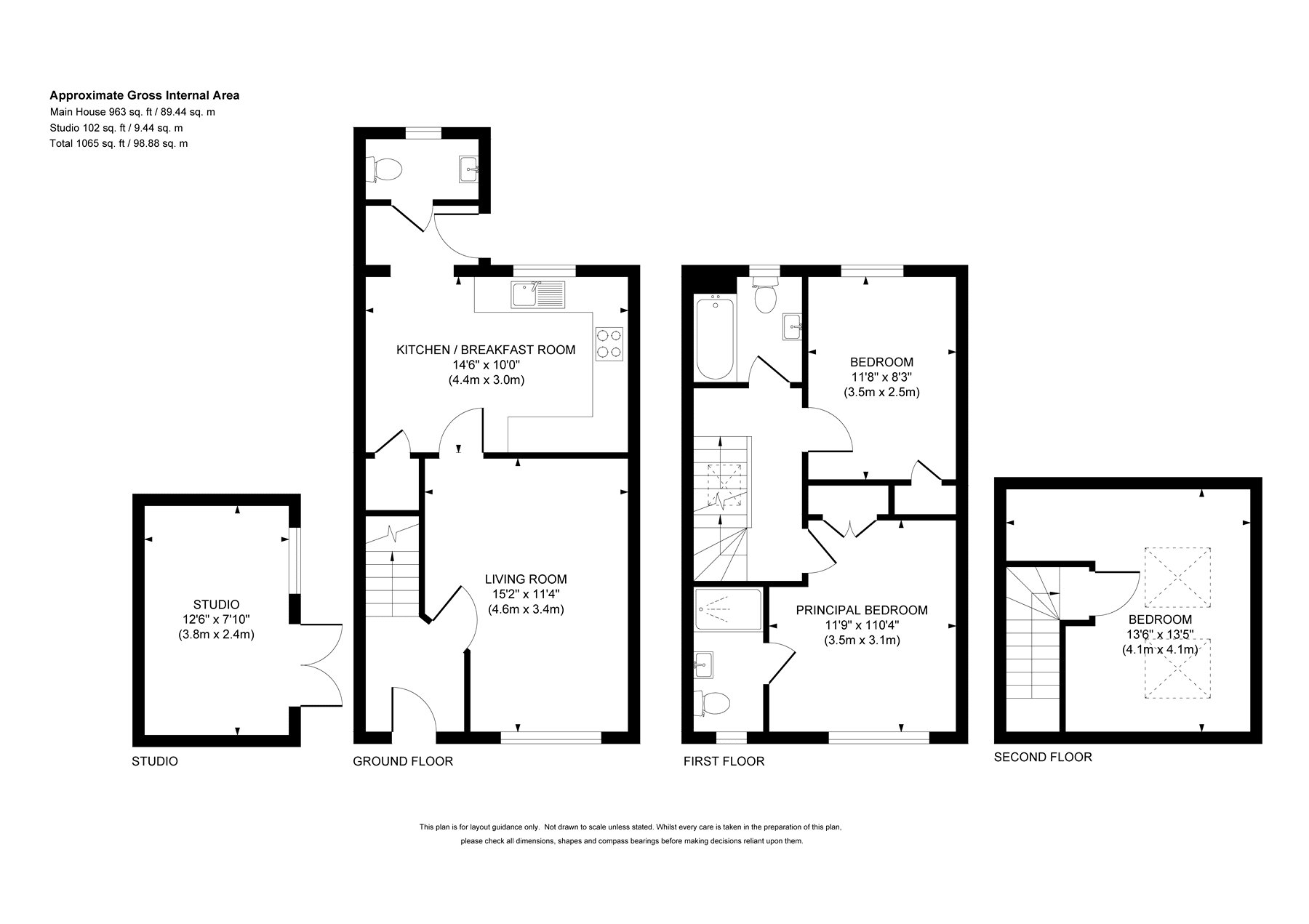
  • Three Double Bedrooms
  • Kitchen/Breakfast Room
  • Downstairs Cloakroom
  • En Suite to Master
  • Garage in a Block
  • Summer House with Power
  • Close to Knaphill Village
  • Within Easy Reach of Brookwood Mainline Station

A beautifully presented executive-style home offering spacious and versatile accommodation across three floors. This impressive property features three generously sized double bedrooms, with the third bedroom created via a well-executed loft conversion. The master bedroom also benefits from a modern en suite shower room and built in wardrobes, a feature also present in bedroom two.Lovingly maintained by the current owner, the home boasts a well appointed kitchen fitted with a range of stylish eye- and base-level, Shaker style units, integrated appliances, and a built-in oven with gas hob. A downstairs cloakroom adds further convenience.Outside, the rear garden is fully enclosed and designed for low maintenance, with attractive patio paving throughout, ideal for entertaining or relaxing. A powered summer house offers additional flexibility for use as a home office, studio, or garden retreat. The property also includes a garage in a nearby block along with allocated parking.Situated close to Brookwood Mainline Station, providing direct services to London Waterloo in approximately 30 minutes, and within easy reach of Knaphill village, which offers a variety of shops, cafes, and local amenities.

Location

Knaphill village has a vibrant range of shops, pubs, restaurants and a Post Office. For more comprehensive shopping Sainsbury's superstore is approximately quarter of a mile away. For commuting, nearby Brookwood station provides a regular service direct to Waterloo. Woking and Guildford. For those who enjoy the outdoors there is Stafford lake which is ideal for dog walking and nearby Brookwood Country Park ideal for a family stroll on a Sunday.





Important Information

  • This is a Freehold property.

Property Ref: 58085_KNA210349

Share:

Similar Properties

St Johns, Woking, Surrey, GU21

2 Bedroom Semi-Detached Bungalow | £479,950

***NO ONWARD CHAIN***This rarely available semi-detached bungalow is located on a very quiet highly desirable road on th...

West End, Woking, GU24

2 Bedroom Semi-Detached House | Offers in excess of £479,950

* MOTIVATED SELLER * This stunning semi-detached home enjoys an enviable position on the recently built Oaks Meadow Deve...

St Johns, Woking, Surrey, GU21

3 Bedroom Detached Bungalow | Offers in excess of £475,000

Spacious Extended Detached Bungalow with Generous Garden & Garage:This beautifully extended detached bungalow offers ver...

Brookwood, Woking, Surrey, GU24

2 Bedroom Semi-Detached House | £485,000

This stunning period property is on the doorstep of Brookwood Mainline Station, making this an excellent opportunity for...

Wood Lane, Knaphill, Woking, GU21

3 Bedroom Semi-Detached House | £495,000

Charming Victorian Cottage in the Heart of Knaphill VillageTucked away on a quiet residential road in the centre of Knap...

West End, Woking, Surrey, GU24

3 Bedroom Semi-Detached House | Offers in excess of £500,000

A stunning semi-detached home, presented in excellent condition, having been beautifully maintained by the current owner...

Seymours (Knaphill)

Knaphill, Surrey, GU21 2PP

01483 798969

How much is your home worth?

Use our short form to request a valuation of your property.

Request a Valuation

Mortgage Calculator

Amount Borrowed: £
Total Amount Repayable: £
Total Monthly Payment: £
©2025 The Guild of Property Professionals. All rights reserved. Terms and Conditions | Privacy Policy | Cookie Policy | Complaints Policy | Members Login
The Guild of Property Professionals Trading Address: 121 Park Lane, London W1K 7AG. GPEA Limited. Registered in England & Wales.  Company No: 02819824.  Registered Office Address: 2 St. Stephen's Court, St. Stephen's Road, Bournemouth, Dorset, England, BH2 6LA.  VAT Registration No: 576 8795 61
Book a Property Valuation Update Cookies Preferences