Knaphill, Woking, Surrey, GU21

£576,500
SSTC
This property listing is now SSTC

4 Bedroom Semi-Detached House for sale in Woking

1 4 2
  • No Onward Chain
  • Walking Distance to Brookwood Mainline Station
  • Summerhouse with Power
  • Driveway With Parking For Two Cars
  • Downstairs Cloakroom
  • Ensuite to Master
  • Close to Brookwood Country Park
  • Stylish Herringbone Flooring Throughout the Ground Floor
  • Contemporary Kitchen With Granite Worktops

Offered to the market with no onward chain, this spacious and beautifully presented semi-detached home is located on the highly sought after Brookwood Farm Development in Knaphill, an ideal location for commuters, just a short walk from Brookwood Mainline Station with direct services to London Waterloo.
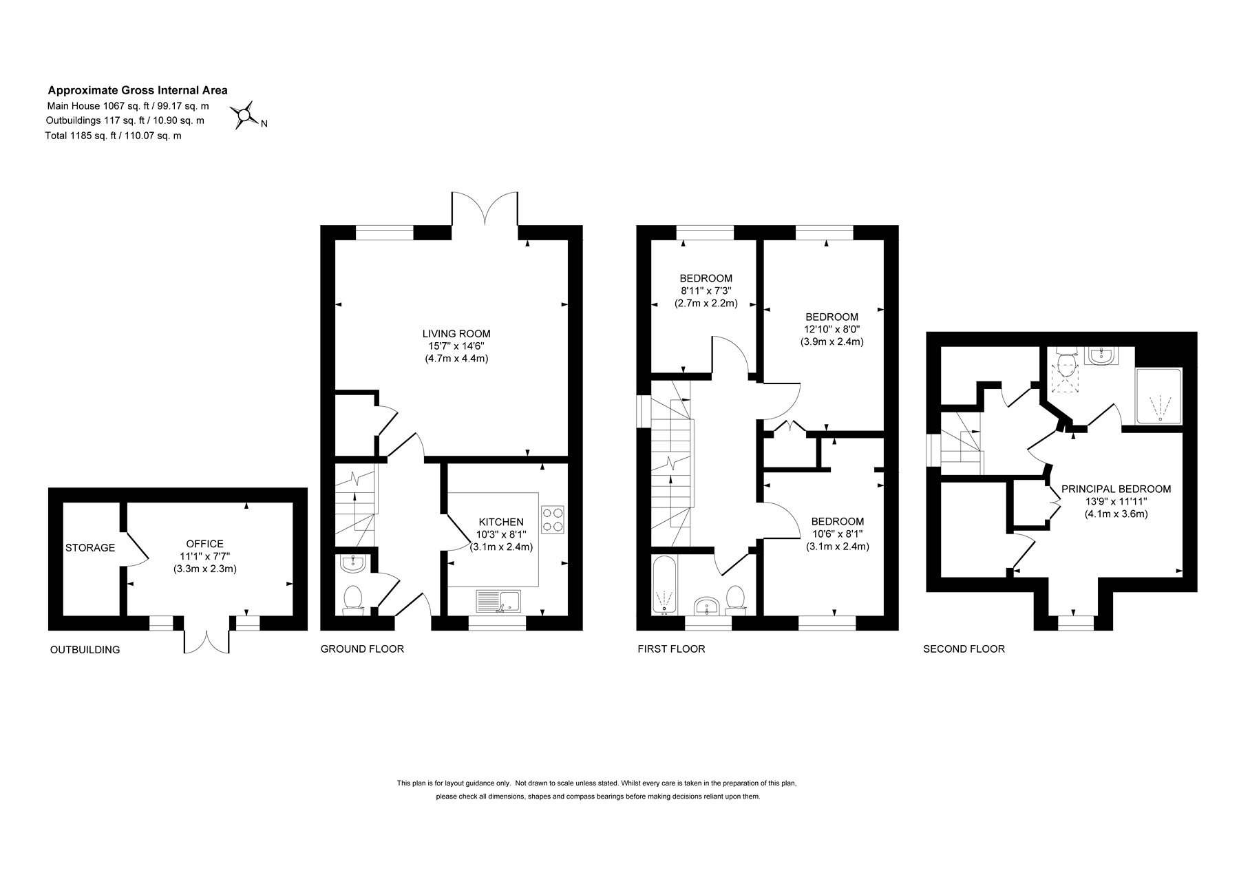
Arranged over three well proportioned floors, the property has been thoughtfully maintained and stylishly updated by the current owners. The top floor is dedicated to a luxurious principal bedroom, complete with built-in wardrobes and a sleek ensuite shower room.
The first floor hosts three further generously sized bedrooms, two of which also enjoy the use of built in wardrobes, all sharing the use of a modern family bathroom fitted with a contemporary three-piece suite.
Downstairs, the home boasts newly laid Herringbone flooring throughout and a sleek, modern kitchen featuring elegant granite worktops, a full range of base and eye level units, and integrated premium brand appliances including a fridge freezer, oven, gas hob, washing machine, and dishwasher. To the rear, a bright and airy lounge/dining room opens onto a beautifully landscaped garden that has been laid with artificial grass, while a raised Pergola covered decking area provides space to sit, perfect for outdoor entertaining.
A standout feature is the addition of a powered summer house, offering a versatile space ideal for those working from home or seeking a private retreat.
Further benefits include a private driveway providing convenient off-street parking, an EV charging point and easy access to local amenities.
Location
Knaphill village offers a vibrant mix of shops, pubs, restaurants, and a Post Office, with a large Sainsbury's superstore just a short distance away. For commuters, Brookwood Station provides fast links to London, Woking, and Guildford. The area is also rich in green spaces, with Stafford Lake and Brookwood Country Park both nearby, perfect for weekend walks or family outings.
N.B Annual charges apply approx £350.00pa

Important Information

  • This is a Freehold property.

Property Ref: 58085_KNA250439

Share:

Similar Properties

Bisley, Woking, Surrey, GU24

3 Bedroom Semi-Detached House | £575,000

Situated in the sought-after village of Bisley, this extended three-bedroom semi-detached home offers spacious and flexi...

Bisley, Woking, Surrey, GU24

3 Bedroom Semi-Detached House | £570,000

This semi-detached home is located in a popular residential road in Bisley, a short walk from the primary schools, and h...

West End, Woking, Surrey, GU24

3 Bedroom Semi-Detached House | £556,500

A stunning semi-detached home located in the sought after village of West End. The property is offered to the market in...

Knaphill, Woking, GU21

3 Bedroom Detached House | £580,000

Offered with no onward chain. A well-presented detached family home, ideally located close to Knaphill Village and excel...

Brookwood, Surrey, GU24

3 Bedroom Detached House | £595,000

A charming 1920's character detached residence located a short stroll from Brookwood mainline station with NO ONWARD CHA...

West End, Woking, Surrey, GU24

3 Bedroom Semi-Detached House | £595,000

An exceptional semi detached property, built by the highly renowned developer Michael Shanly Homes in 2019, with their t...

Seymours (Knaphill)

Knaphill, Surrey, GU21 2PP

01483 798969

How much is your home worth?

Use our short form to request a valuation of your property.

Request a Valuation

Mortgage Calculator

Amount Borrowed: £
Total Amount Repayable: £
Total Monthly Payment: £
©2025 The Guild of Property Professionals. All rights reserved. Terms and Conditions | Privacy Policy | Cookie Policy | Complaints Policy | Members Login
The Guild of Property Professionals Trading Address: 121 Park Lane, London W1K 7AG. GPEA Limited. Registered in England & Wales.  Company No: 02819824.  Registered Office Address: 2 St. Stephen's Court, St. Stephen's Road, Bournemouth, Dorset, England, BH2 6LA.  VAT Registration No: 576 8795 61
Book a Property Valuation Update Cookies Preferences