Knaphill, Woking, Surrey, GU21

£525,000
SSTC
This property listing is now SSTC

3 Bedroom Detached House for sale in Woking

2 3 2
  • No Onward Chain
  • Cul de Sac Location
  • Potential to Extend STPP
  • Garage
  • Driveway Providing Off Street Parking
  • Downstairs Cloakroom
  • Within Easy Reach of Knaphill Village

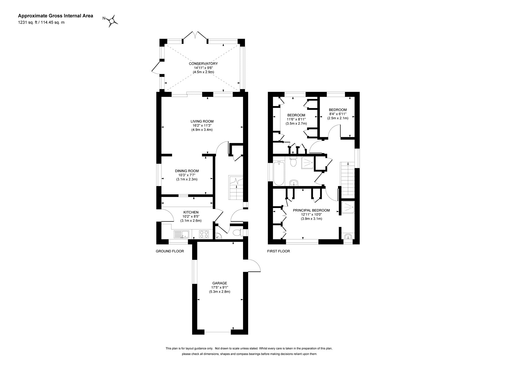
A detached family home set within a popular cul-de-sac in Knaphill, offered to the market with no onward chain and ideal for those looking to put their own stamp on a property.
The accommodation comprises three bedrooms, including a master bedroom with ensuite, together with a four piece family bathroom featuring a separate bath and walk-in shower.
On the ground floor there is a front aspect kitchen, two rear facing reception rooms including a dining room, spacious living room, a conservatory overlooking the garden and a useful downstairs cloakroom.
The easterly facing rear garden extends to approximately 45ft and offers excellent potential to extend or reconfigure (subject to the usual planning consents). To the front, there is a garage and driveway parking.
Conveniently located close to Knaphill village, local amenities and bus links offering easy access to Woking town centre and mainline station.
Location
Knaphill village has a vibrant range of shops, pubs and restaurants, which includes a Post Office. For more comprehensive shopping, Sainsbury's superstore is approximately quarter of a mile away. For commuting, Brookwood station provides a regular service direct to London Waterloo, Woking and Guildford. For those who enjoy the outdoors, there is Brookwood Country Park, Sheets Heath and Basingstoke Canal close by, which is ideal for dog walking or a family stroll.

Important Information

  • This is a Freehold property.

Property Ref: WOK260037

Share:

Similar Properties

West End, Woking, Surrey, GU24

3 Bedroom Link Detached House | £525,000

Offered to the market with no onward chain, this three bedroom link detached home is situated in a quiet cul-de-sac and...

Knaphill, Woking, Surrey, GU21

4 Bedroom Terraced House | Offers in excess of £500,000

A spacious 4 double bedroom terraced home that lies within walking distance of Brookwood Mainline Station. (Includes 3 p...

Bisley, Woking, Surrey, GU24

3 Bedroom Detached House | £500,000

This beautifully presented detached home offers spacious and well-balanced accommodation, ideal for modern family living...

Knaphill, Woking, Surrey, GU21

3 Bedroom Semi-Detached House | £530,000

This contemporary semi-detached home is ideally positioned within a private cul-de-sac, conveniently located close to Kn...

West End, Woking, Surrey, GU24

3 Bedroom Terraced House | £535,000

Situated in a quiet cul-de-sac approximately 625 metres from Gordon's School, this well-presented terraced home is offer...

Bisley, Woking, Surrey, GU24

3 Bedroom Link Detached House | £539,950

Situated on the highly sought after Flowers Development in Bisley, this well maintained link detached home offers spacio...

Seymours (Knaphill)

Knaphill, Surrey, GU21 2PP

01483 798969

How much is your home worth?

Use our short form to request a valuation of your property.

Request a Valuation

Mortgage Calculator

Amount Borrowed: £
Total Amount Repayable: £
Total Monthly Payment: £
©2026 The Guild of Property Professionals. All rights reserved. Terms and Conditions | Privacy Policy | Cookie Policy | Complaints Policy | Members Login
The Guild of Property Professionals Trading Address: 121 Park Lane, London W1K 7AG. GPEA Limited. Registered in England & Wales.  Company No: 02819824.  Registered Office Address: 2 St. Stephen's Court, St. Stephen's Road, Bournemouth, Dorset, England, BH2 6LA.  VAT Registration No: 576 8795 61
Book a Property Valuation Update Cookies Preferences