West End, Woking, Surrey, GU24

£525,000
SSTC
This property listing is now SSTC

3 Bedroom Link Detached House for sale in Woking

2 3 1
  • Within 810m of Gordons School
  • Quiet Cul de Sac Location
  • No Onward Chain
  • Garage
  • Driveway
  • Potential to Extend STPP
  • Walking Distance to Holy Trinity School

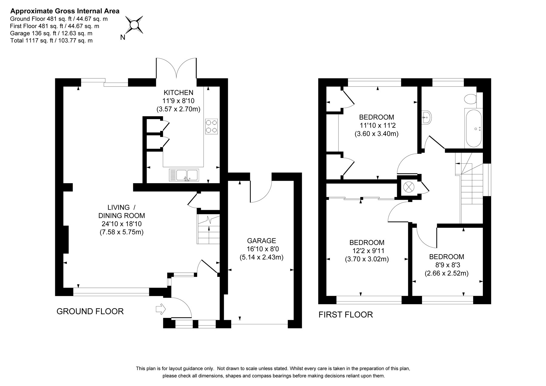
Offered to the market with no onward chain, this three bedroom link detached home is situated in a quiet cul-de-sac and located within approximately 810 metres of Gordon's School, making it an ideal choice for families.
The ground floor comprises a front aspect living room, while to the rear there is a dining room leading through to the adjoining kitchen. The kitchen is fitted with a range of base and eye level units and provides space for appliances.
Upstairs are three bedrooms, two are spacious doubles and a family bathroom.
Outside, the property benefits from a south facing rear garden measuring almost 40ft in length, offering a pleasant outdoor space and potential to extend (STPP).
To the front there is a driveway providing off street parking and access to the garage.
Location
West End village is conveniently located for access to Junction 3 of the M3 which in turn gives access to both Heathrow and Gatwick international airports. Education is well catered for with two excellent schools, the highly regarded Gordon's School and Holy Trinity primary school. The Gosden Parade provides a good range of shops to include a news agents, hairdressers and coffee shop. Local dining is also excellent with the Inn At West End and the Hare & Hounds directly in the village whilst local Chobham village also offers several similar pub/restaurants. Brookwood station is approximately 2.3 miles with a regular direct service to Waterloo.

Important Information

  • This is a Freehold property.

Property Ref: LIG260003

Share:

Similar Properties

Knaphill, Woking, Surrey, GU21

3 Bedroom Detached House | £525,000

A detached family home set within a popular cul-de-sac in Knaphill, offered to the market with no onward chain and ideal...

Knaphill, Woking, Surrey, GU21

4 Bedroom Terraced House | Offers in excess of £500,000

A spacious 4 double bedroom terraced home that lies within walking distance of Brookwood Mainline Station. (Includes 3 p...

Bisley, Woking, Surrey, GU24

3 Bedroom Detached House | £500,000

This beautifully presented detached home offers spacious and well-balanced accommodation, ideal for modern family living...

Knaphill, Woking, Surrey, GU21

3 Bedroom Semi-Detached House | £530,000

This contemporary semi-detached home is ideally positioned within a private cul-de-sac, conveniently located close to Kn...

West End, Woking, Surrey, GU24

3 Bedroom Terraced House | £535,000

Situated in a quiet cul-de-sac approximately 625 metres from Gordon's School, this well-presented terraced home is offer...

Bisley, Woking, Surrey, GU24

3 Bedroom Link Detached House | £539,950

Situated on the highly sought after Flowers Development in Bisley, this well maintained link detached home offers spacio...

Seymours (Knaphill)

Knaphill, Surrey, GU21 2PP

01483 798969

How much is your home worth?

Use our short form to request a valuation of your property.

Request a Valuation

Mortgage Calculator

Amount Borrowed: £
Total Amount Repayable: £
Total Monthly Payment: £
©2026 The Guild of Property Professionals. All rights reserved. Terms and Conditions | Privacy Policy | Cookie Policy | Complaints Policy | Members Login
The Guild of Property Professionals Trading Address: 121 Park Lane, London W1K 7AG. GPEA Limited. Registered in England & Wales.  Company No: 02819824.  Registered Office Address: 2 St. Stephen's Court, St. Stephen's Road, Bournemouth, Dorset, England, BH2 6LA.  VAT Registration No: 576 8795 61
Book a Property Valuation Update Cookies Preferences