Knaphill, Woking, Surrey, GU21

Offers in excess of
£700,000
SSTC
This property listing is now SSTC

4 Bedroom Detached House for sale in Woking

3 4 3
  • No Onward Chain
  • Four Double Bedrooms
  • Walking Distance to Brookwood Mainline Station
  • Double Garage
  • Two Ensuite Bathrooms
  • Downstairs Cloakroom
  • South Facing Garden
  • Close to Knaphill Village

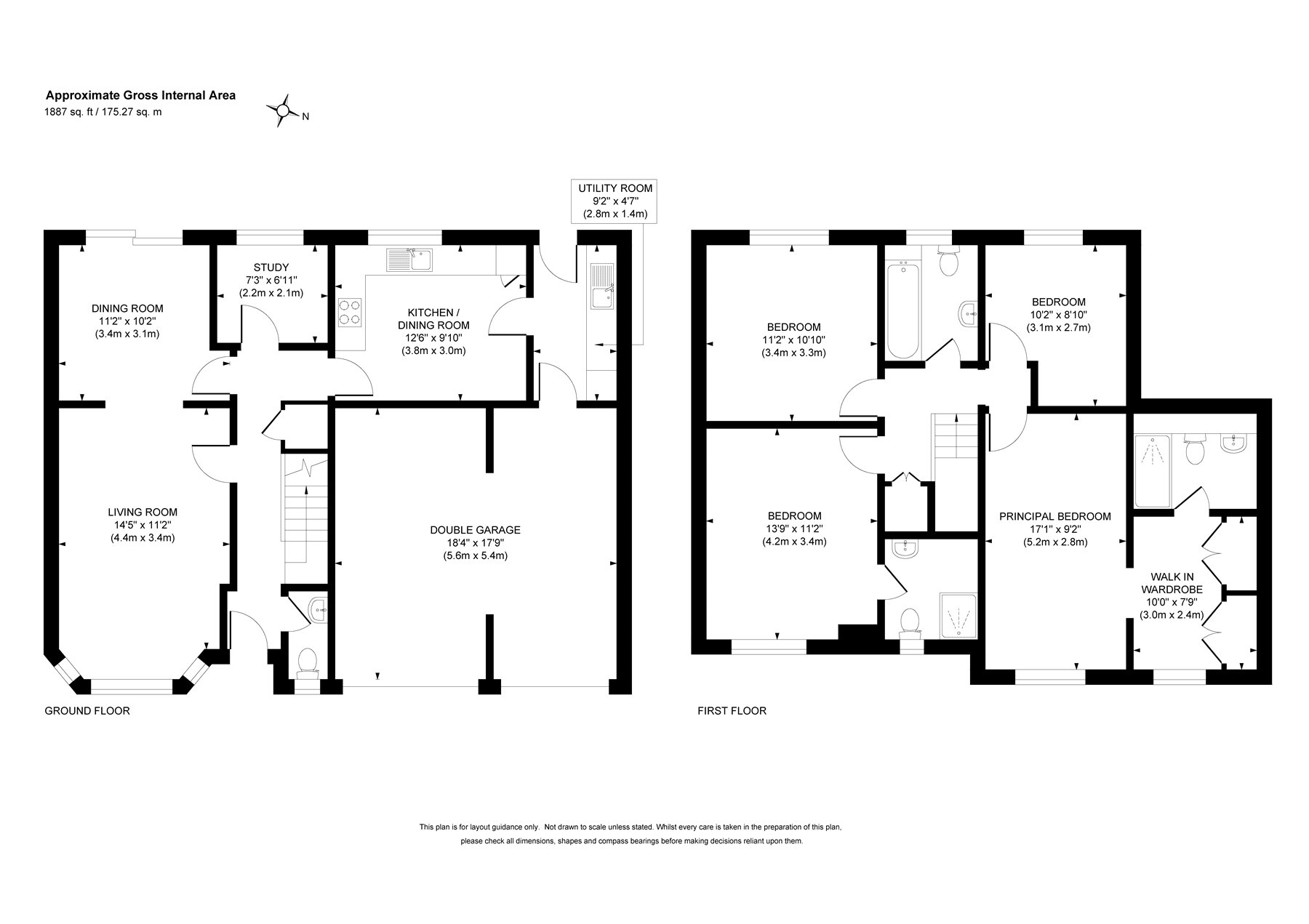
Situated in a highly desirable part of the Brookwood Manor development, this impressive detached family home offers generous and versatile accommodation extending to approximately 1,887 sq ft. The property is offered to the market with no onward chain and is just a short walk from Brookwood railway station, providing excellent mainline links (35 mins to London Waterloo). It is also conveniently located close to Knaphill village and its range of shops and amenities.
The ground floor offers well balanced living space, comprising three reception rooms including a spacious living room, a formal dining room and a separate study, ideal for those working from home. The kitchen is complemented by an adjoining utility room, while a downstairs cloakroom adds further practicality.
A particular feature of the property is the double garage, which offers excellent storage and scope for conversion (STPP), presenting an exciting opportunity to further enhance the accommodation if desired.
Upstairs, there are four generously sized double bedrooms. The principal bedroom benefits from a dressing area and ensuite shower room, while bedroom two also enjoys its own ensuite. The remaining two bedrooms are served by a well-appointed family bathroom.
Externally, the property boasts a south-facing rear garden, thoughtfully arranged with a large patio area, perfect for outdoor entertaining, leading down via steps to a well-maintained lawn. To the front, a driveway provides off-street parking for two vehicles in addition to the double garage. A further benefit is the installation of Solar panels, helping to reduce electricity costs and improve energy efficiency.
This is a rare opportunity to acquire a spacious family home in one of the area's most popular residential settings, and early viewing is highly recommended.

Location
Knaphill village has a vibrant range of shops, pubs and restaurants, which include a Lloyds Bank and Post Office. For more comprehensive shopping, Sainsbury's superstore is also close by. For commuting, Brookwood station provides a regular service direct to London Waterloo and Woking. For those who enjoy the outdoors, there is Brookwood Country Park close by which is ideal for dog walking or a family stroll.
N.B Annual charges apply £261.80

Important Information

  • This is a Freehold property.

Property Ref: KNA200297

Share:

Similar Properties

Knaphill, Woking, Surrey, GU21

4 Bedroom Detached House | £695,000

Situated in a quiet cul-de-sac within the popular Birds Development in Knaphill, this well presented detached home is of...

West End, Woking, Surrey, GU24

4 Bedroom Detached House | £695,000

Tucked away in a peaceful cul-de-sac of just four homes, this well-presented detached property offers a rare combination...

Bisley, Woking, Surrey, GU24

4 Bedroom Detached House | £679,950

This substantial detached family home offers approximately 1,957 sq ft of well-balanced accommodation and has been cleve...

Knaphill, Woking, Surrey, GU21

4 Bedroom Detached House | Offers in excess of £724,950

A beautifully presented detached family home, ideally situated within the highly desirable Brookwood Farm development, j...

West End, Woking, Surrey, GU24

3 Bedroom Detached Bungalow | £725,000

This spacious detached bungalow is located in one of West End's most sought after cul de sac locations, that is approxim...

West End, Woking, Surrey, GU24

4 Bedroom Detached House | £735,000

Situated in a quiet and family friendly cul de sac, this generously proportioned four bedroom detached home is just 700...

Seymours (Knaphill)

Knaphill, Surrey, GU21 2PP

01483 798969

How much is your home worth?

Use our short form to request a valuation of your property.

Request a Valuation

Mortgage Calculator

Amount Borrowed: £
Total Amount Repayable: £
Total Monthly Payment: £
©2026 The Guild of Property Professionals. All rights reserved. Terms and Conditions | Privacy Policy | Cookie Policy | Complaints Policy | Members Login
The Guild of Property Professionals Trading Address: 121 Park Lane, London W1K 7AG. GPEA Limited. Registered in England & Wales.  Company No: 02819824.  Registered Office Address: 2 St. Stephen's Court, St. Stephen's Road, Bournemouth, Dorset, England, BH2 6LA.  VAT Registration No: 576 8795 61
Book a Property Valuation Update Cookies Preferences