Bisley, Woking, Surrey, GU24

£679,950
SSTC
This property listing is now SSTC

4 Bedroom Detached House for sale in Woking

4 4 4

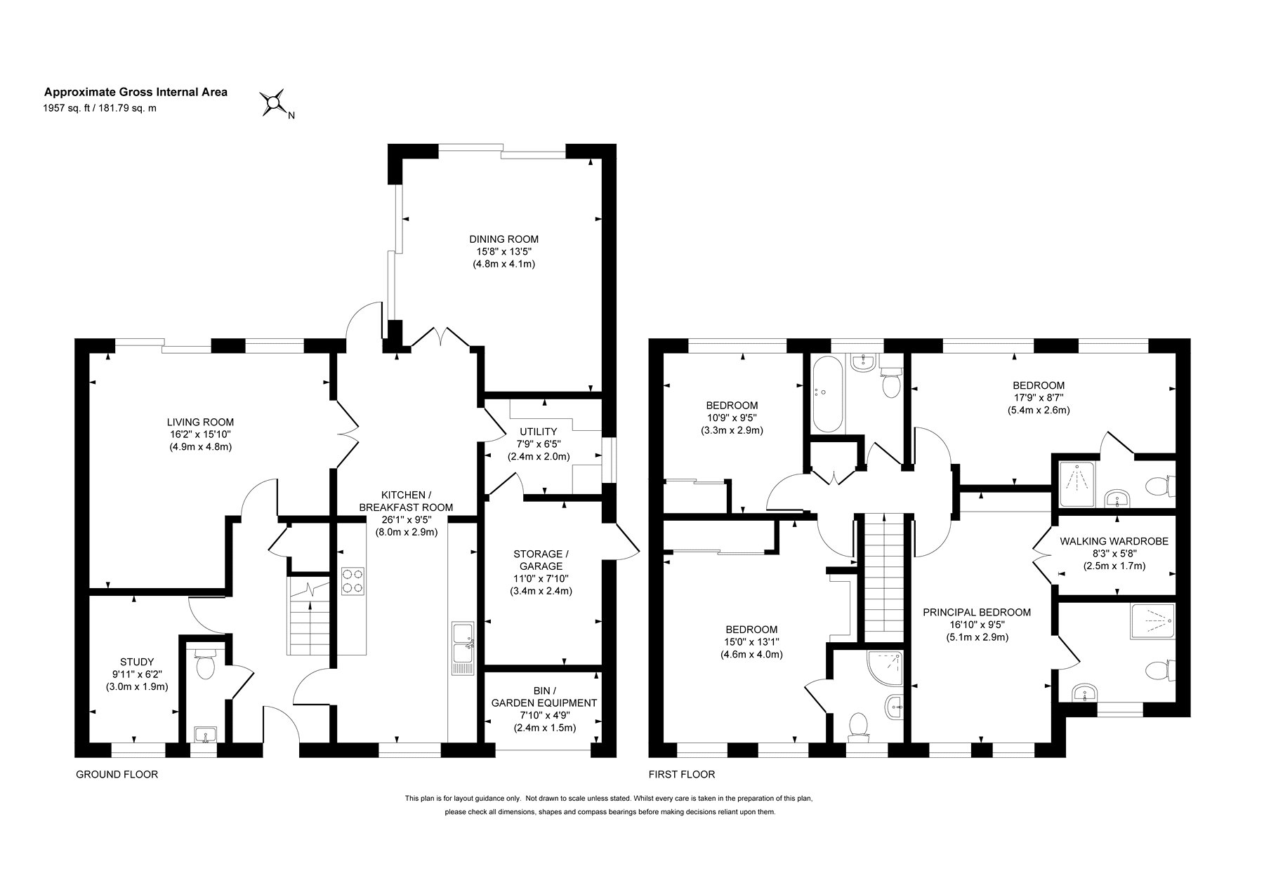
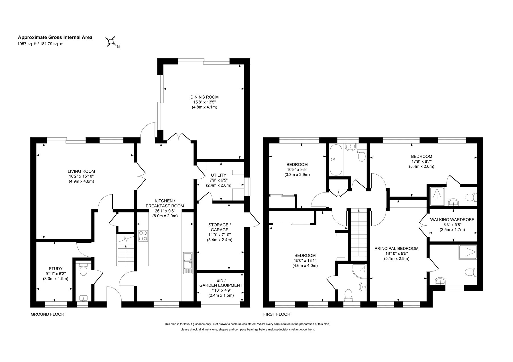
This substantial detached family home offers approximately 1,957 sq ft of well-balanced accommodation and has been cleverly extended over the years to create generous and versatile living space throughout. The property boasts four large double bedrooms, three en-suite shower rooms, including an impressive principal suite featuring a walk-in wardrobe, making it ideal for modern family living.The ground floor is centred around an impressive kitchen/breakfast room, fitted with a range of base and eye-level units and offering space for appliances, including a range cooker. Additional accommodation includes a study, a rear-aspect lounge with doors opening onto the garden, and a further extended reception room to the rear of the home. This fantastic space benefits from two sets of sliding doors leading to the garden, creating an excellent environment for entertaining and indoor-outdoor living. A utility room and integral garage provide valuable storage and practicality.Outside, the property enjoys a pleasant and completely private rear garden, laid mainly to patio with well-stocked borders of mature plants and shrubs. To the front, a block-paved driveway provides off-street parking for up to three vehicles.Ideally positioned, the home is close to Bisley Primary School and benefits from excellent transport links, including easy access to the M3 motorway and Brookwood mainline station, making it perfect for commuters.

Important Information

  • This is a Freehold property.

Property Ref: KNA260016

Share:

Similar Properties

West End, Woking, Surrey, GU24

3 Bedroom Detached Bungalow | £675,000

Set within the sought after area of Donkey Town in West End, this delightful three bedroom detached bungalow offers a wo...

Knaphill, Woking, Surrey, GU21

4 Bedroom Detached House | £675,000

Offered with no onward chain. A superb detached family home occupying one of the most sought after positions within the...

Pirbright, Woking, Surrey, GU24

3 Bedroom Semi-Detached House | Guide Price £675,000

Situated in the highly desirable village of Pirbright, this exceptional three-bedroom semi-detached home has undergone a...

Knaphill, Woking, Surrey, GU21

4 Bedroom Detached House | £695,000

Situated in a quiet cul-de-sac within the popular Birds Development in Knaphill, this well presented detached home is of...

Knaphill, Woking, Surrey, GU21

4 Bedroom Detached House | Offers in excess of £700,000

Situated in a highly desirable part of the Brookwood Manor development, this impressive detached family home offers gene...

West End, Woking, Surrey, GU24

3 Bedroom Detached Bungalow | £725,000

This spacious detached bungalow is located in one of West End's most sought after cul de sac locations, that is approxim...

Seymours (Knaphill)

Knaphill, Surrey, GU21 2PP

01483 798969

How much is your home worth?

Use our short form to request a valuation of your property.

Request a Valuation

Mortgage Calculator

Amount Borrowed: £
Total Amount Repayable: £
Total Monthly Payment: £
©2026 The Guild of Property Professionals. All rights reserved. Terms and Conditions | Privacy Policy | Cookie Policy | Complaints Policy | Members Login
The Guild of Property Professionals Trading Address: 121 Park Lane, London W1K 7AG. GPEA Limited. Registered in England & Wales.  Company No: 02819824.  Registered Office Address: 2 St. Stephen's Court, St. Stephen's Road, Bournemouth, Dorset, England, BH2 6LA.  VAT Registration No: 576 8795 61
Book a Property Valuation Update Cookies Preferences