Bisley, Woking, Surrey, GU24

£675,000
SSTC
This property listing is now SSTC

4 Bedroom Semi-Detached House for sale in Woking

2 4 3
  • No Onward Chain
  • Four Double Bedrooms
  • Garage
  • Semi-Rural Location
  • Rear Garden Approx. 40ft in Length
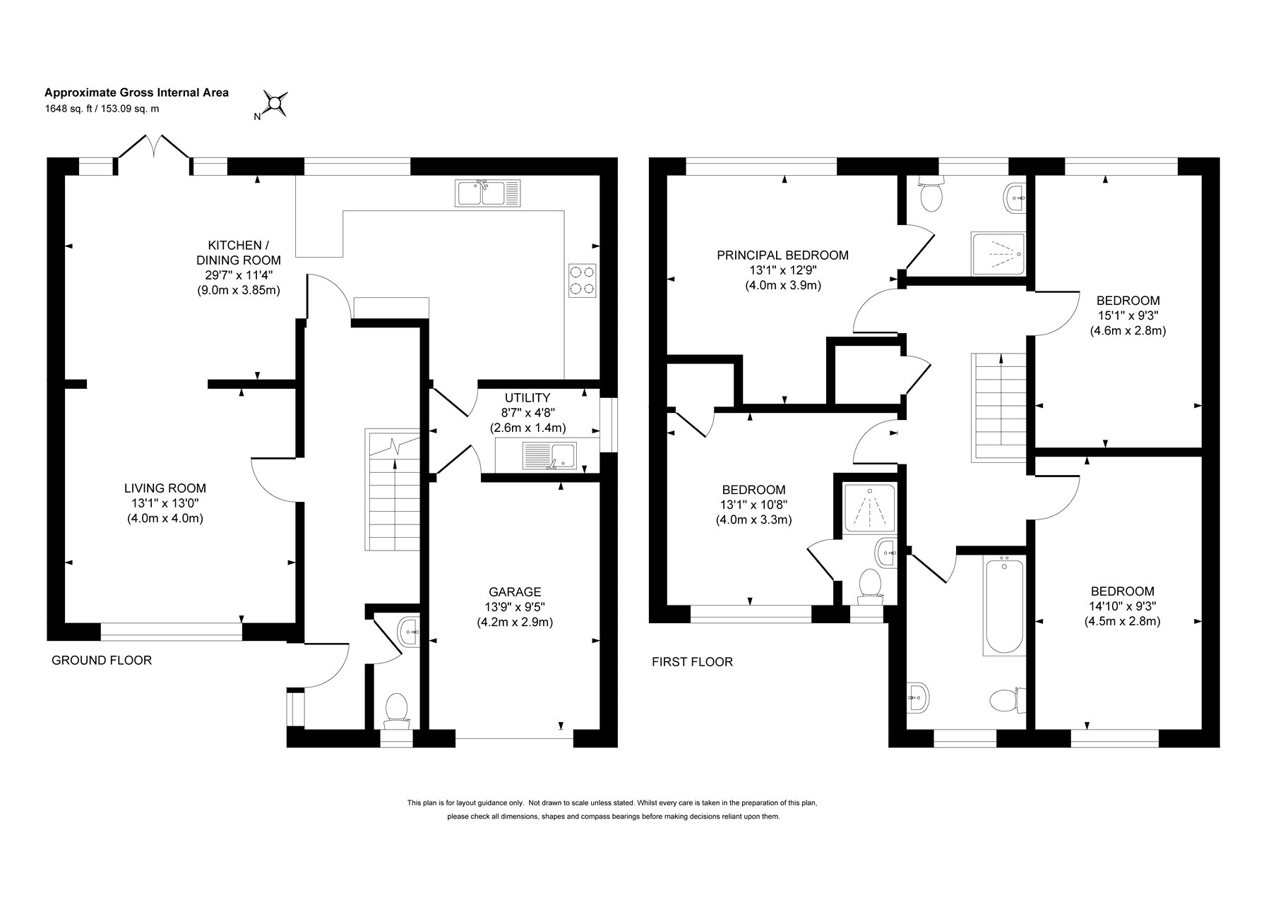
  • Accommodation in Excess of 1600sqft
  • Close to Bisley Village Green
  • Utility Room
  • Downstairs Cloakroom

A rare opportunity to acquire a substantial family home in a desirable village location.
Situated in the heart of the sought after village of Bisley, just a stone's throw from the village green and within easy walking distance to the local primary school, this spacious semi-detached home offers well balanced accommodation in excess of 1,600 sq ft. The property is offered to the market with no onward chain and is presented in excellent condition throughout.
The accommodation comprises four generously sized double bedrooms, two of which benefit from ensuite bathrooms, making it ideal for families or those seeking flexible living space. A well appointed family bathroom is fitted with a modern three-piece suite including a wash hand basin, WC and square ended bath with wall mounted shower.
On the ground floor, a spacious front aspect lounge provides a comfortable reception room, while to the rear is an impressive open plan kitchen/dining room, perfect for modern family living and entertaining. The kitchen is fitted with an extensive range of shaker style base and eye level units, offering ample storage and workspace. Additional ground floor features include a utility room, downstairs WC and integral garage, which is accessible directly from the house.
Externally, the property enjoys a pleasant rear garden featuring a well maintained lawn, sleeper enclosed borders and a patio area ideal for outdoor dining. To the front, a driveway provides off street parking.

Location
Bisley village sits conveniently for access to both Woking (3.4 Miles) and Guildford (7.7 miles) whilst the M3 is approximately 2 miles. There is a primary school in the village with secondary schools being easily accessible in West End (Gordon's) and St John's (Winston Churchill). There is a local Sainsbury's within the village as well as an excellent continental butcher. A larger Sainsbury's superstore is within a mile in nearby Knaphill.
For those who enjoy the outdoors Bisley village is surrounded by acres of common land at nearby Brentmoor Heath as well as Stafford Lake. Nearby Brookwood station provides a regular direct service to Waterloo.

Important Information

  • This is a Freehold property.

Property Ref: KNA250507

Share:

Similar Properties

West End, Woking, Surrey, GU24

3 Bedroom Detached Bungalow | £675,000

Set within the sought after area of Donkey Town in West End, this delightful three bedroom detached bungalow offers a wo...

Knaphill, Woking, Surrey, GU21

4 Bedroom Detached House | £675,000

Offered with no onward chain. A superb detached family home occupying one of the most sought after positions within the...

Pirbright, Woking, Surrey, GU24

3 Bedroom Semi-Detached House | Guide Price £675,000

Situated in the highly desirable village of Pirbright, this exceptional three-bedroom semi-detached home has undergone a...

Bisley, Woking, Surrey, GU24

4 Bedroom Detached House | £679,950

This substantial detached family home offers approximately 1,957 sq ft of well-balanced accommodation and has been cleve...

Knaphill, Woking, Surrey, GU21

4 Bedroom Detached House | £695,000

Situated in a quiet cul-de-sac within the popular Birds Development in Knaphill, this well presented detached home is of...

Knaphill, Woking, Surrey, GU21

4 Bedroom Detached House | Offers in excess of £700,000

Situated in a highly desirable part of the Brookwood Manor development, this impressive detached family home offers gene...

Seymours (Knaphill)

Knaphill, Surrey, GU21 2PP

01483 798969

How much is your home worth?

Use our short form to request a valuation of your property.

Request a Valuation

Mortgage Calculator

Amount Borrowed: £
Total Amount Repayable: £
Total Monthly Payment: £
©2026 The Guild of Property Professionals. All rights reserved. Terms and Conditions | Privacy Policy | Cookie Policy | Complaints Policy | Members Login
The Guild of Property Professionals Trading Address: 121 Park Lane, London W1K 7AG. GPEA Limited. Registered in England & Wales.  Company No: 02819824.  Registered Office Address: 2 St. Stephen's Court, St. Stephen's Road, Bournemouth, Dorset, England, BH2 6LA.  VAT Registration No: 576 8795 61
Book a Property Valuation Update Cookies Preferences