Knaphill, Woking, Surrey, GU21

£775,000

4 Bedroom End of Terrace House for sale in Woking

2 4 3
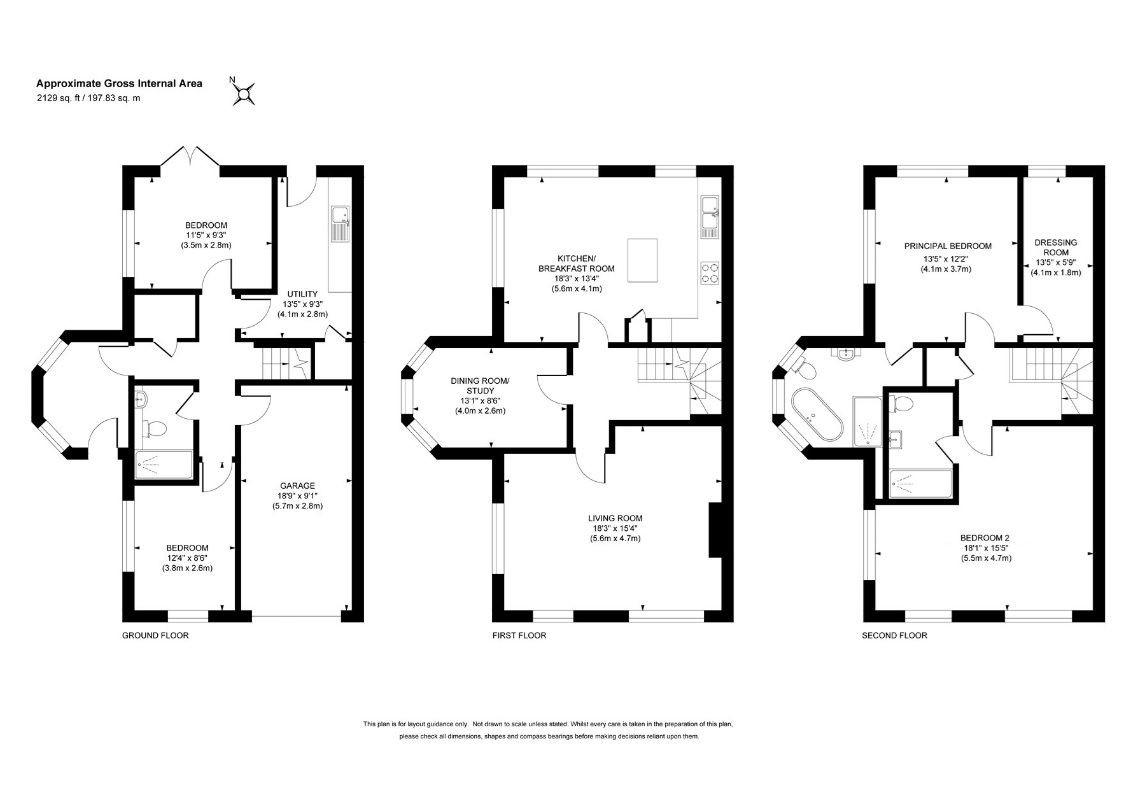
  • Within Easy Reach of Brookwood Mainline Station 2129sqft of Accommodation
  • Stunning Open Plan Kitchen/Dining Room
  • Four Double Bedrooms
  • Garage
  • Utility Room
  • Driveway With Parking For Two Cars
  • Two Ensuite Bathrooms
  • Luxurious Principal Suite With Walk in Wardrobe

An exceptional and impeccably presented residence offering approximately 2,129 sq ft of refined accommodation, arranged across three beautifully appointed floors.
Occupying an enviable corner position adjacent to a charming green, the property enjoys picturesque views across neighbouring Victorian architecture, including an iconic clock tower steeped in local heritage, a truly distinctive outlook that enhances the home's sense of place.

From the moment you enter, the quality and attention to detail are immediately apparent. A welcoming entrance hall provides generous space for coats and footwear, setting a refined first impression. The accommodation is both substantial and versatile, with four generously proportioned double bedrooms offering flexibility to suit modern lifestyles.

The ground floor offers the option of two bedrooms or alternative reception spaces, ideal for guest suites, home offices or private leisure rooms. A spacious utility room with stable door adds practicality, while the integral garage offers excellent potential for conversion, subject to the usual planning consents.

The principal living spaces are located on the first floor, where a magnificent dual-aspect living room enjoys elevated views and an abundance of natural light. A feature fireplace forms an elegant focal point, while bespoke plantation shutters, fitted throughout the home, provide both style and privacy. A further reception room, currently arranged as a study, offers additional flexibility.

At the heart of the home lies the stunning open-plan kitchen and dining space, thoughtfully designed for both everyday living and entertaining. Recently updated to a high specification, the kitchen features an impressive range of bespoke base and eye-level cabinetry, beautifully complemented by luxurious stone worktops. A central island provides additional preparation space and informal seating, while integrated appliances include a Neff double oven, gas hob, Fisher Paykel fridge/freezer and Miele dishwasher, ensuring a sleek and seamless finish.

The top floor is dedicated to luxurious private accommodation. The principal suite features a spacious walk-in wardrobe and an impressive ensuite bathroom fitted with a four-piece suite. A freestanding bath is cleverly positioned to enjoy the views, complemented by a walk-in shower cubicle. A further generous double bedroom also benefits from its own ensuite shower room, offering exceptional comfort for family or guests.

Outside, the partially walled rear garden has been beautifully landscaped and meticulously maintained, featuring a generous patio area ideal for outdoor entertaining, framed by attractive planted borders. The garden also benefits from a summerhouse with light and power, along with an additional side patio perfectly positioned to enjoy the evening sun.

To the front, a block paved driveway provides off street parking for two vehicles, complemented by an additional parking space to the rear

Ideally located, Knaphill village is close at hand, offering a wide array of amenities, while Brookwood mainline station is within comfortable walking distance, providing excellent commuter links.

Location
Knaphill village has a vibrant range of shops, pubs and restaurants, which includes a Post Office. For more comprehensive shopping, Sainsbury's superstore is approximately quarter of a mile away. For commuting, Brookwood station provides a regular service direct to London Waterloo, Woking and Guildford. For those who enjoy the outdoors, there is Brookwood Country Park, Sheets Heath and Basingstoke Canal close by, which is ideal for dog walking or a family stroll.

Important Information

  • This is a Freehold property.

Property Ref: KNA230167

Share:

Similar Properties

West End, Woking, Surrey, GU24

4 Bedroom Detached House | £769,950

This modern detached family home is ideally located approximately 715 metres from Gordon's School and within a short wal...

West End, Woking, Surrey, GU24

4 Bedroom Detached House | Offers in excess of £750,000

This extended detached family home is offered to the market in excellent condition having been beautifully maintained by...

Brookwood, Woking, Surrey, GU24

5 Bedroom Detached House | £750,000

High Trees is a detached family home of modern contemporary design, located a close to Brookwood Mainline Station that o...

Knaphill, Woking, GU21

4 Bedroom Detached House | £779,950

Set within the sought after Brookwood Farm Development in Knaphill, this impressive detached family home offers exceptio...

Knaphill, Woking, Surrey, GU21

4 Bedroom Detached House | £785,000

This impressive family home has been well maintained by the current owners and is set within a highly desirable position...

West End, Woking, Surrey, GU24

4 Bedroom Detached House | Guide Price £795,000

** REALISTICALLY PRICED FOR A QUICK SALE ** A fabulous opportunity to acquire a character residence, located in a little...

Seymours (Knaphill)

Knaphill, Surrey, GU21 2PP

01483 798969

How much is your home worth?

Use our short form to request a valuation of your property.

Request a Valuation

Mortgage Calculator

Amount Borrowed: £
Total Amount Repayable: £
Total Monthly Payment: £
©2026 The Guild of Property Professionals. All rights reserved. Terms and Conditions | Privacy Policy | Cookie Policy | Complaints Policy | Members Login
The Guild of Property Professionals Trading Address: 121 Park Lane, London W1K 7AG. GPEA Limited. Registered in England & Wales.  Company No: 02819824.  Registered Office Address: 2 St. Stephen's Court, St. Stephen's Road, Bournemouth, Dorset, England, BH2 6LA.  VAT Registration No: 576 8795 61
Book a Property Valuation Update Cookies Preferences