Pirbright, Woking, Surrey, GU24

Offers in excess of
£650,000

3 Bedroom Semi-Detached House for sale in Woking

2 3 1
  • Located in the highly desirable village of Pirbright
  • Extensively refurbished and comprehensively remodelled by the current owners
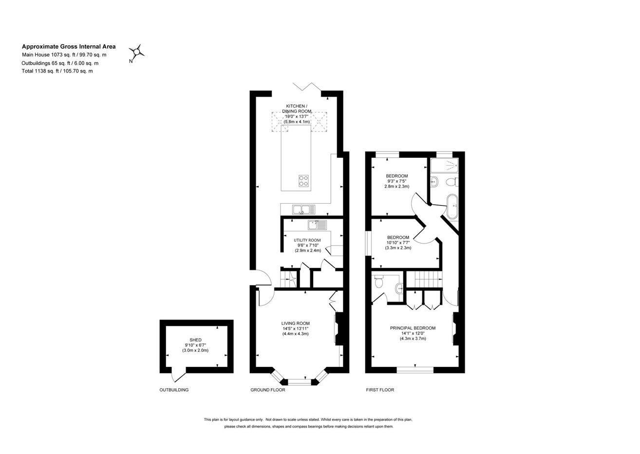
  • Welcoming front-aspect living room with log burner and bespoke shelving and cupboards
  • Stunning open-plan kitchen/dining room with vaulted ceiling and bi-fold doors to the garden
  • Contemporary kitchen with central island and stylish quartz worktops
  • Separate utility room providing additional storage and practicality
  • Three well-proportioned bedrooms, including a principal suite with en-suite WC
  • Luxurious four-piece family bathroom with walk-in shower and freestanding bath
  • Landscaped rear garden extending in excess of 100 feet with outdoor kitchen and BBQ area
  • Parking for two vehicles and the added benefit of solar panels

Situated in the highly desirable village of Pirbright, this exceptional three-bedroom semi-detached home has undergone a dramatic refurbishment and comprehensive remodelling programme by the current owners, resulting in a beautifully presented and thoughtfully designed family home.
The ground floor accommodation comprises a welcoming front aspect living room featuring an attractive fireplace with a log burner, complemented by bespoke shelving and fitted cupboard space to either side, creating a cosy yet elegant reception space with both character and practicality. To the rear of the property is the true heart of the home – a stunning open-plan kitchen/dining room with a vaulted ceiling and bi-folding doors opening directly onto the garden. This impressive space is flooded with natural light and is ideal for both everyday living and entertaining. The kitchen is fitted with a large central island, an extensive range of base and eye level units and stylish quartz worktops, perfectly blending practicality with contemporary design. A separate utility room provides additional convenience and storage.
Upstairs, the property offers three well-proportioned bedrooms. The principal suite benefits from built-in wardrobes and a modern ensuite WC. The remaining two bedrooms are served by a luxurious four-piece family bathroom, complete with a walk-in shower cubicle and a separate freestanding bath, finished to an exceptional standard.
Externally, the rear garden extends to in excess of 100 feet and has been beautifully landscaped with entertaining in mind. Designed to maximise enjoyment of the outdoor space, it features an impressive outdoor kitchen and BBQ area, making it perfect for hosting family and friends. To the front of the property, there is driveway parking for two vehicles. The home also benefits from the installation of solar panels, enhancing its energy efficiency and long-term sustainability, battery storage and a high end EV Charger.
This outstanding home combines village charm with high-specification modern living and must be viewed to be fully appreciated.

Location:
Pirbright is a picturesque village on the outskirts of both Woking and Guildford boasting a wealth of character and charm. This peaceful rural location has several schools, local shops fronting onto the village green with cricket ground and many local pubs. The village is approximately 1.5 miles from Brookwood station offering links to Waterloo within 35minutes whilst only being roughly 6miles from Woking or 7miles from Guildford.

Important Information

  • This is a Freehold property.

Property Ref: KNA260044

Share:

Similar Properties

Bisley, Woking, GU24

4 Bedroom Detached House | £650,000

Situated at the end of a quiet cul-de-sac, this deceptively spacious four-bedroom family home offers well-presented and...

Knaphill, Woking, Surrey, GU21

4 Bedroom Detached House | Offers in excess of £650,000

This detached family home is tucked away at the end of a quiet cul de sac on the popular Birds Development in Knaphill a...

Brookwood, Woking, Surrey, GU24

4 Bedroom Detached House | £650,000

An individual spacious character home that is ideally located for those who commute, as Brookwood Mainline Station is a...

Pirbright, Woking, Surrey, GU24

3 Bedroom Semi-Detached House | £675,000

Situated in the heart of Pirbright, this exceptional semi-detached home enjoys a peaceful semi-rural setting while remai...

Bisley, Woking, Surrey, GU24

4 Bedroom Semi-Detached House | £675,000

A rare opportunity to acquire a substantial family home in a desirable village location.

Knaphill, Woking, Surrey, GU21

4 Bedroom Detached House | £675,000

Offered with no onward chain. A superb detached family home occupying one of the most sought after positions within the...

Seymours (Knaphill)

Knaphill, Surrey, GU21 2PP

01483 798969

How much is your home worth?

Use our short form to request a valuation of your property.

Request a Valuation

Mortgage Calculator

Amount Borrowed: £
Total Amount Repayable: £
Total Monthly Payment: £
©2026 The Guild of Property Professionals. All rights reserved. Terms and Conditions | Privacy Policy | Cookie Policy | Complaints Policy | Members Login
The Guild of Property Professionals Trading Address: 121 Park Lane, London W1K 7AG. GPEA Limited. Registered in England & Wales.  Company No: 02819824.  Registered Office Address: 2 St. Stephen's Court, St. Stephen's Road, Bournemouth, Dorset, England, BH2 6LA.  VAT Registration No: 576 8795 61
Book a Property Valuation Update Cookies Preferences