Brookwood, Woking, Surrey, GU24

£315,000

1 Bedroom Apartment for sale in Woking

1 1 1
  • Ground floor one bedroom apartment with study
  • Ideal first home or commuter apartment
  • Private outdoor space
  • Spacious open-plan living / dining area
  • Contemporary kitchen with integrated appliances
  • Separate home office / study
  • Stylish modern bathroom
  • Allocated parking space
  • Moments from Brookwood Station (Waterloo under 40 mins)
  • Located in an exclusive development of just 10 homes

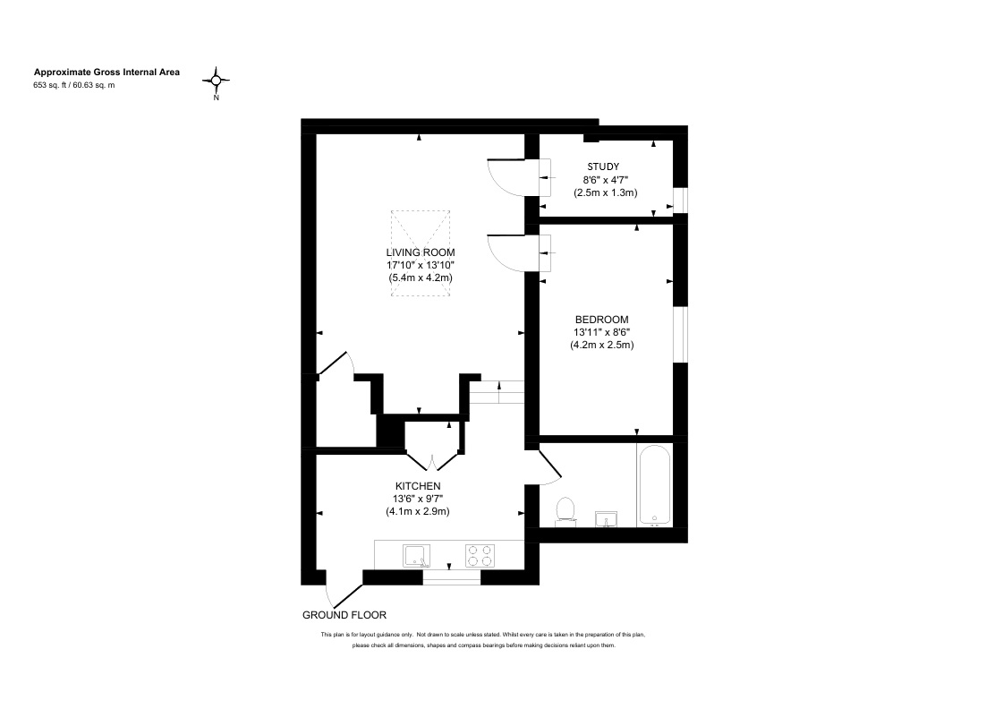
Ground floor 1 bed apartment with study and parking for sale in Brookwood Surrey. Outdoor space and London Waterloo trains in under 40 minutes.

If you're searching for a one-bedroom apartment near a station with a home office and outdoor space, Flat 1 at Station View offers a rare combination of space, convenience and modern design.

Located just moments from Brookwood Station with direct trains to London Waterloo in under 40 minutes, this ground floor apartment also benefits from private outdoor space and allocated parking, making it ideal for commuters, first-time buyers or professionals working from home.

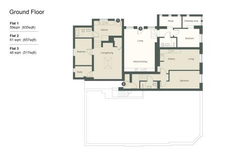
Located on the ground floor of this boutique development of just 10 homes, this beautifully designed apartment provides generous open-plan living with a layout perfectly suited to modern lifestyles.

The apartment features a bright open-plan living and dining area, offering ample space for both relaxing and entertaining.

The contemporary kitchen includes integrated appliances, sleek cabinetry and stylish finishes.

A well-proportioned double bedroom provides a comfortable retreat, while the separate study is ideal for remote working, gaming, or a dressing room – a highly sought-after feature for professionals and first-time buyers.

The apartment also benefits from a modern bathroom suite finished with elegant tiling and chrome fittings.

One of the standout features of Flat 1 is the private outdoor space, perfect for enjoying morning coffee, summer evenings or simply bringing some outdoor living to apartment life.

The property also benefits from secure entry and an allocated private parking space, a particularly valuable feature in this station location where parking is often limited and expensive.

Having your own dedicated space offers both everyday convenience and added long-term value for commuters and homeowners alike, all within this thoughtfully designed boutique development by White Lavender Homes.

Brookwood is an increasingly popular Surrey village for buyers seeking a balance between countryside living and excellent commuter connections.

Brookwood Station is just moments away, providing direct trains to London Waterloo in under 40 minutes, making it ideal for professionals commuting into the city.

The surrounding area offers green open spaces, canal walks and countryside, including Brookwood Country Park and the Basingstoke Canal.

Nearby Woking, Guildford, West Byfleet and Walton provide extensive shopping, dining and leisure options.

Brookwood also benefits from a welcoming village atmosphere with local cafés, shops and pubs.

Please note: Some images used may be digitally dressed and/or taken from other plots within the Station View development and are intended for illustrative purposes only. Layouts, specifications and finishes may vary slightly between plots.

Important Information

  • This is a Leasehold property.

Property Ref: LNH250606

Share:

Similar Properties

Bisley, Woking, GU24

2 Bedroom End of Terrace House | £315,000

This end of terrace home is located on the popular Flowers Development in Bisley and is offered to the market in excelle...

Woking, GU21

2 Bedroom Maisonette | £300,000

**Chain Free** Welcome to this charming period maisonette located in a picturesque village setting. Situated on the mode...

108 Broadway, Knaphill, GU21

2 Bedroom Apartment | £300,000

A beautifully appointed penthouse apartment offering in excess of 900 sq ft of refined living accommodation, ideally loc...

Bisley, Woking, Surrey, GU24

2 Bedroom Terraced House | £329,950

A well-presented two-bedroom terraced home tucked away in a quiet cul-de-sac, featuring a private front garden, ideal fo...

Knaphill, Woking, Surrey, GU21

2 Bedroom Terraced House | £335,000

This terraced home is located in a sought-after residential area, ideally positioned within easy reach of St Johns villa...

Bisley, Woking, Surrey, GU24

2 Bedroom End of Terrace House | Offers in excess of £345,000

This end of terrace home is offered to the market in excellent condition throughout and is located on the popular Flower...

Seymours (Knaphill)

Knaphill, Surrey, GU21 2PP

01483 798969

How much is your home worth?

Use our short form to request a valuation of your property.

Request a Valuation

Mortgage Calculator

Amount Borrowed: £
Total Amount Repayable: £
Total Monthly Payment: £
©2026 The Guild of Property Professionals. All rights reserved. Terms and Conditions | Privacy Policy | Cookie Policy | Complaints Policy | Members Login
The Guild of Property Professionals Trading Address: 121 Park Lane, London W1K 7AG. GPEA Limited. Registered in England & Wales.  Company No: 02819824.  Registered Office Address: 2 St. Stephen's Court, St. Stephen's Road, Bournemouth, Dorset, England, BH2 6LA.  VAT Registration No: 576 8795 61
Book a Property Valuation Update Cookies Preferences